Anbau Laubengang und Um- und Ausbau der Scheune zum Architekturbüro · Mackenrode
7 Projektbilder
-
Laubengang, Bild: Barbara Töpfer-Werner -
Ansicht Scheune/ Büro, Bild: Barbara Töpfer-Werner -
Ansicht Büro, Bild: Barbara Töpfer-Werner -
Ansicht Büro, Bild: Barbara Töpfer-Werner -
LandBauKulturPreis 2016, Bild: Barbara Töpfer-Werner -
Ansicht Laubengang, Bild: Barbara Töpfer-Werner -
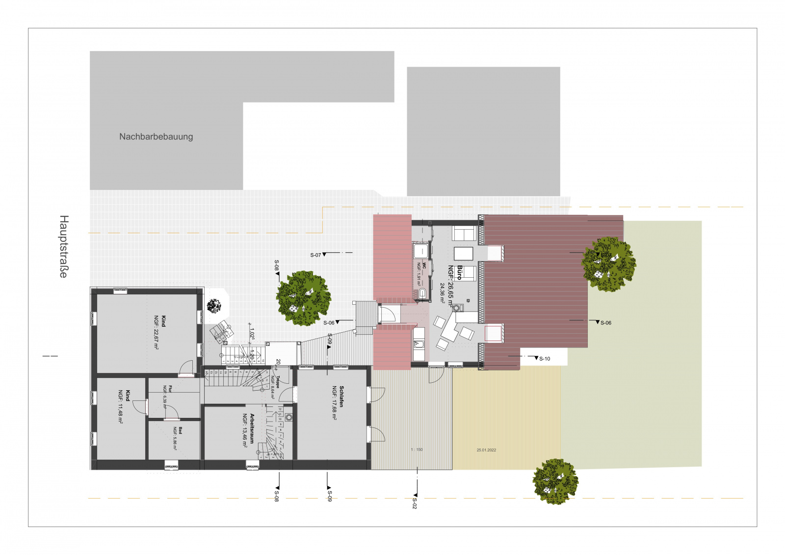
Grundriss Laubengang/ Büro, Bild: Barbara Töpfer-Werner
Projektbeschreibung
Der Fachwerkhof mit Wohnhaus und Scheune befindet sich in der Gemeinde Mackenrode im ländlich geprägtem Eichsfeld (nordwestliches Thüringen). Hier ist die Baulandschaft geprägt von Fachwerkgebäuden, die sich in die hüglige Umgebung des Naturparks Eichsfeld-Hainich-Werratal harmonisch einfügen.
Der Gebäudekomplex wurde ca. 1850 erbaut. Im Jahr 2000 wurde das Ensemble von Familie Werner erworben. In den Folgejahren wurde es schrittweise energetisch und ökologisch saniert und nahezu komplett ausgebaut. So wurde die Fachwerkkonstruktion ertüchtigt und alle Sichtfachwerkwände mit einer Innendämmung aus Leichtlehm bzw. Holzweichfaserplatten, Wandheizung und Lehmputz saniert. Eine Pelletheizung mit Sonnenkollektoren wurde eingebaut, sowie eine vollbiologische Kläranlage.
Schließlich wurde im Jahr 2022 der Dachboden der Scheune zum Büro ausgebaut. Dabei wurde der Gebäudekomplex um einen Laubengang erweitert, damit einerseits ein separater Zugang zum Büro entstand und anderseits, damit das Wohnhaus später für zwei Wohneinheiten nutzbar gemacht werden kann.
Großer Wert wurde bei dem Ausbau des Büros auf die energetische und ökologische Sanierung gelegt. Um den historischen Scharm des Gebäudes zu bewahren, wurden bewusst alte, teilweise handgestrichene Ziegel wiederverwendet. Das Dach wurde mit Zellulose ausgeblasen. Die kleinen angeschleppten Dachgauben wurden durch Dachliegefenster erweitert, um eine optimale Ausleuchtung der Räumlichkeiten zu gewährleisten. An den Giebelwänden ist eine Wandheizung angebracht, die mit Lehm verputzt wurde. Ein historischer Kanonenofen, der komplett restauriert wurde, dient heute als Schmuckstück. Da er voll funktionstüchtig ist, kann er bei Bedarf aber angeheizt werden. Durch die Sichtbarkeit des historischen Dachstuhls im Büro ist der ursprüngliche Charakter der Scheune erlebbar. Der Einbau einer kleinen Dusche mit WC und einer Küchenzeile komplettieren den Ausbau.
Der Laubengang ist eine Mischkonstruktion aus verzinkten Stahl und Holz. Der bewusste Mix der Materialien soll den Neubau verdeutlichen und gleichzeitig eine Langlebigkeit des Anbaus gewährleisten. Trotzdem fügt sich der Laubengang durch die Verwendung von Lärchenholz in den Konstruktionselementen in den vorhandenen Fachwerkhof optisch sehr gut ein. Für die Treppenstufen und Podeste wurde eine Kombination aus Lärchenbohle und Gitterrosten gewählt. Somit erhält man eine Rutschfestigkeit der Laufebene gerade bei feuchter Witterung.
In Zukunft werden im Rahmen der notwendigen Akquise von Wohnraum Bestandsgebäude wie dieses an Bedeutung gewinnen, denn die Schonung unserer Ressourcen ist das Gebot der Stunde. Durch die Beteiligung am Tag der Architekturen sollen die Besucher erleben können, wie modernes Wohnen und Arbeiten in historischer Architektur gelingen kann.
Projektdaten
Adresse
Hauptstraße 10
37318 Mackenrode
Planungsbüro
töpfer-werner-architektin, Mackenrode
Bauherr
Architekturbüro Töpfer-Werner
Fertigstellung
Mai 2022
Nutzfläche
50 m2
Preise/Auszeichnungen
LANDBAUKULTURPREIS 2016
An dieser Stelle wird eine Google-Maps-Karte angezeigt, wenn Sie das Speichern der entsprechenden Cookies erlaubt haben. Dies können Sie über die Privatsphäre-Einstellungen jederzeit tun.
Zugeordnete Schlagworte und Sammlungen
Weitere Projekte des gleichen Büros (2)
-
Hof Sickenberg
Asbach-Sickenberg
Hof Sickenberg, 37318 Asbach-Sickenberg OT Sickenberg
töpfer-werner-architektin, Mackenrode
-
Strohballenhaus Agerup Dänemark
Naestved
Sondergade 98, 4700 Naestved OT Agerup
töpfer-werner-architektin, Mackenrode
Letzte Aktualisierung dieser Seite am: 16.05.2023. Alle Angaben auf dieser Seite werden durch das Büro töpfer-werner-architektin, Mackenrode auf freiwilliger Basis verwaltet. Das Büro ist für den Inhalt dieser Seite selbst verantwortlich. Die Angaben werden von der Architektenkammer Thüringen nicht geprüft.