Logo der Architektenkammer Thüringen

APARTMENTHAUS MIT WACHSENBURGBLICK, ARNSTADT - Umbau und Sanierung eines Fabrikgebäudes zu einem Gebäude für Betreutes Wohnen und Intensivpflege · Arnstadt

Linimed Gruppe GmbH, Jena

Projektbeschreibung

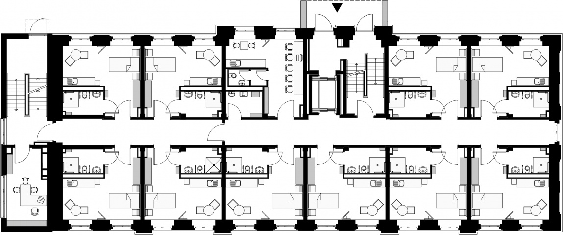
APARTMENTHAUS MIT WACHSENBURGBLICK ARNSTADT Auf dem Gelände der ehemaligen Kartonagenfabrik „Busch&Toelle“, ca. um 1911 errichtet und später durch Betrieb „RFT“ genutzt, verfiel das markante Haupthaus nach Ende der Produktion und Teilabbrüchen in den 1990er Jahren. Nach umfangreichen Umbau- und Sanierungsarbeiten entstand ein Gebäude für Betreutes Wohnen und Intensivpflege mit 30 barrierefreien Einraumwohnungen auf drei Etagen. Das zerstörte zweigeschossige Krüppelwalmdach des Haupthauses wurde durch eine wannenförmige Brettschichtholzkonstruktion mit Mehrzweckraum und Dachterrassen mit schönem Blick auf die Wachsenburg ersetzt. Der Hauptbaukörper mit äußerem Ziegelmauerwerk und innerem Stahlbetonskelettbau konnte mit zusätzlichen Wandscheiben, Brandschutzverkleidungen und Aufzugsschacht erhalten werden. Die Bestandsfassade wurde mit mineralischem WDVS verkleidet. Treppenhausanbau, Dachneubau und Markisen sind in die Fassadengestaltung integriert. Das Gebäude ist nach Energieeffizienzhausstandard KfW 70 ausgeführt, mit einem BHKW versorgt und erfüllt hohe Anforderungen an Brandschutz, Barrierefreiheit, Hygiene sowie an eine flexible Pflege im häuslichen Umfeld.

Projektdaten

Adresse

Karl-Liebknecht-Str. 21
99310 Arnstadt

Planungsbüro

Linimed Gruppe GmbH, Jena

Bauherr

LFV Grundbesitz GmbH

Fertigstellung

März 2020

Nutzfläche

1440 m2

An dieser Stelle wird eine Google-Maps-Karte angezeigt, wenn Sie das Speichern der entsprechenden Cookies erlaubt haben. Dies können Sie über die Privatsphäre-Einstellungen jederzeit tun.

Zugeordnete Schlagworte und Sammlungen

Letzte Aktualisierung dieser Seite am: 01.02.2021. Alle Angaben auf dieser Seite werden durch das Büro Linimed Gruppe GmbH, Jena auf freiwilliger Basis verwaltet. Das Büro ist für den Inhalt dieser Seite selbst verantwortlich. Die Angaben werden von der Architektenkammer Thüringen nicht geprüft.

Seite teilen: