Bahnhofsareal Rottenburg am Neckar
6 Projektbilder
Projektbeschreibung
Wettbewerb - 2.Preis
in Zusammenarbeit mit clubL94 Landschaftsarchitekten und Sehlhoff GmbH Verkehrsplaner
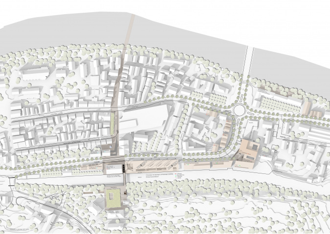
Der geplante Busbahnhof vereint die Verkehrsfunktionen am Ort. Die Haltestellen werden so angeordnet, dass aus beiden Richtungen das Anfahren ungehindert möglich ist. Das neue Dach verbindet Bus und Bahn. Ebenso wird über eine Fußgängerbrücke (mit Aufzug) der Bereich um die Klause und das südliche Wohngebiet angebunden und fußläufig mit der Altstadt verknüpft.
Für das Abstellen von Fahrrädern wird ein Fahrradparkhaus mit kleiner Werkstatt bzw. Verleih auf der Westseite des ehem. Bahnhofsgebäudes vorgesehen. Die Überdachung korrespondiert formal mit dem Busbahnhofsdach und fasst durch das Verlassen der Flucht den Bahnhofsplatz an seinen Kanten.
Die Fußgängerbrücke führt direkt und barrierefrei vom Dach des Busbahnhofs zum begrünten Dach des Parkdecks, das als Stadtbalkon sich mit dem Plateau der Klause vereint. Die Bahnhofstraße wird weitgehend verkehrsberuhigt. Die Freitreppe erfährt eine erhebliche Aufweitung und Neugestaltung, sodass sie als Aufenthaltsort attraktiv wird. Das Ostende der Poststraße wird baulich neu gefasst. Ein kleiner Vorplatz erschließt den geplanten Bio-Supermarkt.
Die bahnbegleitenden Gebäude erhalten Flachdächer mit Staffelgeschossen, die mit dem klaren Duktus der Verkehrsbauten für Busse und Fahrräder kommunizieren und der neuen Poststraße eine eigene Prägung verleihen. Der Schlachthof kann zu einem Kulturzentrum umgenutzt werden. Die Tübinger Straße erhält im Bereich des Rückgaberareals eine ergänzende bauliche Fassung. Hier wird die Bebauung kleinteilig und mit den typischen giebelständigen Satteldächern ergänzt.
Projektdaten
Adresse
Rottenburg am Neckar
Planungsbüro
dma deckertmesterarchitekten Partnerschaft mbB BDA, Erfurt
Fertigstellung
2015
An dieser Stelle wird eine Google-Maps-Karte angezeigt, wenn Sie das Speichern der entsprechenden Cookies erlaubt haben. Dies können Sie über die Privatsphäre-Einstellungen jederzeit tun.
Zugeordnete Schlagworte und Sammlungen
Weitere Projekte des gleichen Büros (22)
-
Musterzimmer auf Schloss Wiehe
Roßleben-Wiehe
Buttstädter Straße 10, 06571 Roßleben-Wiehe OT Wiehe
dma deckertmesterarchitekten Partnerschaft mbB BDA, Erfurt
Fachhochschule Erfurt, Fakultät Architektur und Stadtplanung, Erfurt -
HANSI
Erfurt
Hans-Sailer-Straße 17, 99089 Erfurt OT Ilversgehoven
dma deckertmesterarchitekten Partnerschaft mbB BDA, Erfurt
-
Umbau HeHe
Erfurt
Im Hahnegarten 13, 99092 Erfurt
dma deckertmesterarchitekten Partnerschaft mbB BDA, Erfurt
-
Adele Chalet
Lenzerheide
Fadail 46, 7078 Lenzerheide
dma deckertmesterarchitekten Partnerschaft mbB BDA, Erfurt
-
Bahnhofsparkhaus Rottenburg
Rottenburg am Neckar
Schadenweilerstraße, 11, 72108 Rottenburg am Neckar
dma deckertmesterarchitekten Partnerschaft mbB BDA, Erfurt
-
Mut zur Lücke Wittenberg
Lutherstadt Wittenberg
Collegienstraße, 06886 Lutherstadt Wittenberg
dma deckertmesterarchitekten Partnerschaft mbB BDA, Erfurt
-
Puschkinpark
Lutherstadt Wittenberg
Puschkinstraße, 8, 06886 Lutherstadt Wittenberg
dma deckertmesterarchitekten Partnerschaft mbB BDA, Erfurt
WLA Wengemuth Landschaftsarchitektur, Erfurt -
Gartenstadt mit System
Erfurt
Tallinner Straße, 99091 Erfurt
dma deckertmesterarchitekten Partnerschaft mbB BDA, Erfurt
-
Mehrwertplatte Ossietzky Hof
Nordhausen
Carl-Ossietzky-Straße,5, 99734 Nordhausen
dma deckertmesterarchitekten Partnerschaft mbB BDA, Erfurt
WLA Wengemuth Landschaftsarchitektur, Erfurt -
Stadthaus „Haus zur Rose“
Erfurt
Pergamentergasse 2, 99084 Erfurt
dma deckertmesterarchitekten Partnerschaft mbB BDA, Erfurt
-
industrieanlage in soest
warstein
gewerbegebiet am kalkofen , 59581 warstein OT allagen
dma deckertmesterarchitekten Partnerschaft mbB BDA, Erfurt
-
haus db
Erfurt
Meineckestraße 14, 99092 Erfurt OT Brühlervorstadt
dma deckertmesterarchitekten Partnerschaft mbB BDA, Erfurt
-
Haus zum Eichhorn
Erfurt
Pergamentergasse 4, 99084 Erfurt OT Andreasviertel
dma deckertmesterarchitekten Partnerschaft mbB BDA, Erfurt
-
Kilianihöfe
Erfurt
Erfurt OT Gispersleben
dma deckertmesterarchitekten Partnerschaft mbB BDA, Erfurt
-
Wohnhaus H6
Erfurt
Barbarossahof 13, 99092 Erfurt
dma deckertmesterarchitekten Partnerschaft mbB BDA, Erfurt
-
neubau zentraler busbahnhof jena
Jena
Am Volksbad 1-2, 07743 Jena OT Jena
dma deckertmesterarchitekten Partnerschaft mbB BDA, Erfurt
-
kantine behördenzentrum chemnitz
chemnitz
brückenstraße 12, 09111 chemnitz
dma deckertmesterarchitekten Partnerschaft mbB BDA, Erfurt
-
straßenmeisterei
Thermalbad Wiesenbad
annaberger straße 53, 09488 Thermalbad Wiesenbad OT Schönfeld
dma deckertmesterarchitekten Partnerschaft mbB BDA, Erfurt
-
wohnhaus d
erfurt
weisse gasse 36, erfurt
dma deckertmesterarchitekten Partnerschaft mbB BDA, Erfurt
-
ferienhaus b
bad saarow
am kleinen glubigsee, bad saarow
dma deckertmesterarchitekten Partnerschaft mbB BDA, Erfurt
Letzte Aktualisierung dieser Seite am: 09.02.2016. Alle Angaben auf dieser Seite werden durch das Büro dma deckertmesterarchitekten Partnerschaft mbB BDA, Erfurt auf freiwilliger Basis verwaltet. Das Büro ist für den Inhalt dieser Seite selbst verantwortlich. Die Angaben werden von der Architektenkammer Thüringen nicht geprüft.