Bauhaus-Universität Weimar - Ausbau Dachgeschoss in der Coudraystraße 11 · Weimar
5 Projektbilder
-
In der Mitte, zwischen studentischen und Mitarbeiterbüros, wurde ein Glas-Kubus als Beratungsraum geschaffen., Bild: Frank Häselbarth -
Der Entwurf sah als wichtigstes Merkmal vor, die bereits vorhandene besondere Stahlbetonkonstruktion sichtbar zu lassen., Bild: Frank Häselbarth -
Eine moderne, funktionale Arbeitsatmosphäre und viel Licht prägen das neu ausgebaute Dachgeschoss., Bild: Frank Häselbarth -
: In der Mitte, zwischen studentischen und Mitarbeiterbüros, wurde ein Glas-Kubus als Beratungsraum geschaffen., Bild: Frank Häselbarth -
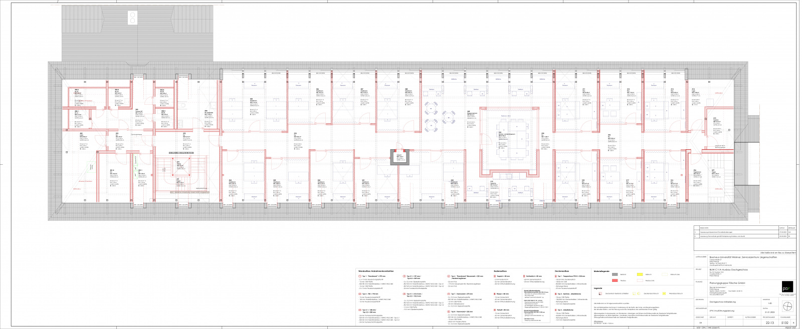
Grundriss Dachgeschoss C11A, Bild: Frank Häselbarth
Tag der Architektur 2026
Samstag, 27.06.2026 – geöffnet 10:00-14:00, Führungen 11:00, 13:00 (Treffpunkt: Foyer Erdgeschoss)
Sonntag, 28.06.2026 – geöffnet 10:00-14:00, Führungen 11:00, 13:00 (Treffpunkt: Foyer Erdgeschoss)
Projektbeschreibung
Im Universitätsgebäude Coudraystraße 11, Sitz des F.A. Finger-Instituts für Baustoffe der Bauhaus-Universität Weimar, wurde das Dachgeschoss bis Februar 2024 ausgebaut. Ziel war es, zusätzliche Räume für Studium, Lehre und Forschung zu schaffen und der Fakultät Bauingenieurwesen zusätzliche Räume zur Verfügung zu stellen. Dem Projekt ging ein Wettbewerb voraus, den die Planungsgruppe Fölsche GmbH für sich entschied. Prägend für den Entwurf war der respektvolle Umgang mit der vorhandenen Dachkonstruktion aus Stahlbeton, die sichtbar belassen wurde. Arbeits- und Büroräume wurden als eingestellte Kuben organisiert. Glastrennwände sorgen fortan für Transparenz und führen Tageslicht von der Westgaube tief in den Flur und schlechter belichtete Räume. Ergänzt wird die Struktur durch einen zentralen Beratungsraum sowie Aufenthaltsbereiche und Teeküche.
Projektdaten
Adresse
Coudraystraße 11
99423 Weimar
Planungsbüro
Planungsgruppe Fölsche GmbH, Weimar
Bauherr
Bauhaus-Universität Weimar, Servicezentrum Liegenschaften
Fertigstellung
Februar 2024
Nutzfläche
600 m2
An dieser Stelle wird eine Google-Maps-Karte angezeigt, wenn Sie das Speichern der entsprechenden Cookies erlaubt haben. Dies können Sie über die Privatsphäre-Einstellungen jederzeit tun.
Zugeordnete Schlagworte und Sammlungen
Letzte Aktualisierung dieser Seite am: 25.04.2026. Alle Angaben auf dieser Seite werden durch das Büro Planungsgruppe Fölsche GmbH, Weimar auf freiwilliger Basis verwaltet. Das Büro ist für den Inhalt dieser Seite selbst verantwortlich. Die Angaben werden von der Architektenkammer Thüringen nicht geprüft.