Empfangspavillon an der Wartburgschleife · Eisenach
Haus-mit-Zukunft Architekten Kaiser Weiß PartGmbB, Erfurt
15 Projektbilder
-
Wartburg Pavillon_Frontalansicht Südseite, Bild: Thomas Weiß -
Wartburg Pavillon_Draufsicht, Bild: Thomas Weiß -
Wartburg Pavillon_Frontalansicht, Bild: Thomas Weiß -
Wartburg Pavillon_Glaskanzel, Bild: Thomas Weiß -
Wartburg Pavillon_Innenbereich, Bild: Thomas Weiß -
Wartburg Pavillon_Rückseite, Bild: Thomas Weiß -
Wartburg Pavillon_Rückseite West, Bild: Thomas Weiß -
Wartburg Pavillon_Frontal Nordseite, Bild: Thomas Weiß -
Wartburg Pavillon_Bau1, Bild: Thomas Weiß -
Wartburg Pavillon_Bau2, Bild: Thomas Weiß -
Wartburg Pavillon_Bau3, Bild: Thomas Weiß -
Wartburg Pavillon_Bau4, Bild: Thomas Weiß -
Wartburg Pavillon_Ansichten Wettbewerb, Bild: Thomas Weiß -
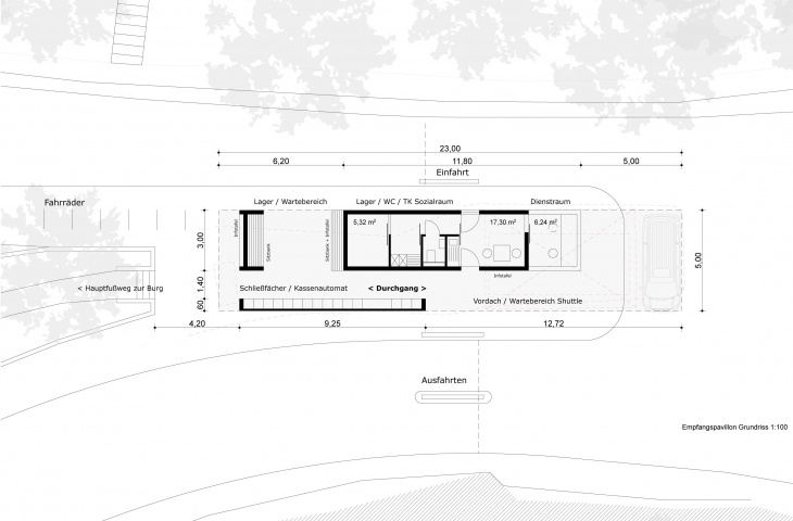
Wartburg Pavillon_Grundriss, Bild: Thomas Weiß -
Wartburg Pavillon_Visualisierung Wettbewerb, Bild: Thomas Weiß
Projektbeschreibung
Der Besucher wird durch die Skulptur des Empfangspavillons mit weit ausladendem Vordach und Wartebereich für die Shuttles empfangen. Die erforderlichen Funktionen: Dienstraum, Sozialraum+Teeküche, Personal-WC, Umkleide und Lager sind als eingestellte Box innerhalb der Skulptur untergebracht. In den sich skulptural ergebenden, überdachten Freiräume und Treffpunkt für Besucher, befinden sich Wartebereiche für Shuttles, Schließfächer, Kassenautomat, ein integrierter Außenlager-Schrank, sowie ein verbindender direkter Durchgang zum Hauptfußweg via Bogenbrücke zur Wartburg. Der Empfangspavillon besteht aus einer Leimholzkonstruktion mit Baubuche, die Fassaden wurden mit Cortenstahl-Platten versehen auch als Neuinterpretation vorhandener Metalleindeckungen im Wartburgensemble.
Projektdaten
Adresse
Auf der Wartburg 1
99817 Eisenach
Planungsbüro
Haus-mit-Zukunft Architekten Kaiser Weiß PartGmbB, Erfurt
Bauherr
Wirtschaftsbetriebe Wartburg GmbH
Fertigstellung
April 2017
Nutzfläche
30 m2
Preise/Auszeichnungen
Architekturpreis der Architektenkammer Thüringen 2019
An dieser Stelle wird eine Google-Maps-Karte angezeigt, wenn Sie das Speichern der entsprechenden Cookies erlaubt haben. Dies können Sie über die Privatsphäre-Einstellungen jederzeit tun.
Zugeordnete Schlagworte und Sammlungen
Letzte Aktualisierung dieser Seite am: 01.12.2023. Alle Angaben auf dieser Seite werden durch das Büro Haus-mit-Zukunft Architekten Kaiser Weiß PartGmbB, Erfurt auf freiwilliger Basis verwaltet. Das Büro ist für den Inhalt dieser Seite selbst verantwortlich. Die Angaben werden von der Architektenkammer Thüringen nicht geprüft.