Logo der Architektenkammer Thüringen

Erweiterung Angergymnasium Jena

sabine walther architektin, Jena

Projektbeschreibung

Die Schule befindet sich im östlichen Teil der Jenaer Innenstadt in Wenigenjena direkt an der östlichen Ausfallstraße als letztes Gebäudeensemble stadtauswärts Richtung Eisenberg.

Das Hauptgebäude der Ostschule wurde 1910 errichtet und steht einschließlich der zeitgleich errichteten Turnhalle als Ensemble unter Denkmalschutz. Die Architektur des alten Schulgebäudes ist streng funktional gegliedert und der Zeit entsprechend bei der Ausführung der Oberflächen in der Formensprache des Jugendstil gestaltet. Das Gebäude wurde durchgehend als Schule genutzt und hat seit der Errichtung mehrere Umbauten erlebt, wurde aber nie in seiner baulichen Struktur wesentlich verändert.

Der zusätzliche Raumbedarf für den viergeschossigen Anbau resultiert aus der Erweiterung des pädagogischen Angebotes des Angergymnasiums durch bilingualen Fachunterricht als weiter führende Bildungseinrichtung. Die neuen Räume sollten direkt an die Organisationsstruktur des Hauptgebäudes angebunden werden.

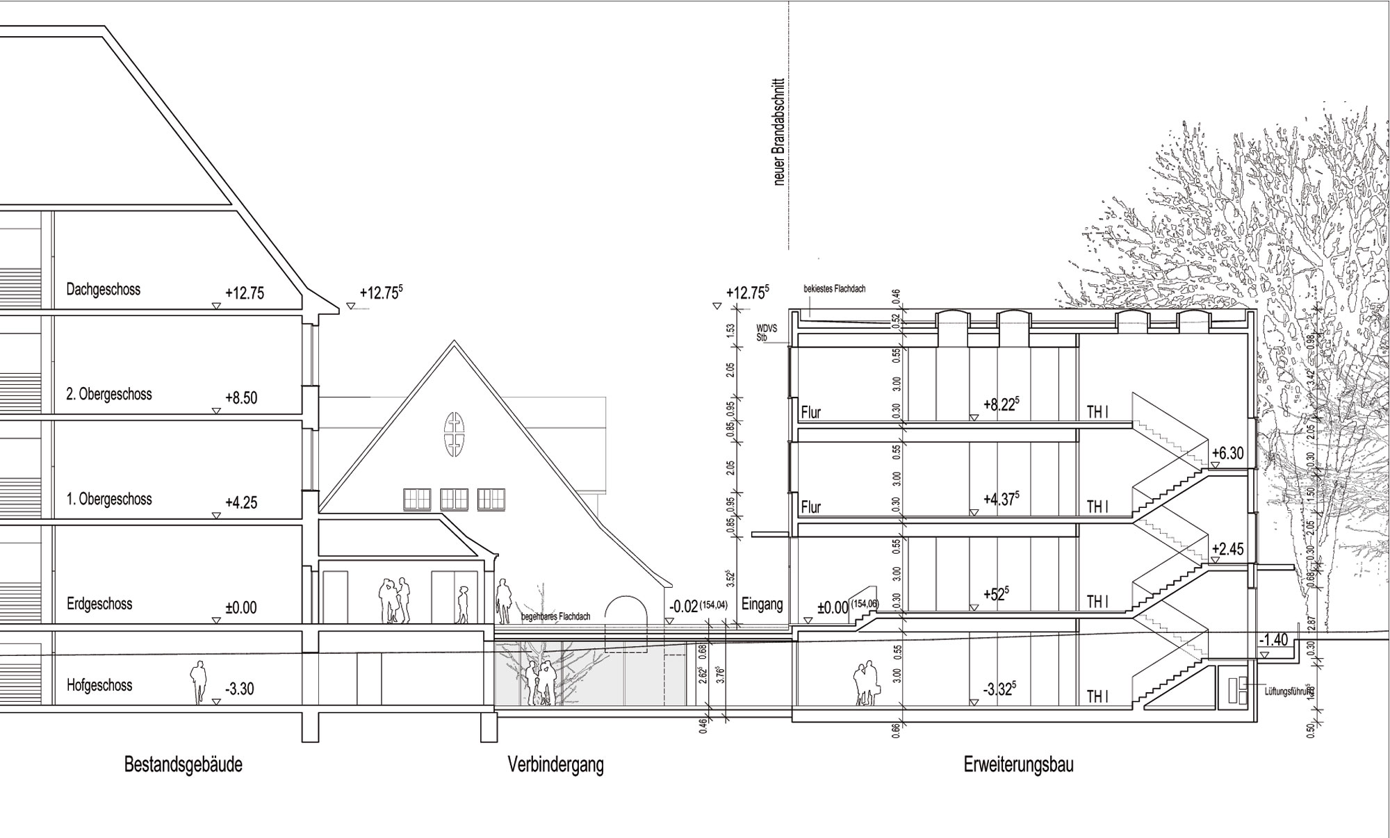
Um das Denkmalensemble zu wahren, wurde im unterirdischen Hofgeschoss ein Verbindungsgang  eingerichtet. Der neue Baukörper entwickelt sich aus der inneren Struktur des vorhandenen Hauptgebäudes; Flurachsen und Raumanordnungen wurden wieder aufgenommen. Ebenso stellt die Aufnahme der Geschosshöhen ein wichtiges Moment bei der Gestaltung dar. Dabei wurde besonders auf die Korrespondenz von Sockelabschluss und Dachkante des Altbaus mit den Linien des Neubaus geachtet. Für eine Beruhigung der Fassadengestaltung wurde ein einheitliches Fensterformat gewählt, dass durch unterschiedliche Anordnung und Reihung die Fassade gliedert. Die innere Fensterteilung lehnt sich an die dreifache Gliederung der Fenster im Hauptgebäude an.

Die farbliche Gestaltung des Neubaus orientiert sich an der natürlichen Farbpalette des regionalen Kalksteins und nimmt so den Bezug zum Sockel des historischen Hauptgebäudes auf. Eine zeitgemäße Betonung des Eingangsbereiches und der nördlichen Treppenhaus-Achse mit einem Farbspiel in erdigen Rottönen verleiht dem Gebäude einen freundlichen einladenden Charakter und verleiht dem modernen schlichten Baukörper eine Eleganz, die mit den Schmuckelementen der Altbaufassade korrespondiert.

Der entstandene Freiraum zwischen Haupthaus und Neubau wurde als Aufenthaltsbereich aufgewertet und bildet einen attraktiven Zugang zum Neubau. Hier fügen sich auch acht historische Putzbilder aus den sechziger Jahren des vergangenen Jahrhunderts ein, die an der Giebelseite des abgebrochenen eingeschossigen Lehrgebäudes vorhanden waren.

Projektdaten

Adresse

Karl- Liebknecht- Str. 87
07749 Jena OT Wenigenjena

Planungsbüros

sabine walther architektin, Jena
3F-DESIGN Landschaftsarchitektur, Jena

Bauherr

Kommunale Immobilien Jena

Fertigstellung

August 2011

Nutzfläche

760 m2

An dieser Stelle wird eine Google-Maps-Karte angezeigt, wenn Sie das Speichern der entsprechenden Cookies erlaubt haben. Dies können Sie über die Privatsphäre-Einstellungen jederzeit tun.

Letzte Aktualisierung dieser Seite am: 19.04.2012. Alle Angaben auf dieser Seite werden durch das Büro sabine walther architektin, Jena auf freiwilliger Basis verwaltet. Das Büro ist für den Inhalt dieser Seite selbst verantwortlich. Die Angaben werden von der Architektenkammer Thüringen nicht geprüft.

Seite teilen: