Erweiterung Geschäftsstelle WBG Südharz · Nordhausen
Architekturbüro Dr. Michael Flagmeyer, Nordhausen
8 Projektbilder
-
Südwestansicht, Bild: Michael Flagmeyer -
Eingang, Bild: Michael Flagmeyer -
Südostansicht, Bild: Michael Flagmeyer -
Südostansicht Tag, Bild: Michael Flagmeyer -
zentrales Treppenhaus, Bild: Michael Flagmeyer -
Konferenzraum, Bild: Michael Flagmeyer -
Staffelgeschoss, Bild: Michael Flagmeyer -
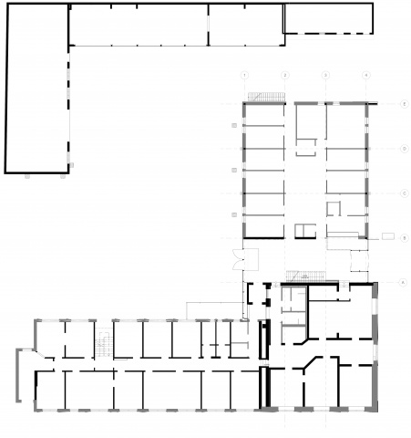
Grundriss Erdgeschoss, Bild: Michael Flagmeyer
Projektbeschreibung
Umbau und Erweiterung Hauptgeschäftsstelle der Wohnungsbaugenossenschaft eG Südharz
Situation
Aufgabe war die Erweiterung der Büroflächen der Wohnungsbaugenossenschaft eG Südharz am Standort Bochumer Straße in Nordhausen. Dabei sollten die bisher durch die ca. 50 Mitarbeiter genutzten Gebäude mit einem Erweiterungsneubau zu einer gestalterischen Einheit zusammengefasst werden. Besonderes Augenmerk war auf die barrierefreie Erschließung zu legen, da es pro Etage bis zu drei Höhenstufen zu überwinden galt.
Umsetzung
Nach Abriss einer Werkhalle erweitert der Entwurf die Gebäude nach Osten um einen 2-geschossigen Bürotrakt, der als Kombibüro mit seitlichen Zellen und einer mittleren Kombizone entworfen wurde. Dessen Tiefe ist so gewählt, dass der Hof jederzeit mit Transportfahrzeugen erreicht werden kann. Zwischen Altbau im Süden und Neubau im Norden liegt der neue Haupteingang mit Zugang zu den einzelnen Büroetagen über Treppen bzw. barrierefrei mit dem Fahrstuhl. Eine besondere Herausforderung war dabei das barrierefreie Erreichen von fünf unterschiedlichen Höhenlagen in drei Geschossen. Über dem Bestandsgebäude im Südwesten wurde ein Konferenzraum errichtet, in dem die Vertreterversammlungen und Seminare der Genossenschaft stattfinden.
Um ungestörtes Arbeiten zu ermöglichen, wurde in enger Zusammenarbeit mit einem Büro für Bau- und Raumakustik besondere Aufmerksamkeit auf den Schallschutz im Gebäude gelegt. So sind alle Bereiche des Neubaus mit einer Akustikdecke, hochschalldämmenden Glastrennwänden und schallabsorbierendem Bodenbelag mit mehrschichtigem Aufbau ausgestattet. Alle Gebäudeteile werden durch besonders leise und energiesparende Lüftungs- und Klimatechnik (adiabate Kühlung) versorgt; großflächige Verschattungen mit freitragenden Fassadenraffstores ermöglichen optimalen sommerlichen Wärmeschutz und senken den Energieverbrauch der Klimaanlage.
Die Energieversorgung und das Laden der eSmarts werden u. a. von einer 200 m2 Fotovoltaikanlage gespeist.
Leistungsphasen 1-5: Dr. Michael Flagmeyer Architekt
Leistungsphasen 6-8: Ingenieurbüro für Bauwesen Hebestreit
Fachplanung HLS: Ingenieurbüro für Technische Gesamtplanung Srocke
Fachplanung ELT: MSR-Gebäudetechnik GmbH
Fachplanung Schallschutz: Dr. Blechschmidt & Reinhold GmbH
Projektdaten
Adresse
Bochumer Straße 3-5
99734 Nordhausen
Planungsbüro
Architekturbüro Dr. Michael Flagmeyer, Nordhausen
Bauherr
Wohnungsbaugenossenschaft eG Südharz
Fertigstellung
Juli 2015
Nutzfläche
2240 m2
An dieser Stelle wird eine Google-Maps-Karte angezeigt, wenn Sie das Speichern der entsprechenden Cookies erlaubt haben. Dies können Sie über die Privatsphäre-Einstellungen jederzeit tun.
Zugeordnete Schlagworte und Sammlungen
Letzte Aktualisierung dieser Seite am: 16.05.2017. Alle Angaben auf dieser Seite werden durch das Büro Architekturbüro Dr. Michael Flagmeyer, Nordhausen auf freiwilliger Basis verwaltet. Das Büro ist für den Inhalt dieser Seite selbst verantwortlich. Die Angaben werden von der Architektenkammer Thüringen nicht geprüft.