Forschungsbau „Weltbeziehungen“ · Erfurt
OBERMEYER Gebäudeplanung GmbH & Co. KG, München
16 Projektbilder
-
Fassade, Bild: Steven Neukirch -
Forschungsbau „Weltbeziehungen“, Bild: Steven Neukirch -
Wandelhalle, Bild: Steven Neukirch -
Wandelhalle, Bild: Steven Neukirch -
Forschungsbau „Weltbeziehungen“, Bild: Steven Neukirch -
Treppenraum, Bild: Steven Neukirch -
Treppenraum, Blick in das Treppenauge, Bild: Steven Neukirch -
Büro, die sogenannte Denkzelle, Bild: Steven Neukirch -
Seminarraum, Bild: Steven Neukirch -
Wandelhalle, Bild: Steven Neukirch -
Grundriss Erdgeschoss, Bild: OBERMEYER Gebäudeplanung GmbH & Co. KG -
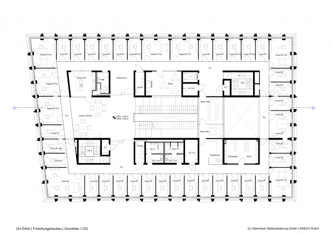
Grundriss Erstes Obergeschoss, Bild: OBERMEYER Gebäudeplanung GmbH & Co. KG -
Schnitt A-A, Bild: OBERMEYER Gebäudeplanung GmbH & Co. KG -
Forschungsbau „Weltbeziehungen“, Bild: Steven Neukirch -
Forschungsbau „Weltbeziehungen“, Bild: Steven Neukirch -
Forschungsbau „Weltbeziehungen“, Bild: Steven Neukirch
Projektbeschreibung
Der Neubau setzt zukunftsweisende Akzente im Hochschulbau, weil er konsequent auf verschiedene Formen wissenschaftlicher Arbeit und Kommunikation hin angelegt ist. Er ist ein wichtiger baulicher Entwicklungsschritt für die Universität Erfurt. Im Bauensemble des Campus‘ fällt er auf und vermittelt durch die äußere Gestaltung der Fassade mit den zahlreichen großformatigen Fensterflächen und den dahinterliegenden Arbeitsplätzen eine Transparenz, die sich im Inneren des Gebäudes fortsetzt. Die große Treppenanlage mit Podesten, auf denen man verweilen kann, lädt nicht nur zu kurzen Gesprächen ein, sondern lässt sich auch für Veranstaltungen nutzen. Die „Denkzellen“, kleinere Arbeitsräume, bieten die Möglichkeit zu ungestörter Arbeit am eigenen Projekt. Daneben gibt es größere Räume für Teamarbeit und Besprechungen sowie Büroräume für Sekretariate und Leitungspersonal.
Projektdaten
Adresse
Max-Weber-Allee 3
99089 Erfurt
Planungsbüros
OBERMEYER Gebäudeplanung GmbH & Co. KG, München
lichtraum, Weimar
Bauherr
Freistaat Thüringen, vertreten durch die Universität Erfurt
Fertigstellung
Oktober 2023
Nutzfläche
2480 m2
An dieser Stelle wird eine Google-Maps-Karte angezeigt, wenn Sie das Speichern der entsprechenden Cookies erlaubt haben. Dies können Sie über die Privatsphäre-Einstellungen jederzeit tun.
Zugeordnete Schlagworte und Sammlungen
Letzte Aktualisierung dieser Seite am: 16.05.2024. Alle Angaben auf dieser Seite werden durch das Büro OBERMEYER Gebäudeplanung GmbH & Co. KG, München auf freiwilliger Basis verwaltet. Das Büro ist für den Inhalt dieser Seite selbst verantwortlich. Die Angaben werden von der Architektenkammer Thüringen nicht geprüft.