Forstamt Jena-Holzland · Stadtroda
Cornelsen+Seelinger Architekten BDA, Darmstadt
9 Projektbilder
-
Westansicht, Bild: Thomas Eicken -
Büroräume, Bild: Thomas Eicken -
Galeriebereich, Bild: Thomas Eicken -
Sekretariat, Bild: Thomas Eicken -
Isometrie, Bild: Martin Seelinger -
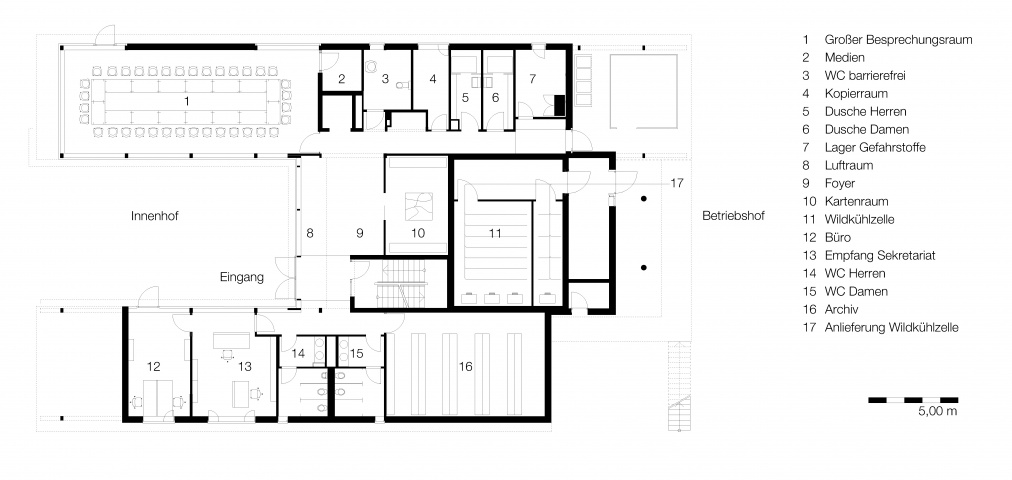
Grundriss Erdgeschoss (1:100), Bild: Martin Seelinger -
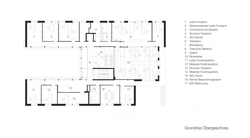
Grundriss Obergeschoss (1:100), Bild: Martin Seelinger -
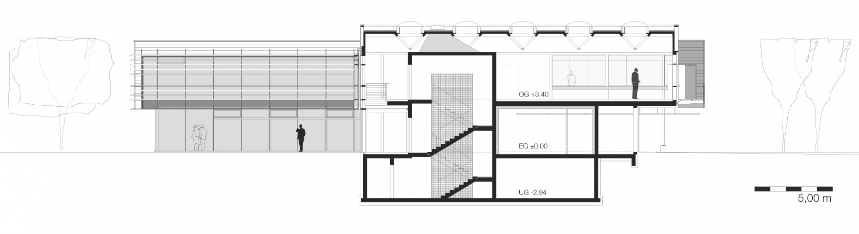
Längsschnitt (1:100), Bild: Martin Seelinger -
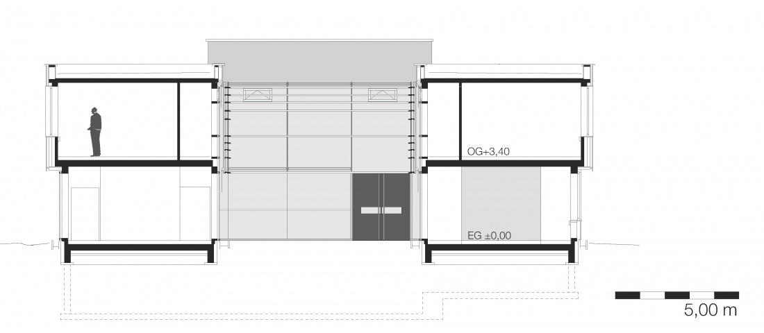
Querschnitt (1:100), Bild: Martin Seelinger
Projektbeschreibung
Der Neubau ‚Forstamt Jena-Holzland‘ in Stadtroda (Ostthüringen) beherbergt eines von 24 Thüringer Forstämtern sowie die Forstinspektion Ost. Das naturnahe Anwesen ist geprägt von einem alten Arboretum und weitläufigen Streuobstwiesen mit Bienenstöcken. Somit bot das Grundstück ideale Voraussetzungen für das Forstamt, das nicht nur ca. 12.000 Hektar Staatsforst verwaltet, private und kommunale Waldbesitzer berät, sondern auch in zahlreichen waldpädagogischen Angeboten Wissen über das Ökosystem Wald und die Bedeutung von nachhaltiger Forstwirtschaft vermitteln will.
Besucher und Mitarbeiter gelangen von Süden über einen mit Staudenpflanzungen strukturierten Parkplatz zum Eingangsbereich. Über den Innenhof zwischen den beiden Gebäudeflügeln betritt man das zweigeschossige Entrée. Der Betriebshof auf der Rückseite ist über eine separate Zufahrt von Osten zu erreichen.
Das Gebäude ist ein konstruktiver Holzbau; nur Untergeschoss, Erschließungskerne und Wildkühlkammer sind aus Stahlbeton. Der zweistöckige Neubau bietet hervorragende Möglichkeiten, die gesamte heimische Wertschöpfungskette beim Bauen mit Holz abzubilden – von der seit Jahrhunderten in Deutschland praktizierten Waldbewirtschaftung bis zur Verwendung als innovativem leistungsfähigem Konstruktionswerkstoff und Innenausbaumaterial.
Das Tragskelett und die hybriden Holz-Beton-Verbunddecken bestehen aus ‚BauBuche‘. Dieser in Thüringen entwickelte Furnierwerkstoff aus heimischer Buche ermöglicht es aufgrund seiner Materialeigenschaften, sehr leistungsfähige Tragstrukturen zu realisieren. Bedingt durch die hohe Vorfertigung können Gebäude als Holzkonstruktion wesentlich schneller fertiggestellt werden als herkömmliche Bauten.
Die hinterlüftete Fassade ist als Holzrahmenbau mit Lärchenholzschalung oder Putzfassade ausgeführt. Die großzügig verglasten Fassaden des Innenhofs erleichtern die externe und interne Kommunikation und erlauben den Blick auf die Holztragkonstruktion sowie zahlreiche weitere Details aus heimischen Hölzern im Inneren. Als konstruktiver Holzbau mit einer Kombination aus bewährten und neuartigen Materialien zeigt das Forstamtsgebäude, was Holz als nachwachsendes und wirtschaftliches Baumaterial leisten kann.
Durch seine klare funktionale Struktur mit dem in der Mitte liegenden Gruppenbüro der Revierförster befördert der Entwurf den Austausch unter den ständig hier anwesenden Mitarbeitern und denen, die nur temporär im Büro arbeiten. Holzwerkstoffe, weiße Putzflächen und die für das Projekt angefertigten Tischsysteme mit farbigen textilen Akustikelementen sorgen für eine heitere Arbeitsatmosphäre und unterstreichen die Integration von Konstruktion, Gebäudehülle, Innenausbau und Möblierung.
Die Wahl eines konstruktiven Holzbaus war auch eine Entscheidung für aktiven Klimaschutz. Da durch den Baustoff Holz treibhausgaswirksame Rohstoffe ersetzt werden, verbessert sich die Klimabilanz gegenüber herkömmlich errichteten Gebäuden erheblich. Auch energetisch setzte der Auftraggeber auf Holz: Geheizt wird CO2-neutral mit Holzpellets aus dem Forst und der Holzverarbeitung.
Das hier erstellte Gebäude kann exemplarisch auch als Konzept für ein Büro-/ Verwaltungsgebäude für Kommunen oder Firmen dienen, da durch die positive Ausstrahlung die Kommunikation und Transparenz schlanker Organisationen befördert werden kann.
Projektdaten
Adresse
Gustav-Herrmann-Straße 27
07646 Stadtroda
Planungsbüro
Cornelsen+Seelinger Architekten BDA, Darmstadt
Bauherr
ThüringenForst – AöR
Fertigstellung
April 2018
Nutzfläche
875 m2
Preise/Auszeichnungen
Architekturpreis der Architektenkammer Thüringen 2019
Weitere:
Nominierung Thüringer Staatspreis für Architektur und Städtebau mit Sonderpreis Holzbau 2018
An dieser Stelle wird eine Google-Maps-Karte angezeigt, wenn Sie das Speichern der entsprechenden Cookies erlaubt haben. Dies können Sie über die Privatsphäre-Einstellungen jederzeit tun.
Zugeordnete Schlagworte und Sammlungen
Letzte Aktualisierung dieser Seite am: 08.06.2022. Alle Angaben auf dieser Seite werden durch das Büro Cornelsen+Seelinger Architekten BDA, Darmstadt auf freiwilliger Basis verwaltet. Das Büro ist für den Inhalt dieser Seite selbst verantwortlich. Die Angaben werden von der Architektenkammer Thüringen nicht geprüft.