Gastronomie auf der Veste Heldburg
Kummer Lubk + Partner Architekten Ingenieure Generalplaner, Erfurt
11 Projektbilder
-
Ansicht Süd, Bild: Steven Neukirch -
Schnitt, Bild: Tom Björn Förster -
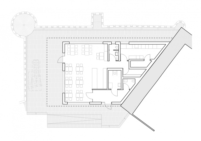
Grundriss, Bild: Tom Björn Förster -
WC - Unisex, Bild: Steven Neukirch -
Windfang I, Bild: Steven Neukirch -
Windfang II, Bild: Steven Neukirch -
Gastraum III, Bild: Steven Neukirch -
Gastraum II, Bild: Steven Neukirch -
Gastraum I, Bild: Steven Neukirch -
Außenansicht - West, Bild: Steven Neukirch -
Luftbild, Bild: Steven Neukirch
Projektbeschreibung
Zur Unterbringung einer Gastronomie auf der Veste Heldburg, wird auf dem Gewölbe des ehemaligen Küchenbaus, der Terrassenfläche westlich des Heidenbaugiebels ein eingeschossiger Neubau errichtet. Gestaltprägend ist ein weit auskragendes geneigtes Dach mit Kupferdeckung, das die zu großen Teilen freigehaltene, westliche Terrasse in den Entwurf einbindet. Der Ausblick in die umgebende Landschaft wird weiterhin ermöglicht.
Der offene und lichtdurchflutete Gastraum kann bis zu 50 Sitzplätze aufnehmen und ist um den zentralen Thekenbereich mit Oberlicht und Blick auf den Heidenbaugiebel aufgebaut.
Im rückwärtigen Bereich sind sämtliche dienenden Funktionen angeordnet. Das Gebäude ist als Brettsperrholzkonstruktion mit vorgehängter hinterlüfteter Lärchenschalung konzipiert. Im Innenraum dominieren natürliche Holzoberflächen – der Tresenbereich bildet einen farbigen Akzent.
Projektdaten
Adresse
Burgstraße 1
98663 Heldburg
Planungsbüro
Kummer Lubk + Partner Architekten Ingenieure Generalplaner, Erfurt
Bauherr
Stadt Heldburg I Stiftung Thüringer Schlösser und Gärten
Fertigstellung
August 2022
Nutzfläche
116 m2
An dieser Stelle wird eine Google-Maps-Karte angezeigt, wenn Sie das Speichern der entsprechenden Cookies erlaubt haben. Dies können Sie über die Privatsphäre-Einstellungen jederzeit tun.
Zugeordnete Schlagworte und Sammlungen
Weitere Projekte des gleichen Büros (4)
-
Kloster Göllingen - Neubau eines Empfangspavillons
Göllingen
Klosterstraße 4, 99707 Göllingen
Kummer Lubk + Partner Architekten Ingenieure Generalplaner, Erfurt
Tag der Architektur 2026
Sonntag, 28.06.2026 – geöffnet 10:00-17:00, Führungen 11:00, 12:00
-
Herzogin Anna Amalia Bibliothek, Weimar – Neugestaltung von Teilbereichen
Weimar
Platz der Demokratie 4, 99423 Weimar
Kummer Lubk + Partner Architekten Ingenieure Generalplaner, Erfurt
Tag der Architektur 2026
Samstag, 27.06.2026 – Führungen 10:00, 12:00, 14:00 (Treffpunkt: Innenhof)
-
Neubau Petersberg Entree und Umnutzung Kommandantenhaus
Erfurt
Petersberg 3, 99084 Erfurt
Kummer Lubk + Partner Architekten Ingenieure Generalplaner, Erfurt
-
Neubau Bürgeramt Erfurt
Erfurt
Bürgermeister-Wagner-Straße 1, 99094 Erfurt
Kummer Lubk + Partner Architekten Ingenieure Generalplaner, Erfurt
thoma architekten, Zeulenroda-Triebes
Letzte Aktualisierung dieser Seite am: 18.12.2024. Alle Angaben auf dieser Seite werden durch das Büro Kummer Lubk + Partner Architekten Ingenieure Generalplaner, Erfurt auf freiwilliger Basis verwaltet. Das Büro ist für den Inhalt dieser Seite selbst verantwortlich. Die Angaben werden von der Architektenkammer Thüringen nicht geprüft.