GreenOne | Neubau Mehrfamilienhaus · Nordhausen
Architekturbüro Dr. Michael Flagmeyer, Nordhausen
12 Projektbilder
-
Perspektive Nordost, Bild: Michael Flagmeyer -
Perspektive Südost, Bild: Michael Flagmeyer -
Überstand 1. Obergeschoss, Bild: Michael Flagmeyer -
Perspektive Hofseitig, Bild: Michael Flagmeyer -
Lichtschacht Treppenhaus, Bild: Michael Flagmeyer -
Schnitt, Bild: Michael Flagmeyer -
Ansicht Nord, Bild: Michael Flagmeyer -
Ansicht Süd, Bild: Michael Flagmeyer -
Grundriss Erdgeschoss, Bild: Michael Flagmeyer -
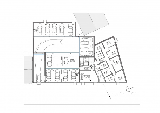
Grundriss UG/TG, Bild: Michael Flagmeyer -
Lageplan, Bild: Michael Flagmeyer -
Grundriss 2. OG, Bild: Michael Flagmeyer
Projektbeschreibung
Auf einer innerstädtischen Baulücke entstand ein energetisch optimiertes Mehrfamilienhaus mit barrierefreien Wohnungen nach einem 1. Preis eines Einladungswettbewerbs der WBG.
Der Entwurf nimmt die vorhandenen Raumkanten auf und schließt den Blockrand. Dabei resultiert aus den in sich verschränkten Ebenen ein markanter baulicher Akzent. Vertikale Pflanzebenen an den wechselseitig zurückspringenden Flächen als intensive Fassadenbegrünung ergänzen das ganz Besondere unter den Aspekten Nachhaltigkeit und Umweltbewußtsein. Ab dem 4. Obergeschoss rückt die Fassade ein. Das Staffelgeschoss nimmt Bezug auf die angrenzenden Satteldächer. Im Gebäudeinneren sind 14 barrierearme Wohnungen, wovon 3 Barrierefreiheit besitzen und eine als Maisonette das Wohnen über 2 Ebenen anbietet. Bis auf diese Wohneinheit besitzen alle anderen Loggien zur R.-Wagner-Straße oder zum Innenhof. Über ein zentrales Treppenhaus mit Aufzug und einem über alle Ebenen geführten Lichtschacht am straßenseitigen Hauseingang erschließen sich die 3- bis 5-Raumwohnungen den Mietern und ihren Gästen. Über die Treppen und den Aufzug sind auch die Tiefgarage, Abstellbereiche und Technikräume zu erreichen. In der Garage befinden sich alle 14 Stellplätze, 2 davon sind Verschiebeparker. Die Ein- und Ausfahrt erfolgt über die Stolberger Straße mit Ampelregelung.
Das Mehrfamilienhaus wird über eine Wärmepumpe beheizt, die Brauchwassererwärmung wird durch eine Photothermieanlage auf der begrünten Dachfläche unterstützt.
Das Vorhaben wurde vom Land mit dem Programm zur Innerstadtstabilisierung gefördert.
Gern kann das Projekt beim Baukosteninformationszentrum auch besucht werden: https://bki.de/planerverzeichnis/Architektur_Contor_Wienrich_GmbH.
Projektdaten
Adresse
Stolberger Straße 18
99734 Nordhausen
Planungsbüros
Architekturbüro Dr. Michael Flagmeyer, Nordhausen
LA21 Landschaftsarchitektur®, Nordhausen
Architektur Contor Wienrich GmbH, Nordhausen
Bauherr
Wohnungsbaugenossenschaft eG Südharz (WBG)
Fertigstellung
März 2022
Nutzfläche
1570 m2
An dieser Stelle wird eine Google-Maps-Karte angezeigt, wenn Sie das Speichern der entsprechenden Cookies erlaubt haben. Dies können Sie über die Privatsphäre-Einstellungen jederzeit tun.
Zugeordnete Schlagworte und Sammlungen
Letzte Aktualisierung dieser Seite am: 03.12.2025. Alle Angaben auf dieser Seite werden durch das Büro Architekturbüro Dr. Michael Flagmeyer, Nordhausen auf freiwilliger Basis verwaltet. Das Büro ist für den Inhalt dieser Seite selbst verantwortlich. Die Angaben werden von der Architektenkammer Thüringen nicht geprüft.