HANSI · Erfurt
15 Projektbilder
-
Bild: Victor S. Brigola -
Bild: Victor S. Brigola Photography -
Bild: Victor S. Brigola Photography -
Bild: Victor S. Brigola Photography -
Bild: Victor S. Brigola Photography -
Bild: Victor S. Brigola Photography -
Bild: Victor S. Brigola Photography -
Bild: Victor S. Brigola Photography -
Bild: Victor S. Brigola Photography -
Hansi_Lageplan, Bild: Rainer Mester -
Hansi_Grundriss EG, Bild: Rainer Mester -
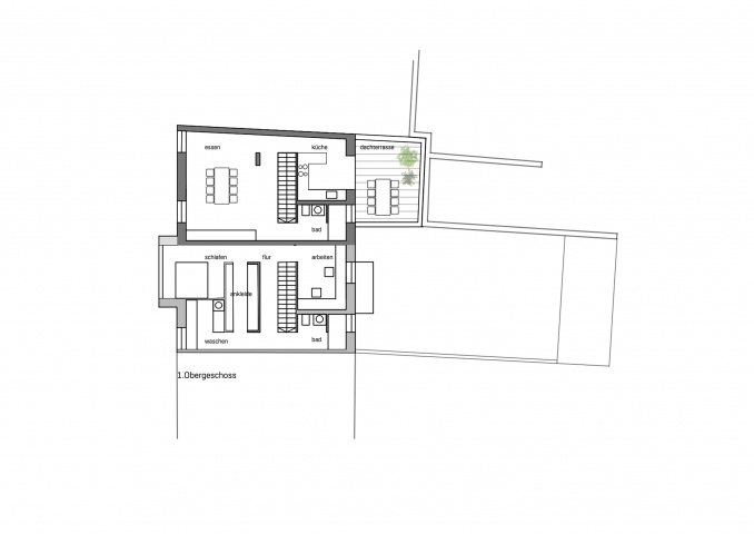
Hansi_Grundriss 1.OG, Bild: Rainer Mester -
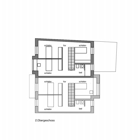
Hansi_Grundriss 2.OG, Bild: Rainer Mester -
Hansi_Grundriss DG, Bild: Rainer Mester -
Hansi_Schnitt, Bild: Rainer Mester
Projektbeschreibung
Blechbüchsenviertel nannten die Einheimischen einst die nördlichen Stadtviertel der Landeshauptstadt. Auf der Ostseite der Straße liegt das viergeschossige Zweifamilienhaus. Die Wohneinheiten sind derart miteinander verzahnt, dass die eine, dreigeschossig, den rückseitigen Garten erhält, während die andere sich über alle vier Geschosse nach oben entwickelt und zu zwei geräumigen Dachterrassen öffnet. Beide Wohnungen bieten Platz für vier- bis fünfköpfige Familien und je ein Auto. Die dunkle Blechfassade zieht sich über das steile Dach und erinnert selbstbewusst an das Blechbüchsenviertel. Darunter verbirgt sich eine Holzkonstruktion. Verspiegelte Erker adeln die ruppige Oberfläche. Erdwärme liefert die Energie für Heizen und warmes Wasser.
Projektdaten
Adresse
Hans-Sailer-Straße 17
99089 Erfurt OT Ilversgehoven
Planungsbüro
dma deckertmesterarchitekten Partnerschaft mbB BDA, Erfurt
Bauherr
Landwehr/Mester
Fertigstellung
April 2020
Nutzfläche
377 m2
Preise/Auszeichnungen
BDA Preis 1zu1 2021 Auszeichnung
An dieser Stelle wird eine Google-Maps-Karte angezeigt, wenn Sie das Speichern der entsprechenden Cookies erlaubt haben. Dies können Sie über die Privatsphäre-Einstellungen jederzeit tun.
Zugeordnete Schlagworte und Sammlungen
Weitere Projekte des gleichen Büros (22)
-
Musterzimmer auf Schloss Wiehe
Roßleben-Wiehe
Buttstädter Straße 10, 06571 Roßleben-Wiehe OT Wiehe
dma deckertmesterarchitekten Partnerschaft mbB BDA, Erfurt
Fachhochschule Erfurt, Fakultät Architektur und Stadtplanung, Erfurt -
Umbau HeHe
Erfurt
Im Hahnegarten 13, 99092 Erfurt
dma deckertmesterarchitekten Partnerschaft mbB BDA, Erfurt
-
Adele Chalet
Lenzerheide
Fadail 46, 7078 Lenzerheide
dma deckertmesterarchitekten Partnerschaft mbB BDA, Erfurt
-
Bahnhofsparkhaus Rottenburg
Rottenburg am Neckar
Schadenweilerstraße, 11, 72108 Rottenburg am Neckar
dma deckertmesterarchitekten Partnerschaft mbB BDA, Erfurt
-
Mut zur Lücke Wittenberg
Lutherstadt Wittenberg
Collegienstraße, 06886 Lutherstadt Wittenberg
dma deckertmesterarchitekten Partnerschaft mbB BDA, Erfurt
-
Puschkinpark
Lutherstadt Wittenberg
Puschkinstraße, 8, 06886 Lutherstadt Wittenberg
dma deckertmesterarchitekten Partnerschaft mbB BDA, Erfurt
WLA Wengemuth Landschaftsarchitektur, Erfurt -
Gartenstadt mit System
Erfurt
Tallinner Straße, 99091 Erfurt
dma deckertmesterarchitekten Partnerschaft mbB BDA, Erfurt
-
Mehrwertplatte Ossietzky Hof
Nordhausen
Carl-Ossietzky-Straße,5, 99734 Nordhausen
dma deckertmesterarchitekten Partnerschaft mbB BDA, Erfurt
WLA Wengemuth Landschaftsarchitektur, Erfurt -
Stadthaus „Haus zur Rose“
Erfurt
Pergamentergasse 2, 99084 Erfurt
dma deckertmesterarchitekten Partnerschaft mbB BDA, Erfurt
-
industrieanlage in soest
warstein
gewerbegebiet am kalkofen , 59581 warstein OT allagen
dma deckertmesterarchitekten Partnerschaft mbB BDA, Erfurt
-
haus db
Erfurt
Meineckestraße 14, 99092 Erfurt OT Brühlervorstadt
dma deckertmesterarchitekten Partnerschaft mbB BDA, Erfurt
-
Haus zum Eichhorn
Erfurt
Pergamentergasse 4, 99084 Erfurt OT Andreasviertel
dma deckertmesterarchitekten Partnerschaft mbB BDA, Erfurt
-
Bahnhofsareal Rottenburg am Neckar
Rottenburg am Neckar
Rottenburg am Neckar
dma deckertmesterarchitekten Partnerschaft mbB BDA, Erfurt
-
Kilianihöfe
Erfurt
Erfurt OT Gispersleben
dma deckertmesterarchitekten Partnerschaft mbB BDA, Erfurt
-
Wohnhaus H6
Erfurt
Barbarossahof 13, 99092 Erfurt
dma deckertmesterarchitekten Partnerschaft mbB BDA, Erfurt
-
neubau zentraler busbahnhof jena
Jena
Am Volksbad 1-2, 07743 Jena OT Jena
dma deckertmesterarchitekten Partnerschaft mbB BDA, Erfurt
-
kantine behördenzentrum chemnitz
chemnitz
brückenstraße 12, 09111 chemnitz
dma deckertmesterarchitekten Partnerschaft mbB BDA, Erfurt
-
straßenmeisterei
Thermalbad Wiesenbad
annaberger straße 53, 09488 Thermalbad Wiesenbad OT Schönfeld
dma deckertmesterarchitekten Partnerschaft mbB BDA, Erfurt
-
wohnhaus d
erfurt
weisse gasse 36, erfurt
dma deckertmesterarchitekten Partnerschaft mbB BDA, Erfurt
-
ferienhaus b
bad saarow
am kleinen glubigsee, bad saarow
dma deckertmesterarchitekten Partnerschaft mbB BDA, Erfurt
Letzte Aktualisierung dieser Seite am: 01.07.2024. Alle Angaben auf dieser Seite werden durch das Büro dma deckertmesterarchitekten Partnerschaft mbB BDA, Erfurt auf freiwilliger Basis verwaltet. Das Büro ist für den Inhalt dieser Seite selbst verantwortlich. Die Angaben werden von der Architektenkammer Thüringen nicht geprüft.