Haus am Milchberg · Kriebitzsch
Heim Balp Architekten, Berlin
13 Projektbilder
-
Fassadenansicht, Bild: Michael Heim -
Dachterrasse, Bild: Michael Heim -
Laubengang, Bild: Michael Heim -
Gastraum Erdgeschoss, Bild: Arkanum GbR -
Gastraum Erdgeschoss, Bild: Arkanum GbR -
Ansicht Laubengang, Bild: Michael Heim -
Ansicht Fassade, Bild: Michael Heim -
Fassadenansicht Detail, Bild: Michael Heim -
Schnitt, Bild: Michael Heim -
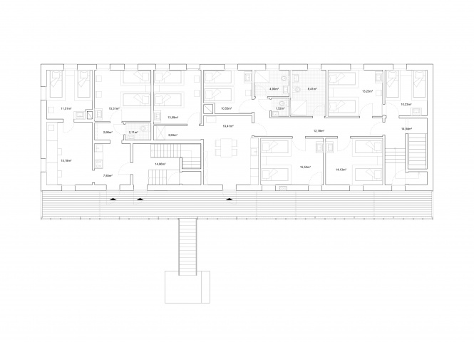
Obergeschoss, Bild: Michael Heim -
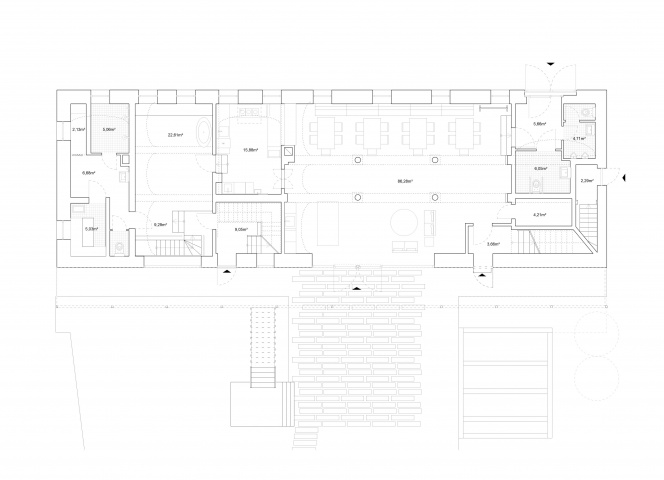
Erdgeschoss, Bild: Michael Heim -
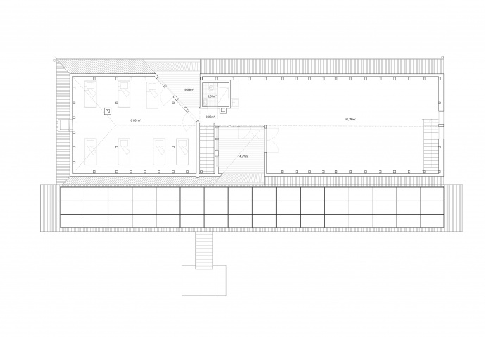
Dachgeschoss, Bild: Michael Heim -
Dachaufsicht, Bild: Michael Heim
Projektbeschreibung
Das Haus am Milchberg ist ein Projekt- und Seminarhaus, das als Dorfkernaktivierung in Kriebitzsch (Altenburger Land) konzipiert ist. Dafür wurde ein ehemaliges Wirtschaftsgebäude inklusive Garagenhof umgebaut und erweitert. Entstanden ist eine moderne Architektur, die traditionelle Elemente wie Laubengang und Holzfachwerk mit zeitgenössichen Ästhetik verbinden und damit eine kulturelle Wiederbelebung des Dorfkerns anstrebt. Zentrale Themen des Projektes sind Recycling, Reuse, natürliches Bauen, Verbindung von Mensch und Natur. Mit dem Projekt sollen verlorengegangene Orte der Gemeinschaft in einer neuen Form wiederbelebt werden. Das Haus bietet einen großen Gastraum mit Küche, 8 Gästezimmer und Projekträume im Dachgeschoss.
Projektdaten
Adresse
Mittelstraße 13
04617 Kriebitzsch
Planungsbüro
Heim Balp Architekten, Berlin
Bauherr
Müller Gebhardt Heim GBR
Fertigstellung
September 2024
Nutzfläche
500 m2
An dieser Stelle wird eine Google-Maps-Karte angezeigt, wenn Sie das Speichern der entsprechenden Cookies erlaubt haben. Dies können Sie über die Privatsphäre-Einstellungen jederzeit tun.
Zugeordnete Schlagworte und Sammlungen
Letzte Aktualisierung dieser Seite am: 22.05.2025. Alle Angaben auf dieser Seite werden durch das Büro Heim Balp Architekten, Berlin auf freiwilliger Basis verwaltet. Das Büro ist für den Inhalt dieser Seite selbst verantwortlich. Die Angaben werden von der Architektenkammer Thüringen nicht geprüft.