haus db · Erfurt
14 Projektbilder
-
Wohnzimmer alt, Bild: Rainer Mester -
Wohnraum, Bild: Rainer Mester -
Wohnraum, Bild: Rainer Mester -
Küche alt, Bild: Rainer Mester -
Küche, Bild: Rainer Mester -
Flur OG alt, Bild: Rainer Mester -
Flur Obergeschoss, Bild: Rainer Mester -
Badezimmer alt, Bild: Rainer Mester -
Badezimmer, Bild: Rainer Mester -
Badezimmer Detail, Bild: Rainer Mester -
Terrasse alt, Bild: Rainer Mester -
Terrasse, Bild: Rainer Mester -
Stufendetail, Bild: Rainer Mester -
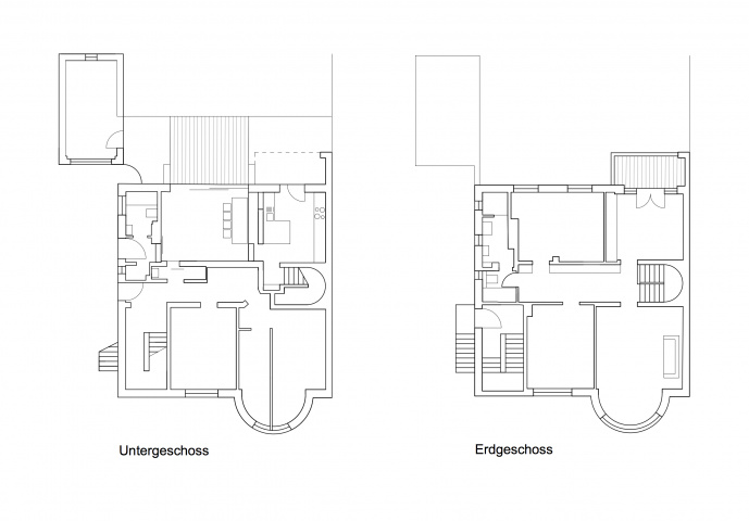
Grundrisse, Bild: Rainer Mester
Projektbeschreibung
Aus den Zwanzigerjahren des letzten Jahrhunderts stammt das Mehrfamilienhaus in bevorzugter Wohnlage an einem Südhang gelegen, der einst als Weinberg genutzt wurde. Da die Eigentümer sich eine altersgerechte Wohnung im Zentrum zugelegt hatten, wurde die Erdgeschosswohnung für die Familie des Sohnes frei. Die Wohnung war straßenseitig erschlossen. Dazu gehörten ein paar Kellerräume, die für Vorräte und als Gästezimmer genutzt wurden und mit kleinen, zum Teil winzigen Fenstern in den Hof belichtet wurden. Eine rieisge Wäschespinne machte die Nutzbarkeit dieser kaum zugänglichen, betongepflasterten Südterrasse unmöglich.
Der neue Wohnungseingang erfolgt nun ebenerdig von der ehemaligen Kellertür über die Einfahrt und wurde vom Gemeinschaftstreppenhaus abgetrennt. Vom Windfang erreicht man das WC mit Dusche. Das Gartengeschoss wurde teilweise tiefergelegt, um für den Essbereich eine angenehme Raumhöhe zu erhalten. Großzügig verglast öffnet dieser sich nun ebenerdig zum neuen Terrassendeck mit begleitenden Sitzstufen und direktem Gartenzugang. Die Küche hat aus statischen- und Kostengründen das alte, niedrige Raumprofil behalten jedoch Durchbrüche zum Essbereich und zum Garten bekommen. Eine neue interne Treppe verbindet die beiden Geschosse. Im Erdgeschoss sind ohne größere Veränderungen drei Schlafzimmer und das Wohnzimmer untergebracht. Aus einem Teil des Flures, dem Mini-WC und dem Schlauchbad wurde ein familientaugliches, geräumiges Tageslicht-Badezimmer mit ebenerdiger Dusche und Badewanne.
Alte Dielenböden wurden freigelegt, abgeschliffen und an Schadstellen ergänzt. Teilweise kräftige Farbakzente steigern die Wirkung der geschmackvollen jungen und alten Möbel. Die alte Garage – für heutige Autos völlig unterdimensioniert – wurde als Gäste- und Arbeitsrefugium mit einer Fenstertür zur Terrasse neu erschlossen.
So entstand verhältnismäßig günstig ein Einfamilienhaus im Mehrfamilienhaus, das den speziellen Reiz der Lage voll ausnutzt indem es Haus und Garten zu einer Einheit verschmelzt.
Projektdaten
Adresse
Meineckestraße 14
99092 Erfurt OT Brühlervorstadt
Planungsbüro
dma deckertmesterarchitekten Partnerschaft mbB BDA, Erfurt
Bauherr
privat
Fertigstellung
Mai 2015
Preise/Auszeichnungen
Anerkennung "Das Goldene Haus 2016"
An dieser Stelle wird eine Google-Maps-Karte angezeigt, wenn Sie das Speichern der entsprechenden Cookies erlaubt haben. Dies können Sie über die Privatsphäre-Einstellungen jederzeit tun.
Zugeordnete Schlagworte und Sammlungen
Weitere Projekte des gleichen Büros (22)
-
Musterzimmer auf Schloss Wiehe
Roßleben-Wiehe
Buttstädter Straße 10, 06571 Roßleben-Wiehe OT Wiehe
dma deckertmesterarchitekten Partnerschaft mbB BDA, Erfurt
Fachhochschule Erfurt, Fakultät Architektur und Stadtplanung, Erfurt
-
HANSI
Erfurt
Hans-Sailer-Straße 17, 99089 Erfurt OT Ilversgehoven
dma deckertmesterarchitekten Partnerschaft mbB BDA, Erfurt
-
Umbau HeHe
Erfurt
Im Hahnegarten 13, 99092 Erfurt
dma deckertmesterarchitekten Partnerschaft mbB BDA, Erfurt
-
Adele Chalet
Lenzerheide
Fadail 46, 7078 Lenzerheide
dma deckertmesterarchitekten Partnerschaft mbB BDA, Erfurt
-
Bahnhofsparkhaus Rottenburg
Rottenburg am Neckar
Schadenweilerstraße, 11, 72108 Rottenburg am Neckar
dma deckertmesterarchitekten Partnerschaft mbB BDA, Erfurt
-
Mut zur Lücke Wittenberg
Lutherstadt Wittenberg
Collegienstraße, 06886 Lutherstadt Wittenberg
dma deckertmesterarchitekten Partnerschaft mbB BDA, Erfurt
-
Puschkinpark
Lutherstadt Wittenberg
Puschkinstraße, 8, 06886 Lutherstadt Wittenberg
dma deckertmesterarchitekten Partnerschaft mbB BDA, Erfurt
WLA Wengemuth Landschaftsarchitektur, Erfurt
-
Gartenstadt mit System
Erfurt
Tallinner Straße, 99091 Erfurt
dma deckertmesterarchitekten Partnerschaft mbB BDA, Erfurt
-
Mehrwertplatte Ossietzky Hof
Nordhausen
Carl-Ossietzky-Straße,5, 99734 Nordhausen
dma deckertmesterarchitekten Partnerschaft mbB BDA, Erfurt
WLA Wengemuth Landschaftsarchitektur, Erfurt
-
Stadthaus „Haus zur Rose“
Erfurt
Pergamentergasse 2, 99084 Erfurt
dma deckertmesterarchitekten Partnerschaft mbB BDA, Erfurt
-
industrieanlage in soest
warstein
gewerbegebiet am kalkofen , 59581 warstein OT allagen
dma deckertmesterarchitekten Partnerschaft mbB BDA, Erfurt
-
Haus zum Eichhorn
Erfurt
Pergamentergasse 4, 99084 Erfurt OT Andreasviertel
dma deckertmesterarchitekten Partnerschaft mbB BDA, Erfurt
-
Bahnhofsareal Rottenburg am Neckar
Rottenburg am Neckar
Rottenburg am Neckar
dma deckertmesterarchitekten Partnerschaft mbB BDA, Erfurt
-
Kilianihöfe
Erfurt
Erfurt OT Gispersleben
dma deckertmesterarchitekten Partnerschaft mbB BDA, Erfurt
-
Wohnhaus H6
Erfurt
Barbarossahof 13, 99092 Erfurt
dma deckertmesterarchitekten Partnerschaft mbB BDA, Erfurt
-
neubau zentraler busbahnhof jena
Jena
Am Volksbad 1-2, 07743 Jena OT Jena
dma deckertmesterarchitekten Partnerschaft mbB BDA, Erfurt
-
kantine behördenzentrum chemnitz
chemnitz
brückenstraße 12, 09111 chemnitz
dma deckertmesterarchitekten Partnerschaft mbB BDA, Erfurt
-
straßenmeisterei
Thermalbad Wiesenbad
annaberger straße 53, 09488 Thermalbad Wiesenbad OT Schönfeld
dma deckertmesterarchitekten Partnerschaft mbB BDA, Erfurt
-
wohnhaus d
erfurt
weisse gasse 36, erfurt
dma deckertmesterarchitekten Partnerschaft mbB BDA, Erfurt
-
ferienhaus b
bad saarow
am kleinen glubigsee, bad saarow
dma deckertmesterarchitekten Partnerschaft mbB BDA, Erfurt
Letzte Aktualisierung dieser Seite am: 08.09.2016. Alle Angaben auf dieser Seite werden durch das Büro dma deckertmesterarchitekten Partnerschaft mbB BDA, Erfurt auf freiwilliger Basis verwaltet. Das Büro ist für den Inhalt dieser Seite selbst verantwortlich. Die Angaben werden von der Architektenkammer Thüringen nicht geprüft.