Haus Drei Gleichen (KfW 70) · Drei Gleichen
10 Projektbilder
-
Ansicht Süd, Bild: Sebastian Großkopf -
Erdgeschoss, Bild: Sebastian Großkopf -
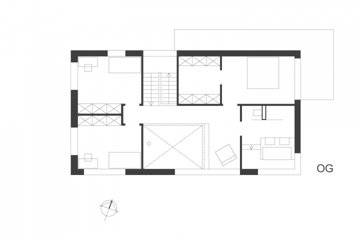
Obergeschoss, Bild: Sebastian Großkopf -
Erker, Bild: Sebastian Großkopf -
Detail Fassade, Bild: Sebastian Großkopf -
Essplatz, Bild: Sebastian Großkopf -
Kamin, Bild: Sebastian Großkopf -
Treppe, Bild: Sebastian Großkopf -
Galerie, Bild: Sebastian Großkopf -
Bad, Bild: Sebastian Großkopf
Projektbeschreibung
Am Ortsrand von Wechmar mit freier Sicht auf das Burgensemble der Drei Gleichen liegt das Einfamilienhaus Elflein. Auf dem schmalen Grundstück konnte nur ein länglicher Baukörper errichtet werden. Um trotzdem einen großzügigen Raumeindruck zu erzielen, wurde der Grundriss mittig im Bereich von Essplatz und Kamin in alle Richtungen aufgeweitet: nach Süden durch einen Erker mit Sitzbank, nach Norden durch einen verglasten Windfang mit einer dekorativen Holztreppe und nach oben über einen Luftraum, dessen langgezogenes Fensterband am Austritt der Treppe das Panorama auf die Drei Gleichen freigibt. Dieses zentrale Entwurfsthema findet sich auch in der Badgestaltung wieder. Wanne und Waschbecken wurden nicht an den Wänden platziert, sondern bilden mit einem gemeinsamen Unterbau für Stauraum eine Insel, sodass über eine Eckverglasung der Blick zu den mittelalterlichen Burgen gelenkt wird.
Projektdaten
Adresse
Lange Straße 46
99869 Drei Gleichen OT Wechmar
Planungsbüro
Bauherr
Felix Elflein
Fertigstellung
Januar 2020
Nutzfläche
152 m2
An dieser Stelle wird eine Google-Maps-Karte angezeigt, wenn Sie das Speichern der entsprechenden Cookies erlaubt haben. Dies können Sie über die Privatsphäre-Einstellungen jederzeit tun.
Zugeordnete Schlagworte und Sammlungen
Weitere Projekte des gleichen Büros (11)
-
Loftwohnen in der Altstadt (KfW 55)
Gotha
Siebleber Straße 27, 99867 Gotha
Tag der Architektur 2026
Sonntag, 28.06.2026 – geöffnet 10:00-16:00
-
-
-
-
Letzte Aktualisierung dieser Seite am: 15.05.2023. Alle Angaben auf dieser Seite werden durch das Büro grosskopf architekten, Gotha auf freiwilliger Basis verwaltet. Das Büro ist für den Inhalt dieser Seite selbst verantwortlich. Die Angaben werden von der Architektenkammer Thüringen nicht geprüft.