Logo der Architektenkammer Thüringen

Institut Psychologie der FSU Jena

sabine walther architektin, Jena

Projektbeschreibung

Das Institutsgebäude für Psychologie der Universität Jena befindet sich im nördlichen Teil der Innenstadt in unmittelbarer Nähe der Straße des 17. Juni stadtauswärts Richtung Weimar. Das dortige Landgrafengebiet gilt als Campus- und Naherholungsgebiet, welches durch die zahlreichen Villen besonders an Wert gewinnt.

Das neu entstandene mehrgeschossige Gebäude wird vom Lehrstuhl Biologische und Klinische Psychologie als Ambulanz für Lehr- und Forschungszwecke genutzt. Es soll durch seine kompakte Bauweise und innere funktionelle Organisation den Villencharakter zeitgemäß interpretieren und sich in die umgebende Bebauung einfügen, deren historische Bauweise sich in der für Jena typischen leichteren Konstruktion der Obergeschosse und dem massiven sichtbaren Sockelbereich darstellt.

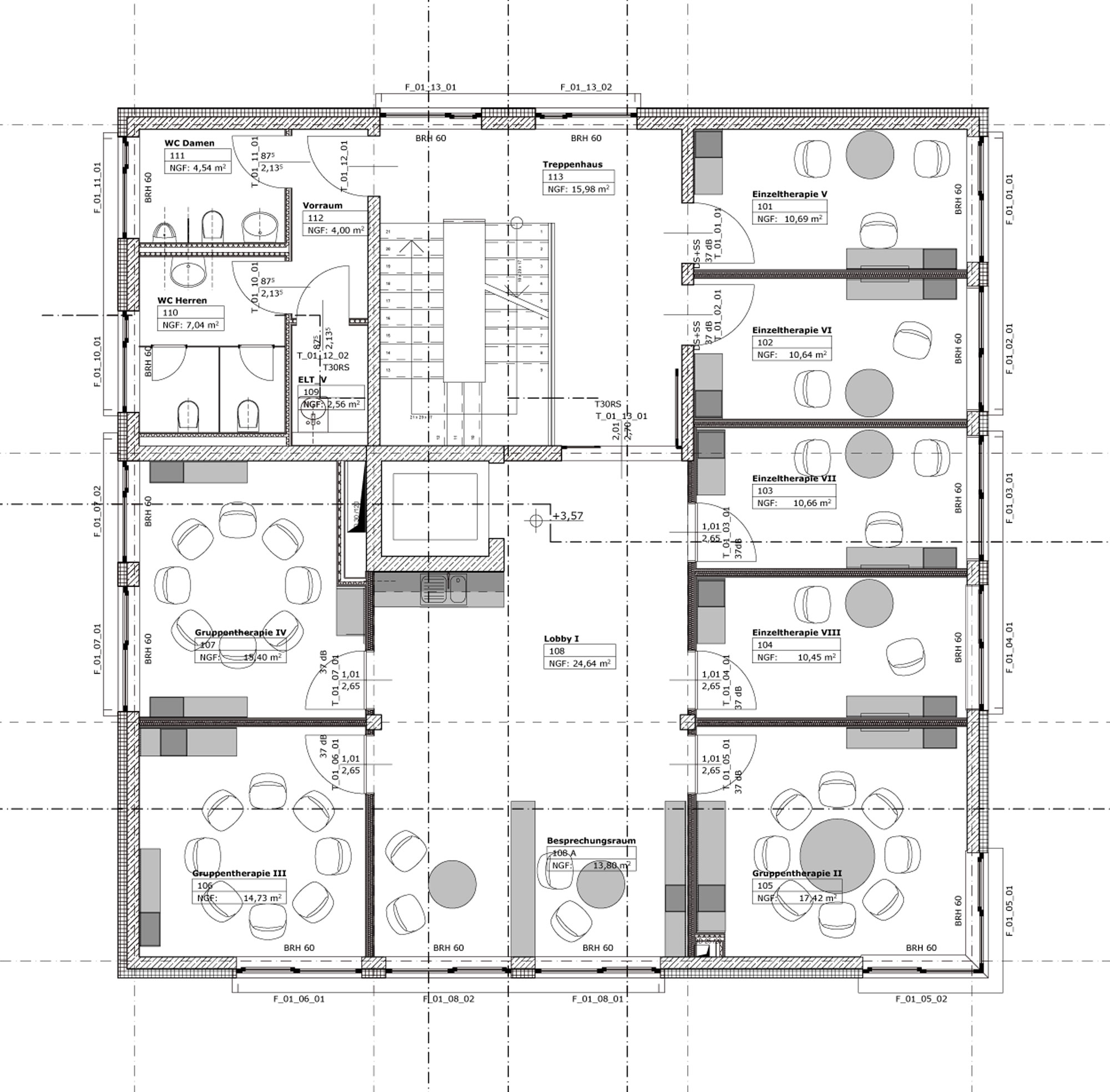
Durch das optisch und haptisch abgesetzte Erdgeschoss wird die funktionelle Trennung hervorgehoben. Im Erdgeschoss findet das Hauptgeschehen mit Cafeteria und Seminarräumen statt. Die Sockelabsetzung des Erdgeschosses wird durch den Wechsel von Glaselementen und Fassadenplatten rhythmisch gestaltet und vermittelt Offenheit zur Umgebung. In den beiden oberen Etagen und zum Teil im Untergeschoss befinden sich die Therapieräume. Diese sehr ruhige Funktion spiegelt sich in einer Lochfassade wieder. Um die einkehrende Funktion und Intimität der Räume in den Obergeschossen in die Fassade zu transferieren, kommen Fenster mit einer starken Zarge zum Einsatz, die sowohl Sonnenschutz als auch Sichtschutz gewähren. Trotzdem wird dem Besucher durch die Großformatigkeit der Fenster, die jeweils die gesamte Innenfront eines Therapieraums einnehmen, ein direkter Bezug und freier Blick nach außen gewährt. Die Fassade erhält ihre Spannung durch die Anordnung dieser „Boxenfenster“.

Der frei stehende Baukörper strahlt durch seine Farbigkeit und gleichmäßige Gestaltung der vier Fassaden eine gewisse Ruhe aus.
Da das Wohlgefühl der Nutzer speziell in der Psychologie eine große Rolle spielt, ist die innere Struktur nicht im „Flur-Mittelgang-Prinzip“ angelegt, sondern mit einer großzügigen Diele, die eine wohnliche Atmosphäre im Sinne des alten Villenbaus erzeugt. Der zentrale Raum auf jeder Etage wird zum Treffpunkt.

Projektdaten

Adresse

Am Johannisfriedhof 3
07743 Jena

Planungsbüros

sabine walther architektin, Jena
stock landschaftsarchitekten, Jena

Bauherr

Friedrich-Schiller-Universität Jena

Fertigstellung

Dezember 2011

Nutzfläche

490 m2

Preise/Auszeichnungen

Fassadenpreis Jena 2011

An dieser Stelle wird eine Google-Maps-Karte angezeigt, wenn Sie das Speichern der entsprechenden Cookies erlaubt haben. Dies können Sie über die Privatsphäre-Einstellungen jederzeit tun.

Letzte Aktualisierung dieser Seite am: 23.04.2012. Alle Angaben auf dieser Seite werden durch das Büro sabine walther architektin, Jena auf freiwilliger Basis verwaltet. Das Büro ist für den Inhalt dieser Seite selbst verantwortlich. Die Angaben werden von der Architektenkammer Thüringen nicht geprüft.

Seite teilen: