Kiosk der Moderne · Weimar
Gestalterkollektiv BASIS LEIPZIG Heiland Pfeifer GbR, Leipzig
9 Projektbilder
-
Kiosk mit Info-Desk und Infoscreen „Plakate“ sowie Flyerfach, Bild: Markus Postrach und Christian Rothe -
Kiosk mit Info- und rollstuhlgerechtem Desk / Inf, Bild: Markus Postrach und Christian Rothe -
Kiosk mit Catering- und rollstuhlgerechtem Desk / Infoscreen „Termine“, darunter Flyerfach, Bild: Markus Postrach und Christian Rothe -
Kiosk mit heruntergefahrener Haube und hochgeklappten Schürzen als PKW-Anhänger, Bild: Christian Pfeifer -
Konzeptidee, Bild: Christian Pfeifer -
Funktionen, Bild: Christian Pfeifer -
Funktion & Konstruktion, Bild: Christian Pfeifer -
Grundriss, Bild: Christian Pfeifer -
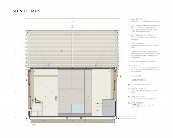
Schnitt, Bild: Christian Pfeifer
Projektbeschreibung
Anlässlich des Bauhausjahres 2019 wurde das Vermittlungskonzept "Weimarer Moderne" entwickelt, um auf die Vielfalt der
Moderne in Weimar aufmerksam zu machen. Die Klassik Stiftung Weimar lobte hierzu einen Wettbewerb für einen Kiosk vor dem neuen Bauhaus Museums aus. Er sollte zudem transportabel sein, um ihn auch anderswo aufbauen zu können. Das Konzept ist das mobile: Mit abgesenkter Haube ist der Kiosk am Stück als PKW-Anhänger mobil. Bei gehobener Haube entfaltet er seine Signalwirkung und ist damit Sichtbarmachung des Konzeptes: Besucher erhalten hier Informationen und Eintrittskarten rund um die Weimarer Moderne aber auch Snacks und Getränke. Er ist damit ein vielseitiger und zentraler Anlaufpunkt nicht nur vor dem neuen Bauhaus Museum in Weimar.
Die Besonderheit des Kiosks ist seine Mobilität. Mit gesenkter Haube, hochgeklappten Schürzen und montierter Deichsel, ist er Anhänger mit TÜV. Hier liegt die Besonderheit: Er muss dem Baurecht und der Straßenverkehrszulassungsordnung (StVZO) entsprechen. Baurechtlich muss er genehmigungsfrei sein, damit eine Standgenehmigung genügt. Somit muss alles auf 10m2 Grundfläche und nach StVZO max. 2,55m Breite untergebracht werden. Um die baurechtliche Höhe von 5m auszureizen und nach StVZO unter 4m zu bleiben, muss die Haube absenkbar sein. Solche Anhänger wurden bisher nur von zwei Unternehmen in Deutschland gebaut. Und nicht zuletzt sollte er einfach mit PKW transportiert werden können, wodurch 3,5t nicht überschritten werden dürfen, die er knapp ausreizt.
Projektdaten
Adresse
Stéphane-Hessel-Platz 1
99432 Weimar
Planungsbüro
Gestalterkollektiv BASIS LEIPZIG Heiland Pfeifer GbR, Leipzig
Bauherr
Stadt Weimar / Stellvertreterin Klassik Stiftung Weimar (Durchführung, Koordination)
Fertigstellung
Juli 2019
Nutzfläche
10 m2
An dieser Stelle wird eine Google-Maps-Karte angezeigt, wenn Sie das Speichern der entsprechenden Cookies erlaubt haben. Dies können Sie über die Privatsphäre-Einstellungen jederzeit tun.
Zugeordnete Schlagworte und Sammlungen
Letzte Aktualisierung dieser Seite am: 01.02.2021. Alle Angaben auf dieser Seite werden durch das Büro Gestalterkollektiv BASIS LEIPZIG Heiland Pfeifer GbR, Leipzig auf freiwilliger Basis verwaltet. Das Büro ist für den Inhalt dieser Seite selbst verantwortlich. Die Angaben werden von der Architektenkammer Thüringen nicht geprüft.