Landzentrum Sundhausen
Pasel-K Architects PartGmbB, Berlin
11 Projektbilder
-
Landzentrum Sundhausen, Eingang Gesundheitskiosk, Bild: Prof. Ralf Pasel -
Landzentrum Sundhausen Außenansicht, Bild: Christoph Große -
Landzentrum Sundhausen, Detail Putz, Bild: Christoph Große -
Landzentrum Sundhausen, Bauhüttenprozess Vogelperspektive, Bild: Thomas Müller -
Landzentrum Sundhausen, Bauhütte Vogelperspektive, Bild: Thomas Müller -
Landzentrum Sundhausen, Inneraum Bürgermeisterei, Bild: Christoph Große -
Landzentrum Sundhausen, Inneraum Dorfkümmerei 2, Bild: Christoph Große -
Innenraum „Dorfkümmerei“, Bild: Christoph Große -
Landzentrum Sundhausen, Schnitt BB, Bild: Nick Fries -
Landzentrum Sundhausen, Schnitt AA, Bild: Nick Fries -
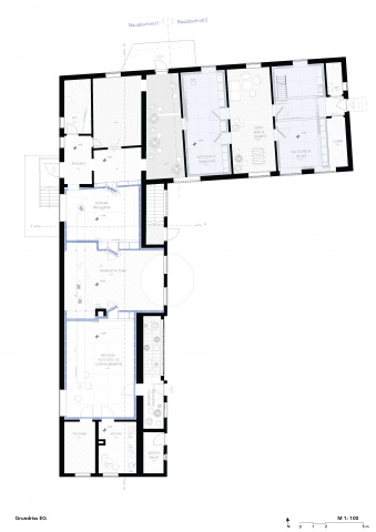
Landzentrum Sundhausen, Grundriss EG, Bild: Nick Fries
Projektbeschreibung
Zur Entwicklung der neuen sozialen Gesundheitsinfrastruktur und als Impuls für einen Aufbruch in die Zukunft wird der leerstehende Konsum in Sundhausen zu einem Landzentrum umgebaut. Der Umbauprozess erfolgt sukzessive als Bauhütte, durch Studierende der TU Berlin, im weiteren Verlauf auch weiteren Hoch- und Berufsschulen. Ziel des Bauhütten-Prozesses ist es, alle am Bau beteiligten Akteur:innen durch Runde-Tisch-Gespräche und Workshops einzubinden und die Bauhütte als ein Format des Austauschs und Diskurses zu begreifen, in dem interdisziplinär und gewerkübergreifend agiert werden kann. Das Landzentrum ist zusammen mit den Gesundheitskiosken (Kirchheilingen und Urleben) Teil eines Gesamtkonzepts zur Vernetzung und Stärkung der ländlichen Region Thüringens.
Projektdaten
Adresse
Anger 74
99947 Sundhausen
Planungsbüros
Pasel-K Architects PartGmbB, Berlin
TU Berlin, Fakultät VI - Planen Bauen Umwelt, FG Entwerfen und Baukonstruktion (CODE), Berlin
Bauherr
Landengel e.V.
Fertigstellung
Oktober 2022
Nutzfläche
200 m2
An dieser Stelle wird eine Google-Maps-Karte angezeigt, wenn Sie das Speichern der entsprechenden Cookies erlaubt haben. Dies können Sie über die Privatsphäre-Einstellungen jederzeit tun.
Zugeordnete Schlagworte und Sammlungen
Letzte Aktualisierung dieser Seite am: 16.05.2023. Alle Angaben auf dieser Seite werden durch das Büro Pasel-K Architects PartGmbB, Berlin auf freiwilliger Basis verwaltet. Das Büro ist für den Inhalt dieser Seite selbst verantwortlich. Die Angaben werden von der Architektenkammer Thüringen nicht geprüft.