Logo der Architektenkammer Thüringen

Landzentrum Sundhausen

Pasel-K Architects PartGmbB, Berlin

Projektbeschreibung

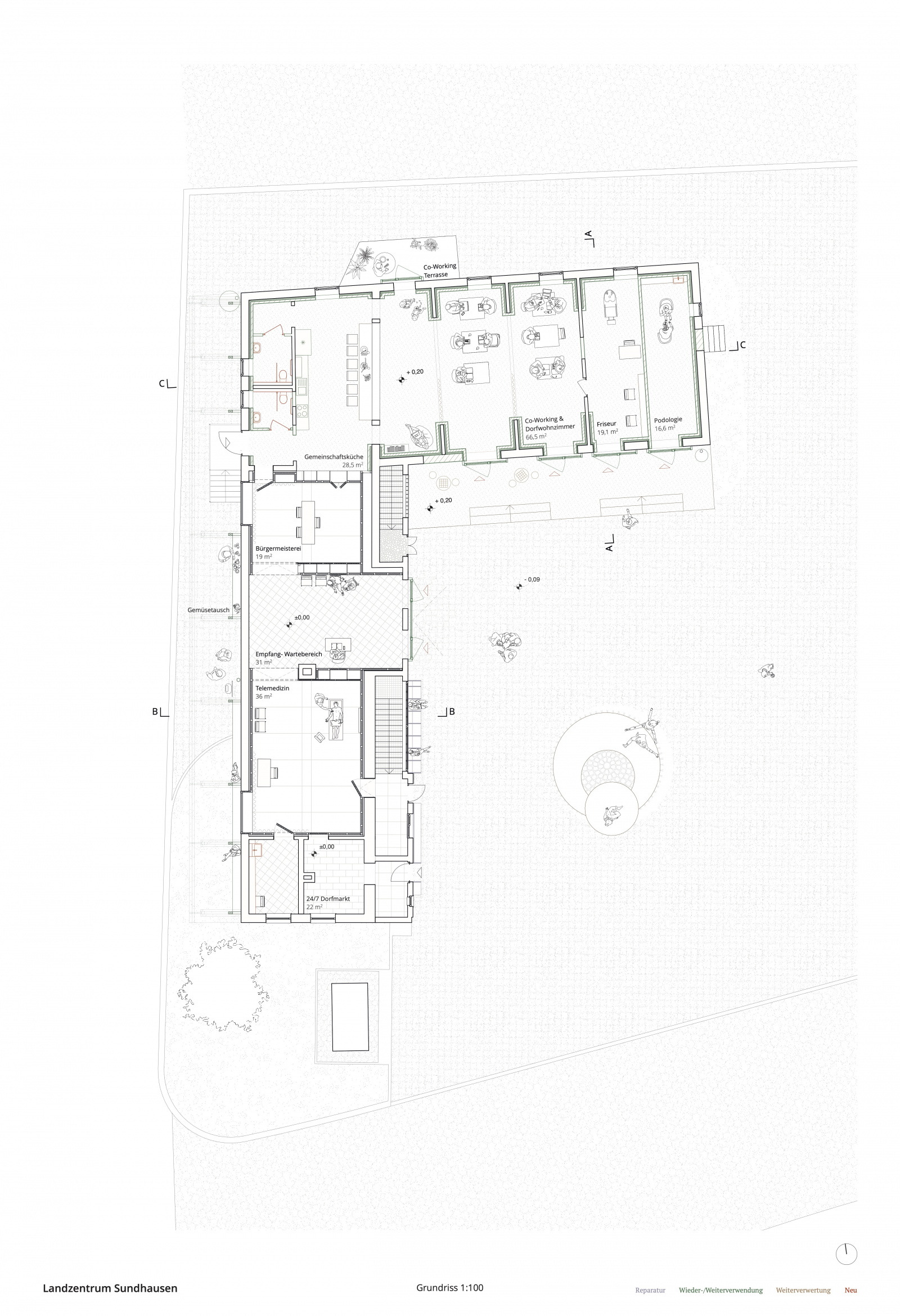
Weiterbauen! Das Landzentrum Sundhausen, entwickelt im Rahmen der IBA Thüringen, reagiert in einem schrittweisen Entwicklungskonzept auf Herausforderungen ländlicher Räume wie demografischen Wandel, Leerstand und den Rückzug sozialer Infrastruktur. Ein leerstehender DDR-Dorfkonsum am Dorfanger wurde minimalinvasiv zu einem multifunktionalen Gemeinwesenort umgebaut. Ein modulares „Haus-in-Haus“-System aus Holzeinbauten ergänzt den Bestand – sensibel und nachhaltig. Der Umbau erfolgte in Design-Build-Bauhütten gemeinsam mit Studierenden der TU Berlin, Handwerksauszubildenden und Dorfbewohner:innen. Im Zuge des letzten, abschließenden Zyklus, wurden nun die Busshaltestelle, Behandlungsräume zur telemedizinischen Versorgung und die barrierefreie Erschließung vom Dorfanger ergänzt.

Projektdaten

Adresse

Anger 74
99947 Sundhausen

Planungsbüro

Pasel-K Architects PartGmbB, Berlin

Fertigstellung

März 2026

Nutzfläche

200 m2

An dieser Stelle wird eine Google-Maps-Karte angezeigt, wenn Sie das Speichern der entsprechenden Cookies erlaubt haben. Dies können Sie über die Privatsphäre-Einstellungen jederzeit tun.

Zugeordnete Schlagworte und Sammlungen

Letzte Aktualisierung dieser Seite am: 31.03.2026. Alle Angaben auf dieser Seite werden durch das Büro Pasel-K Architects PartGmbB, Berlin auf freiwilliger Basis verwaltet. Das Büro ist für den Inhalt dieser Seite selbst verantwortlich. Die Angaben werden von der Architektenkammer Thüringen nicht geprüft.

Seite teilen: