Mehrfamilienhaus am Hagentor · Nordhausen
6 Projektbilder
Projektbeschreibung
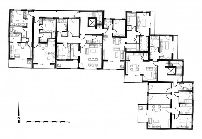
Eine Narbe im Gesicht der Nordhäuser Innenstadt wurde 2020 mit der Errichtung des Mehrfamilienhauses „Am Hagentor“ geschlossen. Jahrelang bot sich lediglich der Anblick einer tiefen Baugrube, eines Betongerippes mit rostendem Stahl, den Resten eines gescheiterten Versuchs, nach der Wende ein Hotel auf der ehemaligen Brauerei zu errichten.
Im Zuge eines Investorenwettbewerbes konnten Architektin und Investor die Stadt von ihrem Konzept überzeugen. Der L-förmige Entwurf schloss die Straßenecke, die tiefe Baugrube wurde mit zwei Parkebenen gefüllt. Durch deren Begrünung entstand eine lebenswerte und ruhige Atmosphäre im Innenhof. Im 5-geschossigen Gebäude entstanden 27 moderne und barrierefreie Wohneinheiten und eine Gewerbeeinheit mit Außenflächen und Blick in die Nordhäuser Promenade.
Projektdaten
Adresse
Vor dem Hagentor 7
99734 Nordhausen
Planungsbüro
NSA - Nadine Stevens Architektur, Nordhausen
Bauherr
Feuerland Immobilien GmbH
Fertigstellung
September 2020
Nutzfläche
2200 m2
An dieser Stelle wird eine Google-Maps-Karte angezeigt, wenn Sie das Speichern der entsprechenden Cookies erlaubt haben. Dies können Sie über die Privatsphäre-Einstellungen jederzeit tun.
Zugeordnete Schlagworte und Sammlungen
Weiteres Projekt des gleichen Büros
-
Terrassenhaus am See
Nordhausen
Feuerland 12, 99734 Nordhausen
NSA - Nadine Stevens Architektur, Nordhausen
Letzte Aktualisierung dieser Seite am: 19.05.2021. Alle Angaben auf dieser Seite werden durch das Büro NSA - Nadine Stevens Architektur, Nordhausen auf freiwilliger Basis verwaltet. Das Büro ist für den Inhalt dieser Seite selbst verantwortlich. Die Angaben werden von der Architektenkammer Thüringen nicht geprüft.