Mehrzweckhalle Mellingen
5 Projektbilder
Projektbeschreibung
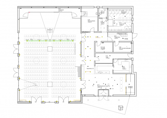
Die Gemeinde Mellingen errichtete eine Mehrzweckhalle für Messen, Treffen und Tagungen. Sie kann auch für private Veranstaltungen gemietet werden. Das Gebäude umfasst einen Saal mit Bühne und 400 Sitzplätzen (250 Plätzen an Tischen), welcher mit einer mobilen Trennwand geteilt werden kann und ein zweigeschossiges Funktionsgebäude mit Foyer, Bar, Küche, Garderobe, zwei Probenräumen und den Technikbereichen.
Der Saal wird mit einer sichtbaren Holzkonstruktion überspannt und Lüftungskanäle sowie Akustikbekleidungen integriert. Durch eine gut gedämmte Hülle und Lüftungsanlagen mit Wärmerückgewinnung kann ein sparsamer Energieverbrauch gewährleistet werden.
Die angrenzenden Freianlagen erweitern die Nutzungsmöglichkeiten in den Sommermonaten.
Projektdaten
Adresse
Hirtentorstraße 3
99441 Mellingen OT Mellingen
Planungsbüro
Ulrike Ludewig Freie Architektin, Weimar
Bauherr
Gemeinde Mellingen
Fertigstellung
Mai 2022
Nutzfläche
690 m2
An dieser Stelle wird eine Google-Maps-Karte angezeigt, wenn Sie das Speichern der entsprechenden Cookies erlaubt haben. Dies können Sie über die Privatsphäre-Einstellungen jederzeit tun.
Zugeordnete Schlagworte und Sammlungen
Weitere Projekte des gleichen Büros (2)
-
Wohnanlage Am Schießhaus 29-35 , 6 Wohnungen
Weimar
Am Schießhaus 35, 99425 Weimar
Ulrike Ludewig Freie Architektin, Weimar
-
Malzdarre Mellingen
Mellingen
An der Malzdarre 1, 99441 Mellingen
Ulrike Ludewig Freie Architektin, Weimar
Letzte Aktualisierung dieser Seite am: 15.05.2023. Alle Angaben auf dieser Seite werden durch das Büro Ulrike Ludewig Freie Architektin, Weimar auf freiwilliger Basis verwaltet. Das Büro ist für den Inhalt dieser Seite selbst verantwortlich. Die Angaben werden von der Architektenkammer Thüringen nicht geprüft.