Neubau Campus Blink AG · Jena
5 Projektbilder
Projektbeschreibung
Marktplatz für Wissenstransfer - aus Liebe zum Leben!
Die Blink AG kam 2018 mit der Idee für einen Neubau für ihre neue Plattform für In-vitro-Diagnostik auf uns zu.
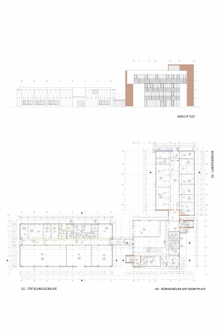
Die Planungsaufgabe bestand darin, den Firmencampus zu entwerfen, der Büro-, Labor- + Fertigungsgebäude inkl. entsprechenden Gebäudespezifikationen realisiert und die unterschiedlichen Funktionen geschickt zentral bündelt.
So entstand die Idee des „Marktplatzes“ als Herz des Campus.
Der Marktplatz befindet sich im zentralen Bürogebäude als Kommunikationsort und verknüpft die Gebäudeteile und Arbeitsbereiche. Hier findet der Wissenstransfer statt. Laborgebäude und Fertigung gliedern sich dem Marktplatz an und ergeben eine Gesamtfläche von 5.264 m².
Hier wird diagnostische Zukunft erfunden, aus Liebe zum Leben!
Projektdaten
Adresse
Brüsseler Straße 20
07747 Jena
Planungsbüro
Architekturbüro für Industrie- und Hochbau CML, Weimar
Bauherr
Blink AG
Fertigstellung
Juni 2021
Nutzfläche
3680 m2
An dieser Stelle wird eine Google-Maps-Karte angezeigt, wenn Sie das Speichern der entsprechenden Cookies erlaubt haben. Dies können Sie über die Privatsphäre-Einstellungen jederzeit tun.
Zugeordnete Schlagworte und Sammlungen
Weitere Projekte des gleichen Büros (10)
-
Neubau Hauptsitz DEWB AG, Jena
Jena
Lutherstraße, Jena
Architekturbüro für Industrie- und Hochbau CML, Weimar
-
Neubau Campus ZMD, Dresden
Dresden
Grenzstraße, Dresden
Architekturbüro für Industrie- und Hochbau CML, Weimar
-
clondiag GmbH, Jena
Jena
Loebstedter Str. 103-105, Jena
Architekturbüro für Industrie- und Hochbau CML, Weimar
-
Wohnhäuser am Schillerplatz, Dresden
Dresden
Schillerplatz, Dresden
Architekturbüro für Industrie- und Hochbau CML, Weimar
-
Sanierung Kreuzkirche Weimar
Weimar
Shakespeare Straße, Weimar
Architekturbüro für Industrie- und Hochbau CML, Weimar
-
MPD GmbH, Dresden
Dresden
Grenzstrasse 22, Dresden
Architekturbüro für Industrie- und Hochbau CML, Weimar
-
ROBA Corrugated GmbH, Zorbau
Zorbau
Hallesche Straße 37, Zorbau
Architekturbüro für Industrie- und Hochbau CML, Weimar
-
TWB Presswerk, Artern
Artern
Rudolf-Breitscheid-Str. 16, Artern
Architekturbüro für Industrie- und Hochbau CML, Weimar
Letzte Aktualisierung dieser Seite am: 21.05.2024. Alle Angaben auf dieser Seite werden durch das Büro Architekturbüro für Industrie- und Hochbau CML, Weimar auf freiwilliger Basis verwaltet. Das Büro ist für den Inhalt dieser Seite selbst verantwortlich. Die Angaben werden von der Architektenkammer Thüringen nicht geprüft.