Parktoilette im Park an der Ilm · Weimar
8 Projektbilder
-
Parktoilette im Park an der Ilm, Bild: Max Wasserkampf -
Parktoilette im Park an der Ilm, Bild: Max Wasserkampf -
Parktoilette im Park an der Ilm, Bild: Max Wasserkampf -
Parktoilette im Park an der Ilm, Bild: Max Wasserkampf -
Parktoilette im Park an der Ilm, Bild: Max Wasserkampf -
Parktoilette im Park an der Ilm, Bild: Max Wasserkampf -
Parktoilette im Park an der Ilm, Bild: Max Wasserkampf -
Parktoilette im Park an der Ilm, Bild: Max Wasserkampf
Projektbeschreibung
Stadtmobiliar
Parktoilette im Park an der Ilm, Weimar
Blickt man in der Geschichte unserer Städte – und damit auch Parks – zurück, stellt man fest, dass sogenanntes Stadtmobiliar früher einen viel höheren Stellenwert hatte, als das heute der Fall ist. Dem Stadtmobiliar wird heute formal keine Bedeutung mehr zugewiesen, die oft anthrazitfarbene Lackierung soll die Dinge im öffentlichen Raum unsichtbar werden lassen. Bänke, Papierkörbe, Telefonzellen und eben auch sogenannte Bedürfnisanstalten wurden – früher viel mehr als heute – als Mobiliar des öffentlichen Raums gelesen und auch gestaltet. Der gestalterische Umgang mit diesen Gegenständen war viel reflektierter als heute. Dinge des öffentlichen Lebens wurden gestaltet, um über deren architektonischen Ausdruck auch zu einer Art Markenbildung für die jeweiligen Städte zu kommen. Man kann dies auch heute noch in europäischen Städten beobachten; als Beispiel sei Wien genannt.
Das Mobiliar der Stadt bildet den unterbewusst wahrgenommenen Hintergrund oder, besser, die Kulisse des davor stattfindenden öffentlichen Lebens.
Die Parktoilette im Park an der Ilm unternimmt den Versuch, den Ort "Öffentliche Toilette" zu mehr als einem industriell gefertigten Zweckbau zu machen. Bedient wurde sich an historischen Vorbildern und ihren Fügungen, die in eine angemessene, zeitgenössische Sprache übersetzt sind.
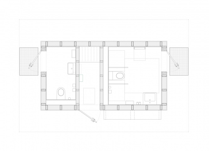
Räumliche Setzung und Freiraum
Das WC ist parallel zu den Parkwegen gesetzt; erschlossen wird es von den Stirnseiten. Die Lage der Zugänge verhindert von den Parkwegen aus direkte Einblicke in die Sanitärräume, ermöglicht also ein diskretes Betreten der Einrichtung. Der dienende Raum, zur Aufbewahrung von Putzutensilien und etwaiger Technik erfolgt vom Weg aus über eine Tapetentür.
Baukonzeption
Der Baukörper besitzt eine klassische Gliederung in Sockel, Schaft und Dachfläche. Diese Elemente sind nicht nur Gestaltungsmittel, sondern dienen sich auch gegenseitig. Der umlaufend betonierte Sockel schütz die Fassadenhaut vor Spritzwasser. Im Innenraum ermöglicht ein Fliesenspiegel von 1,20m Höhe eine uneingeschränkte Reinigung. Das Traggerüst wurde in Holzständerbauweise geplant. Als aussteifende Elemente und Gesicht des Gebäudes kommen farbig behandelte Massivholz Dreischichtplatten zum Einsatz, Innen sind diese naturbelassen. Die Fügung der Fassadenteile erfolgt durch lackierte Stahlprofile. Das Schraubbild wird somit nicht versteckt, sondern betont durch seine feine Ausformulierung die Gliederung der Fassade. Die Knotenpunkte sind eine Reminiszenz an die ehemaligen Fügungsdetails von Wiener Bedürfnisanstalten. Das Dach, welches mit 95cm Überstand die Fassade sowie den Besucher vor Nässe schützt, wurde mit zwei großen Brettschichtholzplatten ausgeführt. Seine Gestalt erhält dieses durch eine Stehfalzdeckung aus Kupfer.
Die Gestaltung der Parktoilette ging bis zur besonderen Ausbildung der Wasserspeier und Signaletik, die eigens hierfür entworfen wurde.
Projektdaten
Adresse
Belvederer Allee
99425 Weimar
Planungsbüro
Naumann Wasserkampf Architekten PartGmbB, Weimar
Bauherr
Klassik Stiftung Weimar
Fertigstellung
Mai 2022
Nutzfläche
15 m2
An dieser Stelle wird eine Google-Maps-Karte angezeigt, wenn Sie das Speichern der entsprechenden Cookies erlaubt haben. Dies können Sie über die Privatsphäre-Einstellungen jederzeit tun.
Zugeordnete Schlagworte und Sammlungen
Weiteres Projekt des gleichen Büros
-
Sanierung und Umbau Parktoilette Schlosspark Tiefurt
Weimar
Schlosspark Tiefurt, 99425 Weimar
Naumann Wasserkampf Architekten PartGmbB, Weimar
Letzte Aktualisierung dieser Seite am: 25.09.2025. Alle Angaben auf dieser Seite werden durch das Büro Naumann Wasserkampf Architekten PartGmbB, Weimar auf freiwilliger Basis verwaltet. Das Büro ist für den Inhalt dieser Seite selbst verantwortlich. Die Angaben werden von der Architektenkammer Thüringen nicht geprüft.