Popup Refugium - „Gästebox“ | Kollaborative Arbeitsräume im ehem. Pfarrhaus Neuroda · Arnstadt
9 Projektbilder
Projektbeschreibung
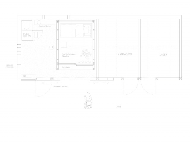
Das Popup Refugium wurde im Rahmen der Sanierung des ehem. Pfarrhaus ergänzend zu den dort entstehenden Kollaborativen Arbeitsräumen errichtet. Ziel war es, mit minimalem Eingriff eine eigene Übernachtungsmöglichkeit für Gäste zu schaffen. Um vorhandene Ressourcen des Denkmalensembles zu beleben, wurde ein Bereich in einem Nebengebäude als Ort für das Refugium ausgewählt. Die simple Holzbox - in Holzrahmenbau, in dem original belassenem Bestandsvolumen errichtet, ist das neue Zimmer für den Gast. Das minimalistische Retreat hat eine Glasfront mit Schiebetür. Im offenem Bereich um die „Gästebox“ befindet sich die schlichte Infrastruktur, ein Trenn-WC, ein Waschplatz mit Kanister und Schüssel und eine Elektrokochplatte. Der Blick auf den idyllischen Innenhof und Kirchturm ist obligatorisch.
Projektdaten
Adresse
Neuroda-Ilmenauer Straße 22
99310 Arnstadt OT Neuroda
Planungsbüro
Anja Beck, freie Architektin, Arnstadt
Bauherr
Familie Beck
Fertigstellung
September 2022
Nutzfläche
7 m2
An dieser Stelle wird eine Google-Maps-Karte angezeigt, wenn Sie das Speichern der entsprechenden Cookies erlaubt haben. Dies können Sie über die Privatsphäre-Einstellungen jederzeit tun.
Zugeordnete Schlagworte und Sammlungen
Weitere Projekte des gleichen Büros (3)
-
„E25a Holzhaus Apolda“ - Neubau barrierearmes Massivholzhaus
Apolda
Erfurter Straße 25a, 99510 Apolda
Anja Beck, freie Architektin, Arnstadt
stock landschaftsarchitekten bdla, JenaTag der Architektur 2026
Sonntag, 28.06.2026 – geöffnet 13:30-18:00, Führungen nach Bedarf, Kaffee und Kuchen mit der Modul(b)ar
-
"Recycelte Tradition" - Schutzhütte für den Imkerverein | Lehrbienenstand Ichtershausen
Amt Wachsenburg
Fasanengarten, 99334 Amt Wachsenburg OT Ichtershausen
Anja Beck, freie Architektin, und Lina Maria Mentrup, freie Architektin
-
„Horst“ - Willkommensorte im Land der Tausend Teiche
Dreba
Ortsstraße - Ortsmitte, 07806 Dreba
Anja Beck, freie Architektin, Arnstadt
Lina Mentrup, freie Architektin, Kahla
Letzte Aktualisierung dieser Seite am: 05.03.2024. Alle Angaben auf dieser Seite werden durch das Büro Anja Beck, freie Architektin, Arnstadt auf freiwilliger Basis verwaltet. Das Büro ist für den Inhalt dieser Seite selbst verantwortlich. Die Angaben werden von der Architektenkammer Thüringen nicht geprüft.