Logo der Architektenkammer Thüringen

"Birkenpark" in Mühlhausen

Städtische Wohnungsgesellschaft mbH Mühlhausen, Mühlhausen

Projektbeschreibung

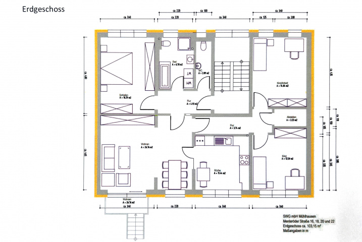
In Mühlhausen setzt die Städtische Wohnungsgesellschaft mit dem Birkenpark neue Maßstäbe in der Wohnraumgestaltung. Durch eine kreative Transformation alter Plattenbauten schaffte die SWG ein Wohnensemble, das Nachhaltigkeit und Gemeinschaftsgefühl gekonnt miteinander verbindet. Aus den ursprünglichen Wohnblöcken entstanden zwölf einladende Familienwohnungen. Mit einer durchschnittlichen Wohnfläche von rund 100 Quadratmetern
bieten die Wohnungen ausreichend Raum für ein komfortables Familienleben. Der Entwurf für die Revitalisierung des Birkenpark wurde von der SWG Mühlhausen selbst entwickelt. Das Projekt zeigt eindrucksvoll, wie mit visionärem Denken und einem starken Fokus auf Nachhaltigkeit ein lebendiges Wohnviertel entstehen kann.

Projektdaten

Adresse

Menteröder Straße 16-30
99974 Mühlhausen

Planungsbüro

Städtische Wohnungsgesellschaft mbH Mühlhausen, Mühlhausen

Bauherr

Städtische Wohnungsgesellschaft Mühlhausen/Thür.

Fertigstellung

Dezember 2023

Nutzfläche

1255 m2

An dieser Stelle wird eine Google-Maps-Karte angezeigt, wenn Sie das Speichern der entsprechenden Cookies erlaubt haben. Dies können Sie über die Privatsphäre-Einstellungen jederzeit tun.

Letzte Aktualisierung dieser Seite am: 15.05.2025. Alle Angaben auf dieser Seite werden durch das Büro Städtische Wohnungsgesellschaft mbH Mühlhausen, Mühlhausen auf freiwilliger Basis verwaltet. Das Büro ist für den Inhalt dieser Seite selbst verantwortlich. Die Angaben werden von der Architektenkammer Thüringen nicht geprüft.

Seite teilen: