Sanierung Regelschule Stadtroda "Auf der Schönen Aussicht" · Stadtroda
Bau-Consult Hermsdorf Gesellschaft beratender Ingenieure GmbH, Hermsdorf
9 Projektbilder
-
Hauptzugang, Bild: Michael Kutz -
Ansicht behindertengerechter Zugang, Bild: Michael Kutz -
Eingangshalle, Bild: Michael Kutz -
Treppenhaus Fachtrakt, Bild: Michael Kutz -
Fachkabinett, Bild: Michael Kutz -
Fachkabinett Chemie, Bild: Michael Kutz -
Werkraum, Bild: Michael Kutz -
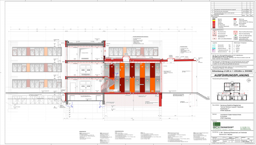
Querschnitt Eingangshalle, Bild: Michael Kutz -
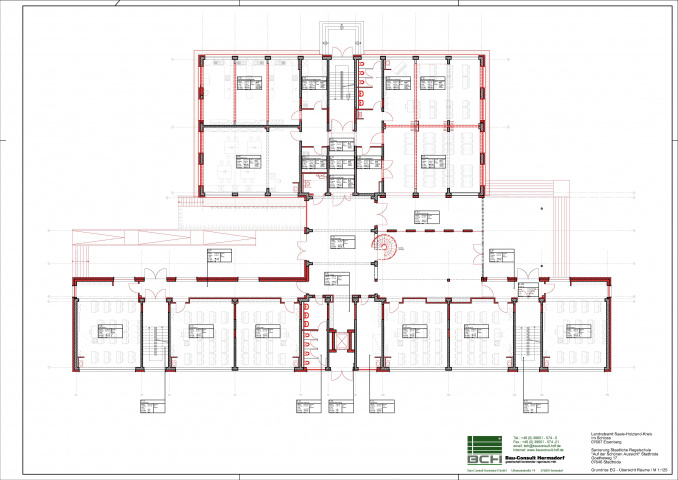
Gesamtgrundriss Erdgeschoss, Bild: Michael Kutz
Projektbeschreibung
Im Jahr 2010 wurde an der Regelschule Stadtroda mit einer grundhaften Sanierung begonnen. Das gesamte Vorhaben wurde in drei Bauabschnitten bis zum Jahr 2017 realisiert.
Das Bestandsgebäude, ein Fertigteilbau aus dem Jahr 1981 war insgesamt in einem stark sanierungswürdigem Zustand. Sämtliche Oberflächen, Strukturen, sowie technische Anlagen waren verschlissen; die Gebäudehülle erfüllte bei weitem nicht die notwendigen energetischen Standards; die Eingliederung behinderter Menschen war durch die Gebäudebeschaffenheit kaum möglich. Schließlich konnte auch hinsichtlich Gebäudeorganisation und Raumbeschaffenheit kein zeitgemäßer Unterricht mehr stattfinden. Durch die Sanierung konnten all diese Belange ausgeräumt werden. Die Schule bietet jetzt Schülern und Lehrern wieder eine zeitgemäße moderne Lernumgebung.
Projektdaten
Adresse
Goetheweg 17
07646 Stadtroda
Planungsbüros
Bau-Consult Hermsdorf Gesellschaft beratender Ingenieure GmbH, Hermsdorf
Fischer Planungsgesellschaft Weimar mbH, Weimar
RoosGrün, Weimar
Bauherr
Landratsamt Saale-Holzland-Kreis
Fertigstellung
Februar 2017
Nutzfläche
1830 m2
An dieser Stelle wird eine Google-Maps-Karte angezeigt, wenn Sie das Speichern der entsprechenden Cookies erlaubt haben. Dies können Sie über die Privatsphäre-Einstellungen jederzeit tun.
Zugeordnete Schlagworte und Sammlungen
Letzte Aktualisierung dieser Seite am: 07.03.2019. Alle Angaben auf dieser Seite werden durch das Büro Bau-Consult Hermsdorf Gesellschaft beratender Ingenieure GmbH, Hermsdorf auf freiwilliger Basis verwaltet. Das Büro ist für den Inhalt dieser Seite selbst verantwortlich. Die Angaben werden von der Architektenkammer Thüringen nicht geprüft.