Logo der Architektenkammer Thüringen

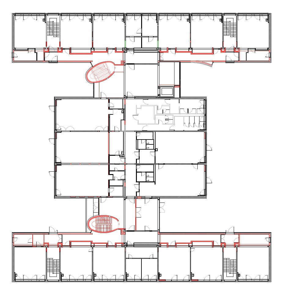
Sanierung und Erweiterung Schulzentrum Jena-Lobeda West · Jena

gildehaus.reich architekten BDA, Weimar

Projektdaten

Adresse

Karl-Marx-Allee 11
07747 Jena OT Lobeda-West

Planungsbüros

gildehaus.reich architekten BDA, Weimar
RoosGrün PLANUNG, Kromsdorf

Bauherr

KIJ - Kommunale Immobilien Jena

Fertigstellung

September 2010

Nutzfläche

5536 m2

An dieser Stelle wird eine Google-Maps-Karte angezeigt, wenn Sie das Speichern der entsprechenden Cookies erlaubt haben. Dies können Sie über die Privatsphäre-Einstellungen jederzeit tun.

Letzte Aktualisierung dieser Seite am: 02.09.2014. Alle Angaben auf dieser Seite werden durch das Büro gildehaus.reich architekten BDA, Weimar auf freiwilliger Basis verwaltet. Das Büro ist für den Inhalt dieser Seite selbst verantwortlich. Die Angaben werden von der Architektenkammer Thüringen nicht geprüft.

Seite teilen: