Sanierung und Umbau von Sport- und Freianlagen der Regelschule Ellrich, 1. BA · Ellrich
9 Projektbilder
-
Sportanlage, Bild: Karsten Götze -
Schulhof, Bild: Karsten Götze -
Laufbahn, Bild: Karsten Götze -
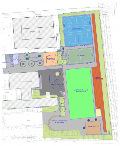
Lageplan, Bild: Karsten Götze -
Laufbahnen, Bild: Karsten Götze -
Amphitheater, Bild: Karsten Götze -
Amphitheater, Bild: Karsten Götze -
Schulhof mit Skateranlage, Bild: Karsten Götze -
Boulderwand, Bild: Karsten Götze
Projektbeschreibung
Das Projekt umfasst die Sanierung bzw. Neuerrichtung von Sport- und Freianlagen auf dem Gelände der Regelschule in der Hospitalstraße 36 in 99755 Ellrich. Neben Flächen in gepflasterter Bauweise werden die neuen Sportflächen unter Anderem mit Kunststoff-, Kunstrasen- und Tennenbelag versehen.
Das Vorhaben beinhaltet weiterhin Abdichtungsarbeiten sowie die Anbringung eines WDVS im Sockelbereich des Schulgebäudes.
Projektdaten
Adresse
Hospitalstraße 36
99755 Ellrich OT Ellrich
Planungsbüros
G Ö T Z E, Nordhausen
Casparius Architekten & Ingenieure, Erfurt
Bauherr
Service Gesellschaft des Landkreises Nordhausen mbH
Fertigstellung
März 2019
An dieser Stelle wird eine Google-Maps-Karte angezeigt, wenn Sie das Speichern der entsprechenden Cookies erlaubt haben. Dies können Sie über die Privatsphäre-Einstellungen jederzeit tun.
Zugeordnete Schlagworte und Sammlungen
Weitere Projekte des gleichen Büros (3)
-
Wasserverband Nordhausen, Modernisierung und Umbau Betriebshof
Nordhausen
Hallesche Straße 132, 99734 Nordhausen OT Nordhausen
G Ö T Z E, Nordhausen
Architektur Contor Wienrich GmbH, Nordhausen -
Wohn- und Geschäftshaus Stolberger Straße 34 Nordhausen
Nordhausen
Stolberger Straße 34, 99734 Nordhausen
-
Letzte Aktualisierung dieser Seite am: 02.05.2019. Alle Angaben auf dieser Seite werden durch das Büro G Ö T Z E, Nordhausen auf freiwilliger Basis verwaltet. Das Büro ist für den Inhalt dieser Seite selbst verantwortlich. Die Angaben werden von der Architektenkammer Thüringen nicht geprüft.