Logo der Architektenkammer Thüringen

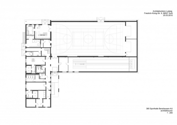
Sport- und Mehrzweckhalle mit Kegelbahn Benshausen

Architekturbüro Ludwig Dipl.-Ing. Steffen Ludwig, Suhl

Projektbeschreibung

Objektangaben:

Objekt: Sport- und Mehrzweckhalle mit Kegelbahn
Adresse: 98554 Benshausen, Pestalozzistr.1
Bauherr: Gemeinde Benshausen
Fertigstellung: März 2010 Aussenanlagen Mai 2010


Projektbeschreibung:


Entwurfsverfasser:
Steffen Ludwig, Dipl.-Ing.(TU) Architekt (AKT-Nr.: 0141-91-1-A)
Susanne Ludwig, Dipl.-Ing.(TU) Architekt (AKT-Nr.: 0940-92-3-A)
Thomas Keil, Dipl.-Ing.(FH) Bauleitung

Beschreibung:

Die 70er-Jahre-Sporthalle befand sich noch im Originalzustand und wurde mit dem Ziel einer Mehrzwecknutzung für Sport und kulturelle Veranstaltungen mit den dafür notwendigen Standards in Bezug auf Funktion, Ausstattung, Brandschutz und Energieeffizienz saniert. Die Räume wurden funktionell neu geordnet, ein zusätzlicher Trainingsraum geschaffen und der Eingangsbereich neu gestaltet. Dazu war das Objekt komplett zu entkernen. Halle und Kegelbahn erhielten aus Brandschutzgründen ein neues Dach in Brettschichtholz-Konstruktion. Der Hallenraum wurde mit Prallwänden aus Schichtholz-Beplankung und einem neuen Sportfußboden ausgestattet. Für die blendungsfreie Belichtung bis zur Hallenmitte wurden Fenster mit lichtstreuender Verglasung eingesetzt. Die energetischen und raumklimatischen Anforderungen werden zukünftig durch die umfassend ausgeführte Wärmedämmung, den Einsatz einer Wärmepumpe mit Fußbodenheizung sowie einer Lüftungsanlage gewährleistet. Das Gebäude wird geprägt durch die Vorhangfassade aus großformatigen Fassadentafeln.


Besichtigungszeit:
Sonntag 27.06.2010, 13.00-17.00 Uhr

Projektdaten

Adresse

Pestalozzistraße 1
98554 Benshausen

Planungsbüro

Architekturbüro Ludwig Dipl.-Ing. Steffen Ludwig, Suhl

Bauherr

Gemeindeverwaltung Benshausen

Fertigstellung

2010

An dieser Stelle wird eine Google-Maps-Karte angezeigt, wenn Sie das Speichern der entsprechenden Cookies erlaubt haben. Dies können Sie über die Privatsphäre-Einstellungen jederzeit tun.

Letzte Aktualisierung dieser Seite am: 11.10.2010. Alle Angaben auf dieser Seite werden durch das Büro Architekturbüro Ludwig Dipl.-Ing. Steffen Ludwig, Suhl auf freiwilliger Basis verwaltet. Das Büro ist für den Inhalt dieser Seite selbst verantwortlich. Die Angaben werden von der Architektenkammer Thüringen nicht geprüft.

Seite teilen: