Logo der Architektenkammer Thüringen

Projektbeschreibung

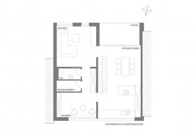
Das Gebäude wurde auf einer jahrelang brachliegenden Fläche in der Gothaer Innenstadt errichtet. Der Baukörper, der sich in seiner Grundform an der traditionellen Bebauung orientiert, wurde durch großflächige Verglasungen, das straßenseitige Fensterband und die glatten Dachziegel modern und zeitgemäß gestaltet. Das Stadthaus verbindet die Funktionen Wohnen und Arbeiten miteinander. Die Treppe ist ein zentrales Element des offenen Wohn- und Essbereiches im Obergeschoss. Durch ein großflächiges Schiebetürelement entsteht eine Verbindung zum Außenbereich der Loggia, die einen blickgeschützten Freisitz bietet und gleichzeitig den Wohnbereich verschattet. Bei der Planung des Gebäudes wurde viel Wert auf Energieeffizienz gelegt.

Projektdaten

Adresse

Schwabhäuser Str. 30
99867 Gotha

Planungsbüro

Architekturbüro Gunar Schorsch, Gotha

Bauherr

privat

Fertigstellung

März 2015

Nutzfläche

200 m2

An dieser Stelle wird eine Google-Maps-Karte angezeigt, wenn Sie das Speichern der entsprechenden Cookies erlaubt haben. Dies können Sie über die Privatsphäre-Einstellungen jederzeit tun.

Zugeordnete Schlagworte und Sammlungen

Letzte Aktualisierung dieser Seite am: 01.03.2019. Alle Angaben auf dieser Seite werden durch das Büro Architekturbüro Gunar Schorsch, Gotha auf freiwilliger Basis verwaltet. Das Büro ist für den Inhalt dieser Seite selbst verantwortlich. Die Angaben werden von der Architektenkammer Thüringen nicht geprüft.

Seite teilen: