Stadtvillen am Bielstein - Meiningen
Trautwein Partner Architekten und Ingenieure PartG mbB, Erfurt
16 Projektbilder
-
Ansicht Straße Am Bielstein, Bild: Nicole Heusing -
Zugang Haus A, Bild: Nicole Heusing -
Fassade Haus A, Bild: Nicole Heusing -
Kunst am Bau - Haus A, Bild: Nicole Heusing -
Lageplan, Bild: Andreas Grigat -
Sicht auf Haus B, Bild: Nicole Heusing -
Detail Balkone, Bild: Nicole Heusing -
Detail Haus A, Bild: Nicole Heusing -
Ensemble Stadtvillen, Bild: Nicole Heusing -
Eingangssituation, Bild: Nicole Heusing -
Treppenhaus, Bild: Nicole Heusing -
Kunst am Bau - Haus C, Bild: Nicole Heusing -
Schwarzplan, Bild: Andreas Grigat -
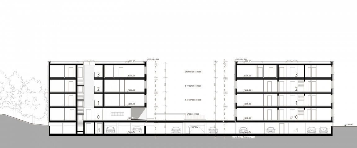
Schnitt, Bild: Andreas Grigat -
Rendering 1, Bild: Andreas Grigat -
Rendering 2, Bild: Andreas Grigat
Projektbeschreibung
„Am Bielstein“ in Meinigen ist ein Ensemble dreier Stadtvillen entstanden, welche sensibel als bebaute „Inseln“ am Hang eingebettet wurden. Aufgrund der Lage im Überschwemmungsgebiet reagiert die Planung mit einer Aufständerung der Baukörper und einer Öffnung der Tiefgarage. In jedem Haus wurden 16 – 17 Wohneinheiten verteilt auf 4 Geschosse realisiert, wobei der Wohnungsmix eine große Zielgruppe anspricht. Qualitätsmerkmale sind der barrierearme Zugang zu jeder Wohnung und das breite Angebot an Aufenthaltsflächen. Außerdem wurde die Neubebauung als KFW Effizienzhaus 40 Plus realisiert. Ein Highlight sind die großformatigen Kunstinstallationen im Inneren. Diese sind in Zusammenarbeit mit einer Meininger Künstlerin zu den Themen Musik, Theater und Literatur entstanden.
Projektdaten
Adresse
Am Bielstein 2a-c
98617 Meiningen
Planungsbüro
Trautwein Partner Architekten und Ingenieure PartG mbB, Erfurt
Bauherr
VR-Bank Main- Rhön eG
Fertigstellung
März 2023
Nutzfläche
5.232 m2
An dieser Stelle wird eine Google-Maps-Karte angezeigt, wenn Sie das Speichern der entsprechenden Cookies erlaubt haben. Dies können Sie über die Privatsphäre-Einstellungen jederzeit tun.
Zugeordnete Schlagworte und Sammlungen
Weitere Projekte des gleichen Büros (4)
Letzte Aktualisierung dieser Seite am: 14.03.2023. Alle Angaben auf dieser Seite werden durch das Büro Trautwein Partner Architekten und Ingenieure PartG mbB, Erfurt auf freiwilliger Basis verwaltet. Das Büro ist für den Inhalt dieser Seite selbst verantwortlich. Die Angaben werden von der Architektenkammer Thüringen nicht geprüft.