temporäre Klassenzimmer aus Strohballen · Weimar
8 Projektbilder
-
Fensternische in typischer Strohballenoptik mit recycelten Fenstern, Bild: Alexandra Schenker-Primus -
Sillhouette im Streiflicht, Bild: Alexandra Schenker-Primus -
Strohbau im unverputzten Zustand. Blick zum Eingang, Bild: Alexandra Schenker-Primus -
Strohbau im unverputzten Zustand. Blick von Südost, Bild: Alexandra Schenker-Primus -
Ansicht von Süden, Bild: Alexandra Schenker-Primus -
Ansicht von Südwesten, Bild: Alexandra Schenker-Primus -
Blick aus Südwest, Bild: Alexandra Schenker-Primus -
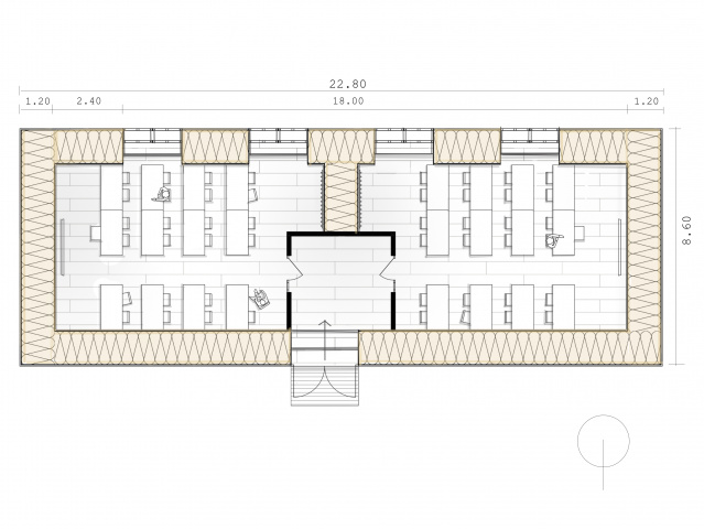
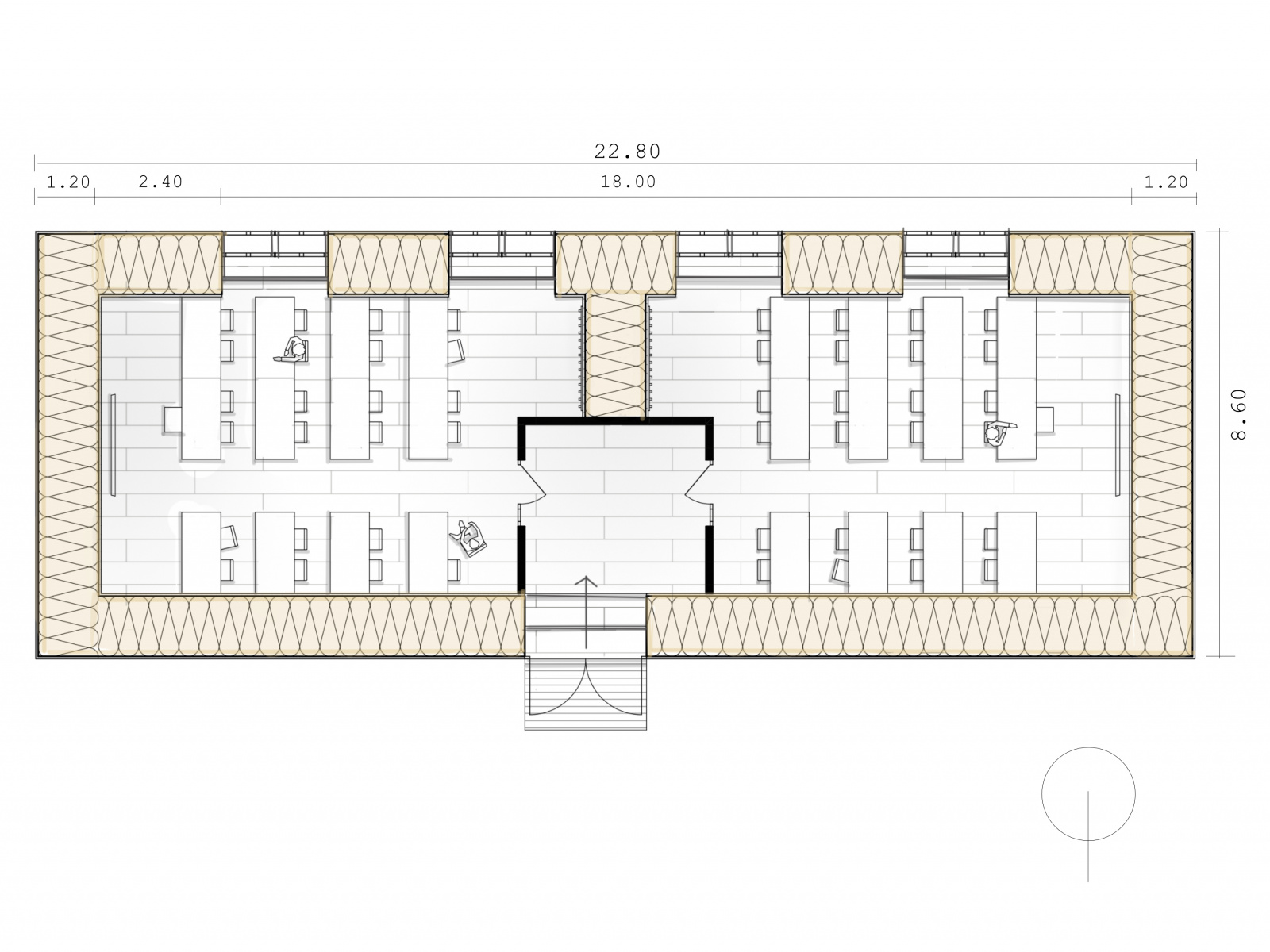
Grundriss, Bild: Alexandra Schenker-Primus
Projektbeschreibung
Im Zuge der Sanierungs- und Umbaumaßnahmen am Landgut Holzdorf der Diakonie wurde zur Sicherstellung des laufenden Bildungsbetriebs ein temporäres Gebäude errichtet, das Klassenzimmer für die Erwachsenenbildung beherbergt. Anstelle eines herkömmlichen Containerbaus wurde bewusst eine nachhaltige Bauweise gewählt, die sich am Prinzip der Kreislaufwirtschaft orientiert und fast vollständig aus rückführbaren oder wiederverwendbaren Materialien besteht.
Das Gebäude wurde in lasttragender Strohballenbauweise errichtet. Die gepressten Strohballen übernehmen dabei nicht nur die Funktion der Wärmedämmung, sondern auch die statische Lastabtragung. Die Wände wurden innen wie außen mit Lehmputz versehen, was unter anderem für ein angenehmes Raumklima sorgt. Als Dacheindeckung kamen recycelbare Metallprofile zum Einsatz, die nach der Nutzung wiederverwendet werden können.
Für Fenster und Türen wurden aufgearbeitete Elemente aus benachbartem Altbestand verwendet.
Die klare Kubatur wurde schlicht gehalten um die Einfachheit darzustellen, aber auch Zeit und Kosteneffizient zu bauen. Spilereien ergaben sich aufgrund der Materialwahl von selbst. So stehen die gewölbten Außenwände im Kotrast zu den geradlinigen Holzbauelementen wie Dach, Fenster oder Verschalung der Westseite.
Die beiden Klassenzimmer haben jeweils eine Größe von ca. 55 qm und ermöglichen ungefähr 50 Schüler*innen ihrer täglichen Ausbildung nachzugehen.
Projektdaten
Adresse
Otto-Krebs-Weg
99425 Weimar OT Holzdorf
Planungsbüro
Bauherr
Diakonie Landgut Holzdorf gGmbH
Fertigstellung
Mai 2024
Nutzfläche
113 m2
An dieser Stelle wird eine Google-Maps-Karte angezeigt, wenn Sie das Speichern der entsprechenden Cookies erlaubt haben. Dies können Sie über die Privatsphäre-Einstellungen jederzeit tun.
Zugeordnete Schlagworte und Sammlungen
Weiteres Projekt des gleichen Büros
Letzte Aktualisierung dieser Seite am: 06.05.2025. Alle Angaben auf dieser Seite werden durch das Büro Z·Architektur GbR, Weimar auf freiwilliger Basis verwaltet. Das Büro ist für den Inhalt dieser Seite selbst verantwortlich. Die Angaben werden von der Architektenkammer Thüringen nicht geprüft.