Umbau HeHe · Erfurt
9 Projektbilder
-
Straßenansicht, Bild: Joachim Deckert -
küche, Bild: Joachim Deckert -
Essplatz mit Terrasse, Bild: Joachim Deckert -
garten, Bild: Joachim Deckert -
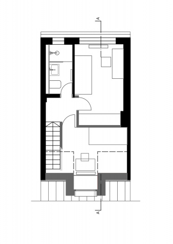
Grundriss EG, Bild: Joachim Deckert -
Grundriss OG, Bild: Joachim Deckert -
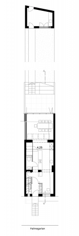
Grundriss DG, Bild: Joachim Deckert -
Schnitt, Bild: Joachim Deckert -
Ansichten, Bild: Joachim Deckert
Projektbeschreibung
Eine Bombenlücke wurde nach dem 2. Weltkrieg mit einem Reihenhaus gefüllt. Dieses wurde über die Jahre in Eigenbau erweitert und stand zur Sanierung an. Die Breite des Hauses von lediglich 4m Achsmaß stellte eine Herausforderung dar.
Das Haus wurde auf seine ursprüngliche Struktur zurückgebaut, der Wintergarten durch einen hölzernen Anbau ersetzt, das Erdegschoss in einen durchbindenden Raum mit Eingangsbereich, Küche, Essen verwandelt. Die Glasfuge belichtet die Tiefe des Raumes. Eine Schrankwand verbirgt WC und Abstellraum. Die Terrasse mit Sitzstufen erweitert den Essplatz im Sommer. In den Obergeschossen: Wohn- und Schlafräume sowie Bäder. Eine neue Gaube macht das Dachgeschoss nutzbar und bietet Ausblick über die Stadt. Das Hahnentrittmuster auf der Fassade persifliert den Standort.
Projektdaten
Adresse
Im Hahnegarten 13
99092 Erfurt
Planungsbüro
dma deckertmesterarchitekten Partnerschaft mbB BDA, Erfurt
Bauherr
privat
Fertigstellung
November 2022
Nutzfläche
110 m2
An dieser Stelle wird eine Google-Maps-Karte angezeigt, wenn Sie das Speichern der entsprechenden Cookies erlaubt haben. Dies können Sie über die Privatsphäre-Einstellungen jederzeit tun.
Zugeordnete Schlagworte und Sammlungen
Weitere Projekte des gleichen Büros (22)
-
Musterzimmer auf Schloss Wiehe
Roßleben-Wiehe
Buttstädter Straße 10, 06571 Roßleben-Wiehe OT Wiehe
dma deckertmesterarchitekten Partnerschaft mbB BDA, Erfurt
Fachhochschule Erfurt, Fakultät Architektur und Stadtplanung, Erfurt -
HANSI
Erfurt
Hans-Sailer-Straße 17, 99089 Erfurt OT Ilversgehoven
dma deckertmesterarchitekten Partnerschaft mbB BDA, Erfurt
-
Adele Chalet
Lenzerheide
Fadail 46, 7078 Lenzerheide
dma deckertmesterarchitekten Partnerschaft mbB BDA, Erfurt
-
Bahnhofsparkhaus Rottenburg
Rottenburg am Neckar
Schadenweilerstraße, 11, 72108 Rottenburg am Neckar
dma deckertmesterarchitekten Partnerschaft mbB BDA, Erfurt
-
Mut zur Lücke Wittenberg
Lutherstadt Wittenberg
Collegienstraße, 06886 Lutherstadt Wittenberg
dma deckertmesterarchitekten Partnerschaft mbB BDA, Erfurt
-
Puschkinpark
Lutherstadt Wittenberg
Puschkinstraße, 8, 06886 Lutherstadt Wittenberg
dma deckertmesterarchitekten Partnerschaft mbB BDA, Erfurt
WLA Wengemuth Landschaftsarchitektur, Erfurt -
Gartenstadt mit System
Erfurt
Tallinner Straße, 99091 Erfurt
dma deckertmesterarchitekten Partnerschaft mbB BDA, Erfurt
-
Mehrwertplatte Ossietzky Hof
Nordhausen
Carl-Ossietzky-Straße,5, 99734 Nordhausen
dma deckertmesterarchitekten Partnerschaft mbB BDA, Erfurt
WLA Wengemuth Landschaftsarchitektur, Erfurt -
Stadthaus „Haus zur Rose“
Erfurt
Pergamentergasse 2, 99084 Erfurt
dma deckertmesterarchitekten Partnerschaft mbB BDA, Erfurt
-
industrieanlage in soest
warstein
gewerbegebiet am kalkofen , 59581 warstein OT allagen
dma deckertmesterarchitekten Partnerschaft mbB BDA, Erfurt
-
haus db
Erfurt
Meineckestraße 14, 99092 Erfurt OT Brühlervorstadt
dma deckertmesterarchitekten Partnerschaft mbB BDA, Erfurt
-
Haus zum Eichhorn
Erfurt
Pergamentergasse 4, 99084 Erfurt OT Andreasviertel
dma deckertmesterarchitekten Partnerschaft mbB BDA, Erfurt
-
Bahnhofsareal Rottenburg am Neckar
Rottenburg am Neckar
Rottenburg am Neckar
dma deckertmesterarchitekten Partnerschaft mbB BDA, Erfurt
-
Kilianihöfe
Erfurt
Erfurt OT Gispersleben
dma deckertmesterarchitekten Partnerschaft mbB BDA, Erfurt
-
Wohnhaus H6
Erfurt
Barbarossahof 13, 99092 Erfurt
dma deckertmesterarchitekten Partnerschaft mbB BDA, Erfurt
-
neubau zentraler busbahnhof jena
Jena
Am Volksbad 1-2, 07743 Jena OT Jena
dma deckertmesterarchitekten Partnerschaft mbB BDA, Erfurt
-
kantine behördenzentrum chemnitz
chemnitz
brückenstraße 12, 09111 chemnitz
dma deckertmesterarchitekten Partnerschaft mbB BDA, Erfurt
-
straßenmeisterei
Thermalbad Wiesenbad
annaberger straße 53, 09488 Thermalbad Wiesenbad OT Schönfeld
dma deckertmesterarchitekten Partnerschaft mbB BDA, Erfurt
-
wohnhaus d
erfurt
weisse gasse 36, erfurt
dma deckertmesterarchitekten Partnerschaft mbB BDA, Erfurt
-
ferienhaus b
bad saarow
am kleinen glubigsee, bad saarow
dma deckertmesterarchitekten Partnerschaft mbB BDA, Erfurt
Letzte Aktualisierung dieser Seite am: 25.05.2023. Alle Angaben auf dieser Seite werden durch das Büro dma deckertmesterarchitekten Partnerschaft mbB BDA, Erfurt auf freiwilliger Basis verwaltet. Das Büro ist für den Inhalt dieser Seite selbst verantwortlich. Die Angaben werden von der Architektenkammer Thüringen nicht geprüft.