Umbau und Erweiterung Gebäude 009 Industrie- und Gewerbegebiet "Görmar-Kaserne" Mühlhausen
10 Projektbilder
-
Ansicht Nordwest, Bild: Tino Sieland Fotografie -
Eingangsfront, Bild: Tino Sieland Fotografie -
Detail Holzfassade, Bild: Tino Sieland Fotografie -
Innenraum 03, Bild: Tino Sieland Fotografie -
Innenraum 02, Bild: Tino Sieland Fotografie -
Innenraum 01, Bild: Tino Sieland Fotografie -
1713 Lageplan, Bild: Christian Burkhardt -
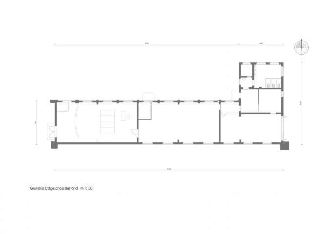
1713 Grundriss Gebäude 009 Bestand, Bild: Christian Burkhardt -
1713 Grundriss Gebäude 009, Bild: Christian Burkhardt -
1713 Schnitt Gebäude 009, Bild: Christian Burkhardt
Projektbeschreibung
Mit der Auflösung des Bundeswehrstandortes in Mühlhausen im Jahr 2014 wurde die LEG Landesentwicklungsgesellschaft mbH Eigentümer des Areals der Görmar-Kaserne. Im Auftrag des Freistaats Thüringen wird das Gelände zu einem modernen Industrie- und Verwaltungsstandort entwickelt.
Ein Teilareal des ehemaligen Kasernengeländes ist seit Herbst 2019 Firmensitz der in Mühlhausen ansässigen Firma Galek & Kowald. Das eingeschossige Gebäude, errichtet im Jahr 1948, als Unterstand für Pferde und Fuhrwerke, wurde zu einem modernen Büro- und Verwaltungsgebäude umgestaltet. Der L-förmige Bestandsbau mit Satteldach erhielt auf der Nordseite einen eingeschossigen Anbau mit Flachdach und markant ausladendem Vordach. Der Eingangsbereich wird betont durch eine geschwungene Holzverkleidung. Im Inneren des Gebäudes entstanden moderne Büros als Einzel- und Gruppenräume. Die Gestaltung ist lichtdurchströmt, offen und transparent. Charakteristisch ist der Kontrast zwischen historischem Sichtmauerwerk und neuen, leichten Konstruktionen aus Stahl und Glas. Das gesamte Gebäude erhielt eine moderne Heiz- und Kühldecke, in den Büro- und Besprechungsräumen zudem als Akustikdecke ausgebildet.
Projektdaten
Adresse
Lindenhof 8
99974 Mühlhausen
Planungsbüros
Quadraplan AIC GmbH, Mühlhausen
smart architects, Dresden
Bauherr
Landesentwicklungsgesellschaft Thüringen mbH (LEG Thüringen)
Fertigstellung
November 2019
Nutzfläche
539 m2
An dieser Stelle wird eine Google-Maps-Karte angezeigt, wenn Sie das Speichern der entsprechenden Cookies erlaubt haben. Dies können Sie über die Privatsphäre-Einstellungen jederzeit tun.
Zugeordnete Schlagworte und Sammlungen
Letzte Aktualisierung dieser Seite am: 01.03.2024. Alle Angaben auf dieser Seite werden durch das Büro Quadraplan AIC GmbH, Mühlhausen auf freiwilliger Basis verwaltet. Das Büro ist für den Inhalt dieser Seite selbst verantwortlich. Die Angaben werden von der Architektenkammer Thüringen nicht geprüft.