Umbau und Sanierung des Rathauses in Sondershausen
10 Projektbilder
-
Foyer und Bürgerbüro, Bild: Adrian Liebau -
Standesamt, Bild: Adrian Liebau -
Bürgermeister, Bild: Adrian Liebau -
Eingangsportal, Bild: Adrian Liebau -
Trausaal, Bild: Adrian Liebau -
Erschließung Hof, Bild: Adrian Liebau -
Grundriss Zwischengeschoss, Bild: Clemens Kober -
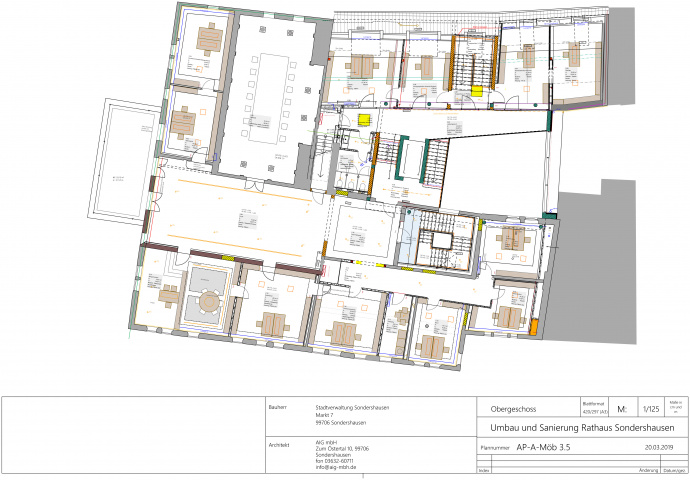
Grundriss Obergeschoss, Bild: Clemens Kober -
Grundriss Erdgeschoss, Bild: Clemens Kober -
Schnitt, Bild: Clemens Kober
Projektbeschreibung
Das Rathaus Sondershausen befindet sich an der Ostseite des Marktplatzes von Sondershausen.
Das Hauptgebäude bildet der Kopfbau des Quartiers zwischen Markt (westlich) und der einmündenden Burgstraße (nördlich) und Hauptstraße (südlich). Das Hauptgebäude ist das Ergebnis einer 700 Jahre dauernden Bautätigkeit, die im 14.Jahrhundert begann und im 19.Jahrhundert dem Gebäude seine heutige Gestalt gab. In Verlängerung des Hauptgebäudes befinden entlang der Burgstraße zwei Gebäude, die von innen mit dem Hauptgebäude verbunden sind.
Das Gebäude konnte den Anforderungen eines öffentlichen Gebäudes nicht mehr gerecht werden.
Aus diesem Grund führte die Stadt Sondershausen 2014 ein Planerauswahlverfahren durch.
Im Ergebnis wurde das Büro AIG mbH mit allen Leistungsphasen beauftragt.
Zielsetzung war es, aus den fünf Baukörpern, die aus unterschiedlichen Zeiten stammen - vom jetzigen Trausaal, dem Kernbau aus dem 14.Jahrhundert, bis hin zu den Ergänzungsbauten aus dem 16.Jahrhundert und den angrenzenden Gebäuden aus dem 19.Jahrhundert - ein zusammenhängendes und zusammengehöriges Gebäudeensemble mit zentraler Erschließung entstehen zu lassen. Diese wurde in unserem Entwurf im vorherigen Innenhof untergebracht und ermöglicht es, die vielen zueinander versetzten Ebenen über eine zentrale Treppe und einen Aufzug barrierefrei zu erschließen. Der Charakter des Hofes und seine Außenfassaden blieben dabei erhalten. Für die Erschließung wurden Laubengänge vorgesetzt.
Eine weitere wesentliche Veränderung war es, den Trausaal in seiner ursprünglicher Höhe - durch Entnahme einer Zwischendecke - wiederherzustellen und erlebbar zu machen. In dem Trausaal befindet sich die einzige noch erhaltene steinerne Musikempore in einem Thüringer Rathaus.
Der Eingangsbereich wurde durch Entnahme des Zwischengeschosses in einen großzügiges Foyer mit Bürgerbüro umgestaltet. in dem auch die alten Turmreste des Ursprungsgebäudes zu sehen sind.
Die Stadtinformation hat die früheren Räume des Ratskellers übernommen. Auch hier gibt es noch viele Bauteile des ursprünglichen Rathauses zu sehen. Unser Ziel war es, mit Materialgebung und Raumverbindungen, die unterschiedlichen Gebäude zu e i n e m Rathaus zusammen zu fügen, ohne den einzelnen Gebäuden ihren Charakter zu nehmen.
Projektdaten
Adresse
Markt 7
99706 Sondershausen
Planungsbüro
AIG Architektur- & Ingenieurgesellschaft mbH, Sondershausen
Bauherr
Stadtverwaltung Sondershausen
Fertigstellung
Juni 2022
Nutzfläche
1800 m2
An dieser Stelle wird eine Google-Maps-Karte angezeigt, wenn Sie das Speichern der entsprechenden Cookies erlaubt haben. Dies können Sie über die Privatsphäre-Einstellungen jederzeit tun.
Zugeordnete Schlagworte und Sammlungen
Weiteres Projekt des gleichen Büros
-
Neubau Gästehaus Thüringer Landesmusikakademie
Sondershausen
Lohberg 11, 99706 Sondershausen
AIG Architektur- & Ingenieurgesellschaft mbH, Sondershausen
PSL Landschaftsarchitekten Ziegenrücker. Dorlas. Partnerschaftsgesellschaft mbB, Erfurt
Letzte Aktualisierung dieser Seite am: 16.05.2023. Alle Angaben auf dieser Seite werden durch das Büro AIG Architektur- & Ingenieurgesellschaft mbH, Sondershausen auf freiwilliger Basis verwaltet. Das Büro ist für den Inhalt dieser Seite selbst verantwortlich. Die Angaben werden von der Architektenkammer Thüringen nicht geprüft.