Logo der Architektenkammer Thüringen

Umbau und Sanierung "Börse" am Wenigemarkt · Erfurt

Architekturbüro Ebersberger, Erfurt

Projektbeschreibung

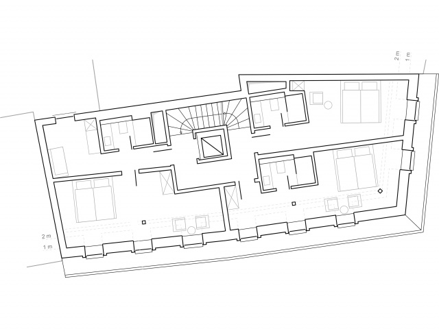
Die Sanierung des ehemaligen Gasthauses „Zur Börse“ komplettiert die südliche Flanke des Wenigemarktes im Zentrum von Erfurt und vervollständigt das Erscheinungsbild des Platzes. Japanische Gastronomie und Gästezimmer ergänzen die (kulinarische) Vielfalt vor Ort. Die Maßnahme am Bestand umfasste eine Mikropfahlgründung mit neu aufgebautem Erdgeschoss, Ertüchtigung der Holzdeckenkonstruktion und Teilaustausch des Fachwerkes, sowie einen neuen Dachstuhl. In Zusammenarbeit mit dem Amt für Denkmalschutz wurden historische Elemente aus dem 18. Jahrhundert wieder im Gebäude verortet, bzw. teilweise erhalten/ restauriert. Das entstandene Bauwerk ist eine Symbiose denkmalschutzrechtlicher Aspekte, den Anforderungen an Nutzung/ Konstruktion und ein weiteres Stück Stadtinstandsetzung in Erfurt.

Projektdaten

Adresse

Wenigemarkt 19
99084 Erfurt

Planungsbüro

Architekturbüro Ebersberger, Erfurt

Bauherr

privat

Fertigstellung

Dezember 2023

Nutzfläche

435 m2

An dieser Stelle wird eine Google-Maps-Karte angezeigt, wenn Sie das Speichern der entsprechenden Cookies erlaubt haben. Dies können Sie über die Privatsphäre-Einstellungen jederzeit tun.

Weiteres Projekt des gleichen Büros

Letzte Aktualisierung dieser Seite am: 22.04.2024. Alle Angaben auf dieser Seite werden durch das Büro Architekturbüro Ebersberger, Erfurt auf freiwilliger Basis verwaltet. Das Büro ist für den Inhalt dieser Seite selbst verantwortlich. Die Angaben werden von der Architektenkammer Thüringen nicht geprüft.

Seite teilen: