Umbau und Sanierung Schubertstraße 12 in Weimar
neu + rein ARCHITEKTEN, Erfurt
6 Projektbilder
-
Straßenfassade, Bild: Michael Miltzow, Bildwerk Fotodesign -
Gartenfassade, Bild: Michael Miltzow, Bildwerk Fotodesign -
Zimmerflucht, Bild: Michael Miltzow, Bildwerk Fotodesign -
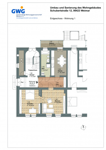
Wohnungstyp 1, Bild: Frances Schuster-Reinhöfer -
Wohnungstyp 2, Bild: Frances Schuster-Reinhöfer -
Wohnungstyp 3, Bild: Frances Schuster-Reinhöfer
Projektbeschreibung
Das 1891 errichtete Wohngebäude Schubertstraße 12 gehört zum Denkmalensemble Südwestliche Stadterweiterung Weimar. Im Rahmen von umfangreichen Umbau- und Modernisierungsmaßnahmen entstanden 5 unterschiedliche Wohnungstypen als 2- bis 7-Raum-Wohnungen, die sowohl für gemeinschaftliches als auch generationsübergreifendes Wohnen genutzt werden können. Alle Umbauten erfolgten sensibel im Umgang mit der historischen Bausubstanz. Die Raumstrukturen blieben im Wesentlichen erhalten. Feuchtschäden im Bereich der Bäder und der Westfassade wurden behoben. Die Putzfassade wurde inkl. Nachbau der vorhandenen Stuckelemente komplett erneuert.
Der Anbau einer unabhängigen zweiten Erschließungstreppe auf der Nordseite ermöglicht zukünftige Grundrissänderungen entsprechend der Bedürfnisse der Nutzer.
Projektdaten
Adresse
Schubertstraße 12
99423 Weimar
Planungsbüro
neu + rein ARCHITEKTEN, Erfurt
Bauherr
Gemeinnützige Wohnungsgenossenschaft Weimar e.G.
Fertigstellung
Oktober 2015
An dieser Stelle wird eine Google-Maps-Karte angezeigt, wenn Sie das Speichern der entsprechenden Cookies erlaubt haben. Dies können Sie über die Privatsphäre-Einstellungen jederzeit tun.
Zugeordnete Schlagworte und Sammlungen
Letzte Aktualisierung dieser Seite am: 12.05.2016. Alle Angaben auf dieser Seite werden durch das Büro neu + rein ARCHITEKTEN, Erfurt auf freiwilliger Basis verwaltet. Das Büro ist für den Inhalt dieser Seite selbst verantwortlich. Die Angaben werden von der Architektenkammer Thüringen nicht geprüft.