Wiederherstellung Scheunengebäude z. Ensemble Schloss Eichicht f. Wildverarbeitung, Hofladen und Jagdschule · Kaulsdorf
12 Projektbilder
-
Ansicht Nord/ Eingang Hofladen, Bild: Max Buchholz -
Ansicht Süd beleuchtet, Bild: Max Buchholz -
Hofladen, Bild: Max Buchholz -
Jagdschule - Schulungsraum, Bild: Max Buchholz -
Jagdschule - Schulungsraum, Bild: Max Buchholz -
Vogelperspektive, Bild: Max Buchholz -
Blick von oben, Bild: Max Buchholz -
Ensemble, Bild: Max Buchholz -
Ansicht Nord, Bild: Evelyn Senser -
Grundriss OG, Bild: Evelyn Senser -
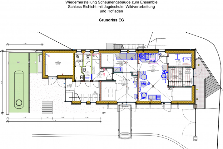
Grundriss EG, Bild: Evelyn Senser -
Ansicht Ost, Bild: Evelyn Senser
Projektbeschreibung
Angelehnt an die ursprüngliche Bebauung nach den überlieferten Planunterlagen von Bodo Ebhardt sollte unter Berücksichtigung der noch vorhandenen Mauerreste das kleine, die Auffahrt zum Schloss flankierende Scheunengebäude wieder errichtet werden.
Damit erhielt das Gebäudeensemble zusammen mit der gegenüber liegenden Bestandsscheune wieder seinen ursprünglichen Charakter. Historische Gestaltungselemente sollten in zeitgemäße Materialien und Details ‚übersetzt‘ werden.
Die klare Struktur der ursprünglichen Scheune wurde durch die Bruchsteinfassade, umlaufend als Sockelgeschoss wieder aufgenommen. Das Dachgeschoss zeigt sich in ‚optischem Fachwerk‘ mit verglasten Gefachen, um durch ausreichende Belichtung der heutigen Nutzung Rechnung zu tragen. Gleichzeitig treten die Nutzer durch die beidseitig in den Giebeln vorhandenen verglasten Gefache in Beziehung zur Region, zur umliegenden Landschaft und zum Schlossgebäude.
Ziel war es, durch den Wiederaufbau den Erhalt und die Instandhaltung des Denkmals Schloss Eichicht durch Etablierung von synergetischen Nutzungen zu sichern. Diese Maßnahme wurde im Rahmen der Förderinitiative Ländliche Entwicklung in Thüringen ELER und LEADER gefördert, da sie zur Stärkung regionaler Strukturen und des ländlichen Raums beträgt und gleichzeitig Perspektiven für Bewohner in der Region bietet.
Im Erdgeschoss befindet sich die Wildfleischerei mit -zerwirkung und –wurstproduktion sowie einem kleinen Hofladen in Kooperation, dem ‚Thüringer Wald Shop‘. Im Dachgeschoss wurde die Jagdschule mit Büro eingerichtet, wobei der Jagdschulraum auch als Raum für Trauungen durch die Gemeinde genutzt wird.
Projektdaten
Adresse
Schloßstraße 1
07338 Kaulsdorf OT Eichicht
Planungsbüro
Bauherr
Max Buchholz
Fertigstellung
Oktober 2022
Nutzfläche
290 m2
An dieser Stelle wird eine Google-Maps-Karte angezeigt, wenn Sie das Speichern der entsprechenden Cookies erlaubt haben. Dies können Sie über die Privatsphäre-Einstellungen jederzeit tun.
Zugeordnete Schlagworte und Sammlungen
Weiteres Projekt des gleichen Büros
Letzte Aktualisierung dieser Seite am: 23.05.2024. Alle Angaben auf dieser Seite werden durch das Büro Architekturbüro Senser, Gera auf freiwilliger Basis verwaltet. Das Büro ist für den Inhalt dieser Seite selbst verantwortlich. Die Angaben werden von der Architektenkammer Thüringen nicht geprüft.