Wohnhaus H6 · Erfurt
15 Projektbilder
-
Eingangsfassade von Nordwest, Bild: Rainer Mester -
Eingangsfassade von Südwest, Bild: Rainer Mester -
Eingangsbereich, Bild: Rainer Mester -
Treppen, Bild: Rainer Mester -
Kinderbad Erdgeschoss, Bild: Rainer Mester -
Bad Obergeschoss, Bild: Rainer Mester -
Kinderzimmer, Bild: Rainer Mester -
Tiefhof Untergeschoss, Bild: Rainer Mester -
Wohn- und Essetage Obergeschoss, Bild: Rainer Mester -
Dachterrasse, Bild: Rainer Mester -
Tiefhof von außen, Bild: Rainer Mester -
Ostansicht, Bild: Rainer Mester -
Grundrisse Unter- und Erdgeschoss, Bild: Rainer Mester -
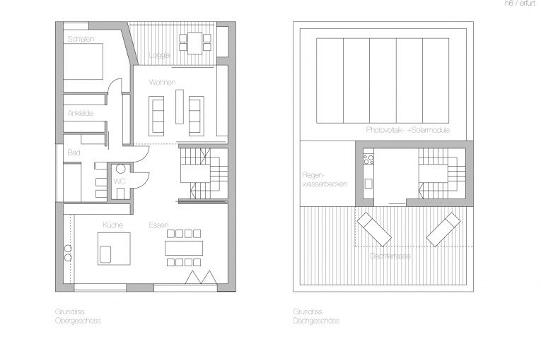
Grundrisse Ober- und Dachgeschoss, Bild: Rainer Mester -
Lageplan und Schnitt, Bild: Rainer Mester
Projektbeschreibung
Die Westflanke des einstigen Kasernengeländes wurde mit einer Reihe von Einfamilienhäusern geschlossen. Der strenge Bebauungsplan sah freistehende Einfamilienhäuser mit 3,5 m breiten Zwischenräumen vor.
Wir wählten eine der beiden zulässigen Weißtöne für die Fassade und setzten das Sockelgeschoss mit hellen Klinkern ab. Über einen Tiefhof mit Freitreppe werden die Untergeschossräume belichtet. Das Untergeschoss ist variabel nutzbar und so vorgerüstet, dass aus der „Kinderetage“ entweder eine separate Wohneinheit oder eine Wellnesszone entstehen kann.
Die durchbindende Wohnebene und der Elterntrakt sind im Obergeschoss untergebracht. Von der offenen Wohnküche öffnet sich der Blick über die Stadt. Raumhohe Faltelemente lassen sich vollflächig öffnen, der Essbereich wird dann zur Loggia. Den begehrten Domblick eröffnet die geräumige Dachterrasse, die eine Hälfte des Daches einnimmt. Das Haus erfüllt hohe Ansprüche an Energieeffizienz: es verfügt über eine Solar- und Photovoltaikanlage, eine Eisspeicherheizung und eine Regenwasserzisterne.
Projektdaten
Adresse
Barbarossahof 13
99092 Erfurt
Planungsbüro
dma deckertmesterarchitekten Partnerschaft mbB BDA, Erfurt
Bauherr
privat
Fertigstellung
September 2014
Nutzfläche
346 m2
An dieser Stelle wird eine Google-Maps-Karte angezeigt, wenn Sie das Speichern der entsprechenden Cookies erlaubt haben. Dies können Sie über die Privatsphäre-Einstellungen jederzeit tun.
Zugeordnete Schlagworte und Sammlungen
Weitere Projekte des gleichen Büros (22)
-
Musterzimmer auf Schloss Wiehe
Roßleben-Wiehe
Buttstädter Straße 10, 06571 Roßleben-Wiehe OT Wiehe
dma deckertmesterarchitekten Partnerschaft mbB BDA, Erfurt
Fachhochschule Erfurt, Fakultät Architektur und Stadtplanung, Erfurt -
HANSI
Erfurt
Hans-Sailer-Straße 17, 99089 Erfurt OT Ilversgehoven
dma deckertmesterarchitekten Partnerschaft mbB BDA, Erfurt
-
Umbau HeHe
Erfurt
Im Hahnegarten 13, 99092 Erfurt
dma deckertmesterarchitekten Partnerschaft mbB BDA, Erfurt
-
Adele Chalet
Lenzerheide
Fadail 46, 7078 Lenzerheide
dma deckertmesterarchitekten Partnerschaft mbB BDA, Erfurt
-
Bahnhofsparkhaus Rottenburg
Rottenburg am Neckar
Schadenweilerstraße, 11, 72108 Rottenburg am Neckar
dma deckertmesterarchitekten Partnerschaft mbB BDA, Erfurt
-
Mut zur Lücke Wittenberg
Lutherstadt Wittenberg
Collegienstraße, 06886 Lutherstadt Wittenberg
dma deckertmesterarchitekten Partnerschaft mbB BDA, Erfurt
-
Puschkinpark
Lutherstadt Wittenberg
Puschkinstraße, 8, 06886 Lutherstadt Wittenberg
dma deckertmesterarchitekten Partnerschaft mbB BDA, Erfurt
WLA Wengemuth Landschaftsarchitektur, Erfurt -
Gartenstadt mit System
Erfurt
Tallinner Straße, 99091 Erfurt
dma deckertmesterarchitekten Partnerschaft mbB BDA, Erfurt
-
Mehrwertplatte Ossietzky Hof
Nordhausen
Carl-Ossietzky-Straße,5, 99734 Nordhausen
dma deckertmesterarchitekten Partnerschaft mbB BDA, Erfurt
WLA Wengemuth Landschaftsarchitektur, Erfurt -
Stadthaus „Haus zur Rose“
Erfurt
Pergamentergasse 2, 99084 Erfurt
dma deckertmesterarchitekten Partnerschaft mbB BDA, Erfurt
-
industrieanlage in soest
warstein
gewerbegebiet am kalkofen , 59581 warstein OT allagen
dma deckertmesterarchitekten Partnerschaft mbB BDA, Erfurt
-
haus db
Erfurt
Meineckestraße 14, 99092 Erfurt OT Brühlervorstadt
dma deckertmesterarchitekten Partnerschaft mbB BDA, Erfurt
-
Haus zum Eichhorn
Erfurt
Pergamentergasse 4, 99084 Erfurt OT Andreasviertel
dma deckertmesterarchitekten Partnerschaft mbB BDA, Erfurt
-
Bahnhofsareal Rottenburg am Neckar
Rottenburg am Neckar
Rottenburg am Neckar
dma deckertmesterarchitekten Partnerschaft mbB BDA, Erfurt
-
Kilianihöfe
Erfurt
Erfurt OT Gispersleben
dma deckertmesterarchitekten Partnerschaft mbB BDA, Erfurt
-
neubau zentraler busbahnhof jena
Jena
Am Volksbad 1-2, 07743 Jena OT Jena
dma deckertmesterarchitekten Partnerschaft mbB BDA, Erfurt
-
kantine behördenzentrum chemnitz
chemnitz
brückenstraße 12, 09111 chemnitz
dma deckertmesterarchitekten Partnerschaft mbB BDA, Erfurt
-
straßenmeisterei
Thermalbad Wiesenbad
annaberger straße 53, 09488 Thermalbad Wiesenbad OT Schönfeld
dma deckertmesterarchitekten Partnerschaft mbB BDA, Erfurt
-
wohnhaus d
erfurt
weisse gasse 36, erfurt
dma deckertmesterarchitekten Partnerschaft mbB BDA, Erfurt
-
ferienhaus b
bad saarow
am kleinen glubigsee, bad saarow
dma deckertmesterarchitekten Partnerschaft mbB BDA, Erfurt
Letzte Aktualisierung dieser Seite am: 27.04.2015. Alle Angaben auf dieser Seite werden durch das Büro dma deckertmesterarchitekten Partnerschaft mbB BDA, Erfurt auf freiwilliger Basis verwaltet. Das Büro ist für den Inhalt dieser Seite selbst verantwortlich. Die Angaben werden von der Architektenkammer Thüringen nicht geprüft.