157 Neubau Wohnhaus mit Carport in Jena, Familie Fauth · Jena
5 Projektbilder
Projektbeschreibung
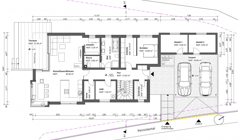
Gewünscht war ein Wohngebäude mit großzügigem Erdgeschoss mit Bad und Schlafraum für die Eltern und einem zweiten Wohngeschoss für die Kinder. Carport und Nebenräume sollten als externer Baukörper entstehen.
Nach einer 6 Monate dauernden Abstimmung mit der Stadt Jena, konnte die finale Lage auf dem Baugrundstück festgelegt werden.
Ein sehr schlechter Baugrund erfoderte eine kostspielige Baugrundverbesserung mittels Bodenaustausch.
Das Gebäude besteht aus 3 Baukörpern. Im EG findet das Wohnen statt. Weiterhin wurden hier Schlafraum und ein großes Bad untergebracht. Im OG finden 3 Schlafräume, der Gäste- und Spielbereich sowie ein kleines Bad platz.
Carport und Nebenräume wurden nördöstlich an den Hauptbaukörper angeschlossen.
Der Entwurf lehnt sich an die derzeitige moderne Architektur an, besitztFlachdächer und größige Glasfronten und bodentiefe Fenster.
Besonderes Augenmerk wurde auch vom Bauherren auf die Freiflächengestaltung gelegt. Ein Pool und viel Spielfläche für die gesamte Famile wurde geschaffen.
Projektdaten
Adresse
Pennickental 27
07749 Jena OT Wöllnitz
Planungsbüro
Timo Neumann, Architekturbüro, Niederdorla
Bauherr
Susanne und Andreas Fauth
Fertigstellung
November 2021
Nutzfläche
297 m2
An dieser Stelle wird eine Google-Maps-Karte angezeigt, wenn Sie das Speichern der entsprechenden Cookies erlaubt haben. Dies können Sie über die Privatsphäre-Einstellungen jederzeit tun.
Zugeordnete Schlagworte und Sammlungen
Weitere Projekte des gleichen Büros (2)
-
119 Wohnhaus mit 2 Büroeinheiten, Garage und Carport in Mühlhausen
Mühlhausen
Schneidemühlenweg 29, 99974 Mühlhausen
Timo Neumann, Architekturbüro, Niederdorla
-
091 Wohnhaus Liebau/Stollberg in Oberdorla
Vogtei
Im Kober 24, 99986 Vogtei OT Oberdorla
Timo Neumann, Architekturbüro, Niederdorla
egn-Architekten Dipl.-Ing. Ralf Schmidt Freier Architekt in Bürogemeinschaft, Jena
Letzte Aktualisierung dieser Seite am: 16.05.2023. Alle Angaben auf dieser Seite werden durch das Büro Timo Neumann, Architekturbüro, Niederdorla auf freiwilliger Basis verwaltet. Das Büro ist für den Inhalt dieser Seite selbst verantwortlich. Die Angaben werden von der Architektenkammer Thüringen nicht geprüft.