Einfamilienhaus R in Hohenfelden
6 Projektbilder
Projektbeschreibung
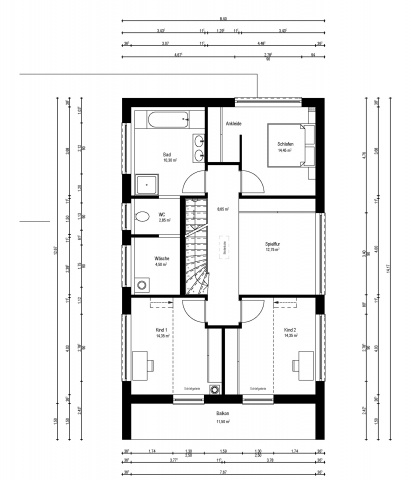
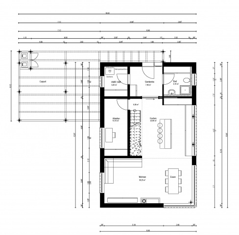
Auf dem Grundstück am Ortsrand von Hohenfelden wünschten sich die Bauherren ein zeitgemäßes Einfamilienhaus mit Carport, das sich in das bestehende Hofensemble einfügt und der reizvollen Lage sowie dem Denkmalcharakter des Ortes gerecht wird. Entstanden ist ein lang gezogener, geradliniger Baukörper, der sich nach Osten sowie Süden öffnet und Innen- und Außenraum eng miteinander verschmelzen lässt. Nicht nur vom giebelseitigen Balkon, sondern auch über die verglaste Südostecke und der zentral gelegenen offenen Küche im Erdgeschoss bieten sich vielfältige Blickbeziehungen in die freie Landschaft.
Projektdaten
Adresse
Im Dorfe 91b
99448 Hohenfelden
Planungsbüro
Bauherr
privat
Fertigstellung
Juni 2020
Nutzfläche
170 m2
An dieser Stelle wird eine Google-Maps-Karte angezeigt, wenn Sie das Speichern der entsprechenden Cookies erlaubt haben. Dies können Sie über die Privatsphäre-Einstellungen jederzeit tun.
Zugeordnete Schlagworte und Sammlungen
Weitere Projekte des gleichen Büros (6)
-
Feuerwehrgerätehaus Gutendorf
Bad Berka
Gutendorfer Str. 24, 99438 Bad Berka OT Gutendorf
Architekturbüro Sell, Erfurt
Gundula Linse freie Architektin KONTOR, ErfurtTag der Architektur 2026
Samstag, 27.06.2026 – geöffnet 10:00-16:00
-
EFH aus Holz und Lehm
Erfurt
Hauptstraße 57, 99094 Erfurt OT Möbisburg
Tag der Architektur 2026
Samstag, 27.06.2026 – geöffnet 15:00-17:00
Sonntag, 28.06.2026 – geöffnet 10:00-17:00
-
-
Letzte Aktualisierung dieser Seite am: 26.04.2022. Alle Angaben auf dieser Seite werden durch das Büro Architekturbüro Sell, Erfurt auf freiwilliger Basis verwaltet. Das Büro ist für den Inhalt dieser Seite selbst verantwortlich. Die Angaben werden von der Architektenkammer Thüringen nicht geprüft.