Feuerwehrgerätehaus Gutendorf · Bad Berka
8 Projektbilder
-
Ansicht Südwest, Bild: Arno Lieke -
Ansicht Südost, Bild: Arno Lieke -
Ansicht Nordost, Bild: Arno Lieke -
Ansicht Südwest, Bild: Arno Lieke -
Fahrzeughalle mit Dachstuhlkonstruktion, Bild: Cornelia Sell -
Fahrzeughalle mit Dachstuhlkonstruktion, Bild: Cornelia Sell -
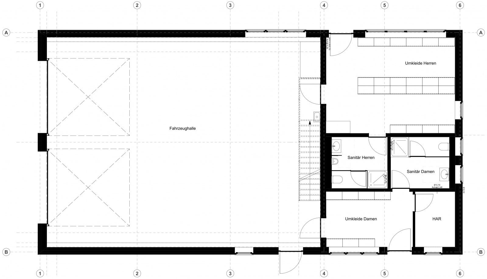
GR Erdgeschoss, Bild: Cornelia Sell -
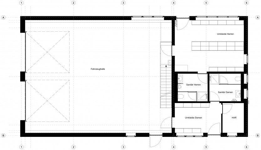
GR Obergeschoss, Bild: Cornelia Sell
Tag der Architektur 2026
Samstag, 27.06.2026 – geöffnet 10:00-16:00
Projektbeschreibung
Auf Grundlage der aktuellen Bedarfsplanung der Bad Berkaer Stützpunktfeuerwehr wurde die Stadtverwaltung Bad Berka mit dem Neubau eines Feuerwehrgerätehauses mit zwei Stellplätzen am Ortsrand von Gutendorf beauftragt. Die Einordnung und Gestaltung des Neubaus orientieren sich am Motiv der ortsrandbildenden Scheunenbebauung. Das Gebäude wurde als langgestreckter Baukörper in Hybridbauweise mit eingeschossiger Fahrzeughalle und einem zweigeschossigen Sozialteil errichtet. Einfahrtsportal, Anprallsockel und teilweise die innere Trennwand sind in Stahlbeton, die Außenwände in gedämmter Holzrahmenbauweise mit vertikaler Holzschalung ausgeführt. Die Beheizung der Fahrzeughalle erfolgt über eine Betonkernaktivierung der Bodenplatte und im Sozialtrakt über eine Fußbodenheizung.
Projektdaten
Adresse
Gutendorfer Str. 24
99438 Bad Berka OT Gutendorf
Planungsbüros
Architekturbüro Sell, Erfurt
Gundula Linse freie Architektin KONTOR, Erfurt
Bauherr
Stadt Bad Berka
Fertigstellung
Februar 2026
Nutzfläche
265 m2
An dieser Stelle wird eine Google-Maps-Karte angezeigt, wenn Sie das Speichern der entsprechenden Cookies erlaubt haben. Dies können Sie über die Privatsphäre-Einstellungen jederzeit tun.
Zugeordnete Schlagworte und Sammlungen
Weitere Projekte des gleichen Büros (6)
-
EFH aus Holz und Lehm
Erfurt
Hauptstraße 57, 99094 Erfurt OT Möbisburg
Tag der Architektur 2026
Samstag, 27.06.2026 – geöffnet 15:00-17:00
Sonntag, 28.06.2026 – geöffnet 10:00-17:00
-
-
-
Letzte Aktualisierung dieser Seite am: 07.05.2026. Alle Angaben auf dieser Seite werden durch das Büro Architekturbüro Sell, Erfurt auf freiwilliger Basis verwaltet. Das Büro ist für den Inhalt dieser Seite selbst verantwortlich. Die Angaben werden von der Architektenkammer Thüringen nicht geprüft.