Erweiterung Einfamilienhaus Niederndorf · Kraftsdorf
9 Projektbilder
-
Südostansicht, Bild: Christian Brüstel -
Teilansicht Süd, Bild: Christian Brüstel -
Fassadenausschnitt Süd, Bild: Christian Brüstel -
Fassadenbekleidung Holzrahmenwerk, Bild: Christian Brüstel -
Detail Haustür, Bild: Christian Brüstel -
Materialcollage Sockelgeschoss, Bild: Christian Brüstel -
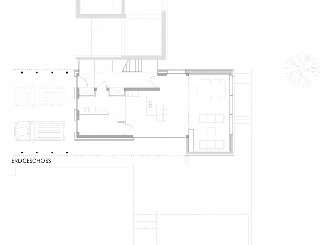
Grundriss EG, Bild: Christian Brüstel -
Grundriss OG, Bild: Christian Brüstel -
Längsschnitt, Bild: Christian Brüstel
Projektbeschreibung
Im ländlichen Raum bildet dieser Anbau einen bewussten Kontrast zum konventionellen Bestandsgebäude der 50er als eine zeitgemäße hochwertige Erweiterung. Der Baukörper gliedert sich in einen massiven Sockel aus Beton/Klinkerstein und dem "aufgelegten Bügel" aus einer Holzrahmenkonstruktion/Stehfalzfassade welcher formal das Carport sowie den südlichen Terrassengang überkragt. Angebunden wurde der Anbau über eine Fuge an den Bestand, in welcher sich, gut mit Tageslicht versorgt, die neue Erschließung befindet. Den Bauherren war bei dieser Erweiterung wichtig den Bestand (und damit verbundene Erinnerungen an vergangene familiäre Generationen) modernisiert zu erhalten und diesen mit einer eigenständigen Kubatur aus nachhaltigen Baustoffen um den zusätzlich benötigten Wohnraum zu ergänzen.
Projektdaten
Adresse
Niederndorf 61
07586 Kraftsdorf OT Niederndorf
Planungsbüro
Christian Brüstel Freier Architekt, Jena
Bauherr
privat
Fertigstellung
Dezember 2020
Nutzfläche
180 m2
An dieser Stelle wird eine Google-Maps-Karte angezeigt, wenn Sie das Speichern der entsprechenden Cookies erlaubt haben. Dies können Sie über die Privatsphäre-Einstellungen jederzeit tun.
Zugeordnete Schlagworte und Sammlungen
Weitere Projekte des gleichen Büros (6)
-
Lobdeburg Jena
Jena
Lobdeburgweg 25, 07747 Jena OT Lobdeda Altstadt
Christian Brüstel Freier Architekt, Jena
Ulrich Boock Freier Garten- und Landschaftsarchitekt, Jena | Arne Haubenreiser - Büro für Landschaftsarchitektur, Jena | Ingenieurbüro Trabert + Partner, GeisaTag der Architektur 2026
Samstag, 27.06.2026 – geöffnet 16:00-18:00
-
Aufzugtürme WBS70
Stadtroda
Tachover Ring 1, 07646 Stadtroda
Christian Brüstel Freier Architekt, Jena
Tag der Architektur 2026
Samstag, 27.06.2026 – geöffnet 10:00-12:00, Außenbesichtigung und Innenflur Erdgeschoss
-
Bungalowhaus in Holz&Blech - Quirla
Stadtroda
Mühlenweg 6, 07646 Stadtroda OT Quirla
Christian Brüstel Freier Architekt, Jena
-
Umbau Zentraler Omnibusbahnhof Dingelstädt
Dingelstädt
Busbahnhof, 37351 Dingelstädt
Christian Brüstel Freier Architekt, Jena
Waldhelm GmbH, Jena
Letzte Aktualisierung dieser Seite am: 23.06.2021. Alle Angaben auf dieser Seite werden durch das Büro Christian Brüstel Freier Architekt, Jena auf freiwilliger Basis verwaltet. Das Büro ist für den Inhalt dieser Seite selbst verantwortlich. Die Angaben werden von der Architektenkammer Thüringen nicht geprüft.