Erweiterung Grundschule Am Schwemmbach (GS 18) · Erfurt
15 Projektbilder
-
Auszug Lageplan, Bild: Sabine Schwerin -
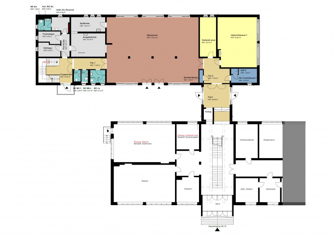
Grundriss Erdgeschoss, Bild: Sabine Schwerin -
Grundriss Obergeschoss, Bild: Sabine Schwerin -
Blick von Osten, von der Straße Am Schwemmbach, auf den Erweiterungsbau, Bild: Sabine Schwerin -
vorher - Blick vom Innenhof auf die die Gebäude GS 18 mit Speiseraumanbau und KGS, Bild: Sabine Schwerin -
nachher - Blick vom Innenhof auf das Bestandsgebäude der GS 18 mit dem Erweiterungsbau, Bild: Sabine Schwerin -
nachher - Blick vom Innenhof auf den Erweiterungsbau der GS 18 und das Bestandsgebäude der KGS, Bild: Sabine Schwerin -
vorher - Blick von Nordwesten Richtung des alten Speiseraumanbaus und Bestandsgebäude der GS 18, Bild: Sabine Schwerin -
nachher - Blick von Nordwesten in den Abstandsbereich zwischen Erweiterungsbau und Bestandsgebäude der GS 18, Bild: Sabine Schwerin -
vorher - Blick von Norden , am Gebäude der GS 18 vorbei, Richtung KGS-Gebäude, Bild: Sabine Schwerin -
nachher - Blick von Norden auf den Erweiterungsbau der GS 18 (Sicht auf die KGS ist durch den Erweiterungsbau verdeckt), Bild: Sabine Schwerin -
vorher - Blick von der Haupttreppe im Altbau Richtung alter Speiseraum, Bild: Sabine Schwerin -
nachher - Blick von der Haupttreppe im Altbau Richtung Anschluss des Erweiterungsbaus, Bild: Sabine Schwerin -
Blick in den neuen Speisesaal, Bild: Sabine Schwerin -
neues Treppenhaus mit künstlerischer Wandgestaltung, Bild: Sabine Schwerin
Projektbeschreibung
Am Schulstandort der Staatlichen Grundschule 18 in Erfurt wurden mit dem zweigeschossigen Erweiterungsbau ein großer Speisesaal für ca. 100 Personen mit einer Ausgabeküche und 1 Unterrichtsraum im Erdgeschoss sowie 5 Unterrichtsräumen im Obergeschoss errichtet.
Der Erweiterungsbau wurde in den Abstandsbereich der Hauptgebäude der GS 18 und KGS platziert.
Die Haupterschließung des Erweiterungsbaus erfolgt auf den Geschossebenen über den an das Bestandsgebäude anzuschließenden neuen Verbinder.
Die Fußbodenebene des Erdgeschosses wurde höhenmäßig so eingeordnet, dass von außen ein stufenloses Betreten des Erweiterungsbaus gegeben ist.
Im Verbinder ist ein Personenaufzug integriert, der die Geschossebenen barrierefrei verbindet.
Der zeitgemäße klare Baukörper mit einer bekleideten Fassade, einem Flachdachabschluss mit umlaufender Attika, grenzt sich klar von den Bestandsgebäuden ab, nimmt jedoch die Bestandshöhen so auf, dass im Inneren der Gebäude eine harmonische Nutzungserweiterung spürbar wird.
Das neue Treppenhaus wurde durch die künstlerische Wandbemalung des Grafikers Arvid von Oertzen mit Motiven des „Schulalltags“ gestalterisch aufgewertet.
Projektdaten
Adresse
Wilhelm-Leibl-Straße 1
99096 Erfurt OT Erfurt, Daberstedt
Planungsbüros
Architekturbüro Dipl.-Ing. Sabine Schwerin, Erfurt
Architekturbüro Für Hochbau und Innenraumgestaltung Menning, Eschenbergen
Bauherr
Stadtverwaltung Erfurt, Amt für Gebäudemanagement
Fertigstellung
Oktober 2021
Nutzfläche
672 m2
An dieser Stelle wird eine Google-Maps-Karte angezeigt, wenn Sie das Speichern der entsprechenden Cookies erlaubt haben. Dies können Sie über die Privatsphäre-Einstellungen jederzeit tun.
Zugeordnete Schlagworte und Sammlungen
Weitere Projekte des gleichen Büros (9)
-
Abenteuerwildnis - Im Reich des Fagati
Schönstedt
Thiemsburg 1, 99947 Schönstedt OT Alterstedt
Architekturbüro Dipl.-Ing. Sabine Schwerin, Erfurt
Büro für Landschaftsarchitektur Regina Schmalz, Erfurt -
Anbau eines Wintergartens
Rostock
Freiligrathstraße 9, 18055 Rostock
Architekturbüro Dipl.-Ing. Sabine Schwerin, Erfurt
-
Umbau eines Stallgebäudes zum Gartenhaus mit Wintergarten
Erfurt
Breiter Ring 13, 99100 Erfurt OT Töttelstädt
Architekturbüro Dipl.-Ing. Sabine Schwerin, Erfurt
-
Balkon aus Stahl
Erfurt
Breiter Ring 13, 99100 Erfurt OT Töttelstädt
Architekturbüro Dipl.-Ing. Sabine Schwerin, Erfurt
-
Neubau Umkleide-u. Sanitärgebäude sowie Rettungsstation
Erfurt
Zum Nordstrand 4, 99085 Erfurt
Architekturbüro Dipl.-Ing. Sabine Schwerin, Erfurt
-
Erweiterung Kindererlebniswelt "Rumpelburg"
Bad Langensalza
Sperlingsgasse 4-5, 99947 Bad Langensalza OT Bad Langensalza
Architekturbüro Dipl.-Ing. Sabine Schwerin, Erfurt
Künstlerische Holzgestaltung Bergmann GmbH, Kulturinsel Einsiedel / Arvid von Oertzen, Grafik und Illustration, Gustow -
Ersatzneubau Kindertagesstätte „Strolche“
Erfurt
Puschkinstraße 21a, 99096 Erfurt
Architekturbüro Dipl.-Ing. Sabine Schwerin, Erfurt
Architekturbüro Für Hochbau und Innenraumgestaltung Menning, Eschenbergen -
Kindererlebniswelt "Rumpelburg"
Bad Langensalza
Sperlingsgasse 4, 99947 Bad Langensalza
Architekturbüro Dipl.-Ing. Sabine Schwerin, Erfurt
Spiellandschaften: Künstlerische Holzgestaltung Jürgen Bergmann, Kulturinsel Einsiedel / Wandmalereien: Arvid von Oertzen, Grafik und Illustration, Gustow -
Umbau Feuerwehrgerätehaus zum Pilotzentrum Chorkultur
Mihla
Am Markt 9, 99826 Mihla
Architekturbüro Dipl.-Ing. Sabine Schwerin, Erfurt
Letzte Aktualisierung dieser Seite am: 13.01.2023. Alle Angaben auf dieser Seite werden durch das Büro Architekturbüro Dipl.-Ing. Sabine Schwerin, Erfurt auf freiwilliger Basis verwaltet. Das Büro ist für den Inhalt dieser Seite selbst verantwortlich. Die Angaben werden von der Architektenkammer Thüringen nicht geprüft.