Gästehaus Jena
13 Projektbilder
-
Ansicht - Straßenseite, Bild: Claus Bach -
Ansicht - Terrassenseite, Bild: Claus Bach -
Terrasse, Bild: Claus Bach -
Essplatz - Außenbereich, Bild: Claus Bach -
Terrasse, Bild: Claus Bach -
Gründach, Bild: Claus Bach -
Sichtbetontreppe, Bild: Katrin Stein -
Flurbereich, Bild: Katrin Stein -
Treppe, Bild: Katrin Stein -
Eingang Zimmer, Bild: Katrin Stein -
Bad, Bild: Katrin Stein -
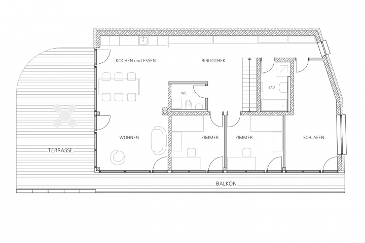
Grundriss Obergeschoss, Bild: Katrin Stein -
Ansicht Straßenseite, Bild: Claus Bach
Projektbeschreibung
Gebäudestruktur und Materialien
Das neue Wohnhaus fügt sich durch seine markante Architektur und gezielte Materialwahl sensibel in die Topografie des Grundstücks. Die Nordostfassade ist vollständig in den Hang eingeschoben, wodurch das Gebäude zurückhaltend und zugleich selbstbewusst in Erscheinung tritt.Die Erschließung erfolgt über einen überdachten Freibereich im Erdgeschoss, von dem aus eine einläufige Sichtbetontreppe zum Wohnbereich im Obergeschoss führt.
Die tragende Struktur des Hauses besteht aus massiven Sichtbetonwänden, die dem Gebäude eine klare, monolithische Präsenz verleihen. Dem gegenüber steht die Öffnung der Südwestseite mit raumhohen Holzfenstern, die eine großzügige Belichtung der Wohnräume ermöglichen und einen fließenden Übergang nach außen schaffen.
Horizontal verlaufende Lamellen aus unbehandeltem Lärchenholz dienen als Sonnenschutz und verleihen der Fassade eine lebendige, sich über die Zeit verändernde Materialität.
Ein extensiv begrüntes Flachdach bildet den oberen Abschluss des Gebäudes und verankert es zusätzlich in der natürlichen Hanglandschaft
Die Außenräume erweitern den Wohnbereich durch einen südwestlich ausgerichteten Balkon sowie eine nordwestlich gelegene Terrasse, die mit Naturstein gestaltet, harmonisch in den Hang eingebettet ist.
Energetisches Konzept
Das energetische Konzept dieses Wohnhauses basiert auf einem ganzheitlichen Ansatz. Die Wärme- und Kälteversorgung erfolgt über eine Sole-Wasser-Wärmepumpe in Kombination mit drei Erdsonden. Eine flächendeckende Fußbodenheizung sorgt im Winter für wohlige Wärme und wird im Sommer zur passiven Kühlung genutzt. In das Gründach sind Photovoltaikelemente integriert, die einen Großteil der notwendigen Energie bereitstellen und somit einen weiteren Beitrag zur nachhaltigen Betriebsweise des Hauses leisten. Ferner ist eine Wallbox installiert. Ergänzt wird das Konzept durch eine Zisterne zur Regenwasserrück-haltung. Das gesammelte Wasser dient in Trockenperioden der Bewässerung der umliegenden Grünflächen und unterstützt somit den natürlichen Wasserkreislauf vor Ort.
Das Wohnhauses verbindet funktionale Anforderungen mit einer natürlichen, langlebigen Materialwahl. Es steht für eine Architektur, die moderne Wohnqualität, Energieeffizienz und sensiblen Landschaftsbezug in sich vereint.
Projektdaten
Adresse
Im Metztal 1
07743 Jena
Planungsbüro
Katrin Stein - Freie Architektin, Weimar
Bauherr
Betina und Winfried Meißner
Fertigstellung
Oktober 2024
Nutzfläche
165 m2
An dieser Stelle wird eine Google-Maps-Karte angezeigt, wenn Sie das Speichern der entsprechenden Cookies erlaubt haben. Dies können Sie über die Privatsphäre-Einstellungen jederzeit tun.
Zugeordnete Schlagworte und Sammlungen
Weitere Projekte des gleichen Büros (3)
-
Mehrfamilienhaus im Thüringer Vogtland
Langenwetzendorf
Naitschau 49, 07957 Langenwetzendorf OT Naitschau
Katrin Stein - Freie Architektin, Weimar
-
Kindergarten Fischerboot, Ilmenau
Ilmenau
An der Fischerhütte, Nr. 1, 98693 Ilmenau
Katrin Stein - Freie Architektin, Weimar
Letzte Aktualisierung dieser Seite am: 04.11.2025. Alle Angaben auf dieser Seite werden durch das Büro Katrin Stein - Freie Architektin, Weimar auf freiwilliger Basis verwaltet. Das Büro ist für den Inhalt dieser Seite selbst verantwortlich. Die Angaben werden von der Architektenkammer Thüringen nicht geprüft.