Mehrfamilienhaus im Thüringer Vogtland · Langenwetzendorf
10 Projektbilder
-
Ansicht Straße, Bild: Katrin Stein -
Ansicht Straße, Bild: Katrin Stein -
Ansicht Garten, Bild: Katrin Stein -
Innenhof, Bild: Katrin Stein -
Eingangshof, Bild: Katrin Stein -
Treppenhaus, Bild: Katrin Stein -
Lageplan, Bild: Katrin Stein -
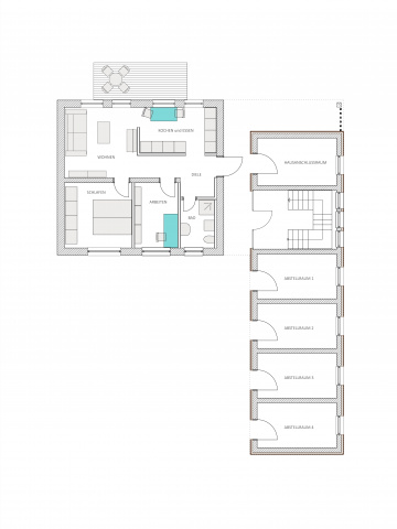
Grundriss Erdgeschoss, Bild: Katrin Stein -
Grundriss Obergeschoss, Bild: Katrin Stein -
Ansicht Garten, Bild: Katrin Stein
Projektbeschreibung
Das Projekt befindet sich in einer kleinen Ortschaft im thüringischen Vogtland. Ziel ist es, durch Revitalisierung bestehender Siedlungsstrukturen die Attraktivität für Wohnen und Arbeiten im ländlichen Raum zu steigern.
Der Entwurf orientiert sich an der vorhandenen Typologie des Ortes, greift traditionelle und dörfliche Bauweisen auf und entwickelt diese im Hinblick auf heutige und zukünftige Anforderungen weiter. Entsprechend der ortstypischen Bebauung wird ein giebelständiges Gebäude konzipiert, das sich in die bestehende Siedlungsstruktur einfügt und das Grundstück in einen südwestlichen Eingangshof und einen nordöstlichen Gartenbereich gliedert.
In den orthogonal angeordneten Gebäudeteilen, die durch ein zentrales Treppenhaus verbunden sind, befinden sich auf zwei Vollgeschossen und einem ausgebauten Dachgeschoss vier Wohnungen. Drei Wohnungen sind als Etagenwohnungen konzipiert, im südöstlichen Gebäudeteil befindet sich eine Maisonettewohnung. Im Erdgeschoss dieses Gebäudeteils befinden sich die ebenerdigen Abstellräume. Neben der gemeinschaftlichen Nutzung des Hof- und Gartenbereiches sind jeder Wohnung private Freiflächen in Form von Terrassen und Balkonen zugeordnet.
Projektdaten
Adresse
Naitschau 49
07957 Langenwetzendorf OT Naitschau
Planungsbüro
Katrin Stein - Freie Architektin, Weimar
Bauherr
Sommerfeld Grundstücksverwaltungs GbR
Fertigstellung
Mai 2023
Nutzfläche
349 m2
An dieser Stelle wird eine Google-Maps-Karte angezeigt, wenn Sie das Speichern der entsprechenden Cookies erlaubt haben. Dies können Sie über die Privatsphäre-Einstellungen jederzeit tun.
Zugeordnete Schlagworte und Sammlungen
Weitere Projekte des gleichen Büros (3)
-
Kindergarten Fischerboot, Ilmenau
Ilmenau
An der Fischerhütte, Nr. 1, 98693 Ilmenau
Katrin Stein - Freie Architektin, Weimar
Letzte Aktualisierung dieser Seite am: 24.04.2024. Alle Angaben auf dieser Seite werden durch das Büro Katrin Stein - Freie Architektin, Weimar auf freiwilliger Basis verwaltet. Das Büro ist für den Inhalt dieser Seite selbst verantwortlich. Die Angaben werden von der Architektenkammer Thüringen nicht geprüft.