KLIP KLAP - Umbau Wohnhaus Alte Mühle · Roßdorf
14 Projektbilder
-
TAKTAK • KLIP KLAP • Blick aus Badegasse, Bild: Robert Ilgen -
TAKTAK • KLIP KLAP • Blick aus Garten, Bild: Robert Ilgen -
Essplatz Obergeschoss, Bild: Robert Ilgen -
TAKTAK • KLIP KLAP • Treppe OG, Bild: Robert Ilgen -
TAKTAK • KLIP KLAP • Treppenraum, Bild: Robert Ilgen -
TAKTAK • KLIP KLAP • Treppe DG, Bild: Robert Ilgen -
TAKTAK • KLIP KLAP • Wohnen DG, Bild: Robert Ilgen -
TAKTAK • KLIP KLAP • Detail Westfassade innen, Bild: Robert Ilgen -
TAKTAK • KLIP KLAP • Detail Badezimmer, Bild: Robert Ilgen -
TAKTAK • KLIP KLAP • Schnitt längs, Bild: Robert Ilgen -
TAKTAK • KLIP KLAP • Schnitt quer, Bild: Robert Ilgen -
TAKTAK • KLIP KLAP • Grundriss EG, Bild: Robert Ilgen -
TAKTAK • KLIP KLAP • Grundriss OG, Bild: Robert Ilgen -
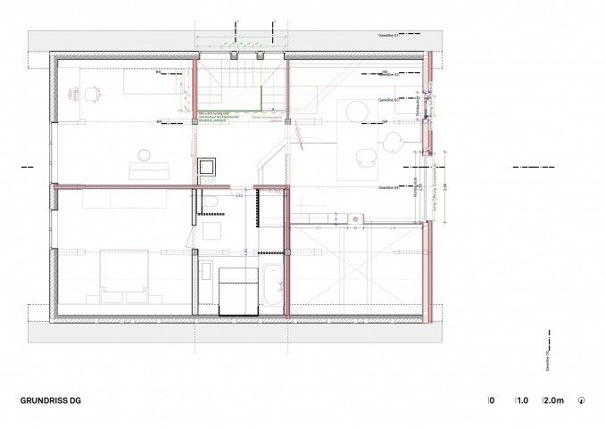
TAKTAK • KLIP KLAP • Grundriss DG, Bild: Robert Ilgen
Projektbeschreibung
KLIP KLAP
Sanierung und Umbau einer ehemaligen Mühle
Wohnhaus mit zwei Wohneinheiten
Roßdorf (Rhön) D, Januar 2019 - Juli 2022
Die ehemalige Mühle im Ortszentrum des beschaulichen Rhöndorfs Roßdorf wurde grundlegend saniert und an aktuelle Wohnbedürfnisse angepasst. Die separierte Erdgeschosswohnung wird weiterhin über den historischen Eingang erschlossen. Für die großzügige zweite Wohneinheit in Ober- und Dachgeschoss wurde an der gegenüberliegenden Westfassade ein ebenerdiger Zugang mit direkter Verbindung zum Garten geschaffen. Küche und Wohnraum verschmelzen hier über einen großzügigen Luftraum und große Fensteröffnungen zum Zentrum des Familienalltags.
Alle Geschosse erhielten eine verputzte Innendämmung mit Wandheizung. Auf dem Scheunendach wurde eine 17kw-Solaranlage installiert. Zur Wärmegewinnung wird dem Mühlbach über eine Wärmepumpe Energie entzogen und über Flächenheizungen im Gebäude verteilt.
Projektdaten
Adresse
98590 Roßdorf
Planungsbüros
TAKTAK Architektur+Szenografie, Schwallungen
Architekturbüro Jörg Wenig, Kieselbach
Bauherr
privat
Fertigstellung
Juli 2022
Preise/Auszeichnungen
Architekturpreis der Architektenkammer Thüringen 2024
An dieser Stelle wird eine Google-Maps-Karte angezeigt, wenn Sie das Speichern der entsprechenden Cookies erlaubt haben. Dies können Sie über die Privatsphäre-Einstellungen jederzeit tun.
Zugeordnete Schlagworte und Sammlungen
Weitere Projekte des gleichen Büros (26)
-
Trauerhalle Schwallungen
Schwallungen
Friedhofsweg, 98590 Schwallungen
TAKTAK Architektur+Szenografie, Schwallungen
bgs Architektur- und Ingenieurbüro Gössinger Scharfenberg GbR, MeiningenTag der Architektur 2026
Samstag, 27.06.2026 – geöffnet 14:00-18:00, (im Trauerfall keine Zugänglichkeit)
Sonntag, 28.06.2026 – geöffnet 14:00-18:00, (im Trauerfall keine Zugänglichkeit)
-
BUTZE! SOMMERTAL • Mikro-Architektur
Kaltennordheim
Im Spring 1, 36452 Kaltennordheim OT Fischbach
TAKTAK Architektur+Szenografie, Schwallungen
-
HEAVY METAL - Neubau Firmensitz
Schwallungen
Hilderser Str. 12, 98590 Schwallungen
TAKTAK Architektur+Szenografie, Schwallungen
Architekturbüro Jörg Wenig, Kieselbach | Planungsbüro Karl Wienke Freier Landschaftsarchitekt BDLA, Suhl
-
COMME UN IMAGINAIRE • Pop Up
Roßdorf
Schloßplatz, 98590 Roßdorf
TAKTAK Architektur+Szenografie, Schwallungen
-
PERKŪNAS ATSIDUSO - Kunst Installation
Dūburio Sala (LT)
Dūburio Sala (LT)
TAKTAK Architektur+Szenografie, Schwallungen
-
STORCHENNEST - Neubau Einfamilienhaus
Schwallungen (D)
Meininger Straße, 98590 Schwallungen (D)
TAKTAK Architektur+Szenografie, Schwallungen
-
HELVETISMEN - Ausstellungsdesign
Neuchatel
Chemin du Pertuis-du-Sault 74, 2000 Neuchatel
TAKTAK Architektur+Szenografie, Schwallungen
-
DREI KÖNIGE - Studienauftrag - :mlzd
Bremgarten (CH)
Bremgarten (CH)
TAKTAK Architektur+Szenografie, Schwallungen
-
STREIFZUG - Intervention
Biel-Bienne (CH)
Biel-Bienne (CH)
TAKTAK Architektur+Szenografie, Schwallungen
-
CONTAINER HOCH 3 - Temporäre Wanderausstellung
Bern & Interlaken (CH)
Bern & Interlaken (CH)
TAKTAK Architektur+Szenografie, Schwallungen
-
FONDUE IN YOUR FACE - Kulturprojekt
Riga (LV)
Riga (LV)
TAKTAK Architektur+Szenografie, Schwallungen
-
PLASTIK WRAP - Pop Up
Biel-Bienne (CH)
Biel-Bienne (CH)
TAKTAK Architektur+Szenografie, Schwallungen
-
FRESSFALLE - Pop Up
Biel-Bienne (CH)
2502 Biel-Bienne (CH)
TAKTAK Architektur+Szenografie, Schwallungen
-
GEMÜSEKISTE - Pop Up
Biel-Bienne (CH)
2502 Biel-Bienne (CH)
TAKTAK Architektur+Szenografie, Schwallungen
-
MAKE BERLIN GREAT AGAIN - BDA Berlin 40/40
Berlin (D)
Berlin (D)
TAKTAK Architektur+Szenografie, Schwallungen
-
METAMORPHOSE - Kunst Installation
Biel-Bienne (CH)
Biel-Bienne (CH)
TAKTAK Architektur+Szenografie, Schwallungen
-
JOLI FAÇADE - Kunst Installation
Biel-Bienne (CH)
Biel-Bienne (CH)
TAKTAK Architektur+Szenografie, Schwallungen
-
HOCH HINAUS - Raumplanung
Schmalkalden (D)
Schmalkalden (D)
TAKTAK Architektur+Szenografie, Schwallungen
Letzte Aktualisierung dieser Seite am: 08.06.2024. Alle Angaben auf dieser Seite werden durch das Büro TAKTAK Architektur+Szenografie, Schwallungen auf freiwilliger Basis verwaltet. Das Büro ist für den Inhalt dieser Seite selbst verantwortlich. Die Angaben werden von der Architektenkammer Thüringen nicht geprüft.