Neubau "Naturschutzzentrum auf der ega" · Erfurt
13 Projektbilder
-
Naturschutzzentrum auf der ega, Erfurt, Bild: Andreas Reich -
Bild: Andreas Reich -
Bild: Andreas Reich -
Bild: Andreas Reich -
Bild: Andreas Reich -
Bild: Andreas Reich -
Bild: Andreas Reich -
Bild: Andreas Reich -
Bild: Andreas Reich -
Bild: Andreas Reich -
Bild: Andreas Reich -
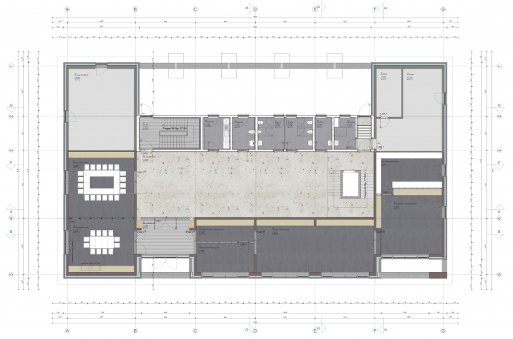
Grundriss Obergeschoss, Bild: Andreas Reich -
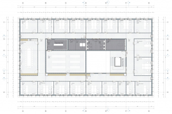
Grundriss Erdgeschoss, Bild: Andreas Reich
Projektbeschreibung
Unter Federführung der Stiftung Naturschutz Thüringen (SNT) ist auf dem Gelände des Erfurter egaparks ein anspruchsvoller Neubau entstanden, welcher neben der Geschäftsstelle der SNT das „Grüne Klassenzimmer“ und eine öffentlich zugängliche Ausstellungsfläche rund um das „Grüne Band“ sowie Veranstaltungsräume enthält. Die Suche nach ressourcenschonenden und energieeffizienten Lösungsansätzen für Bau und Gebäudetechnik stand als gemeinsames Anliegen aller Projektbeteiligten im Zentrum der Überlegungen. Das Erdgeschoss wurde – unter Verwendung von Recycling-Ziegelsteinen aus Erfurt-Alperstedt – als tragender Mauerwerksbau errichtet, während das Obergeschoss einschließlich des raumbildenden Ausbaus in Holzbauweise und mit einer Fassade aus heimischer Lärche erstellt wurde.
Projektdaten
Adresse
Gothaer Straße 38
99094 Erfurt
Planungsbüros
reich.architekten BDA, Weimar
plandrei Landschaftsarchitektur GmbH, Erfurt
Bauherr
Stiftung Naturschutz Thüringen
Fertigstellung
April 2021
Nutzfläche
867 m2
An dieser Stelle wird eine Google-Maps-Karte angezeigt, wenn Sie das Speichern der entsprechenden Cookies erlaubt haben. Dies können Sie über die Privatsphäre-Einstellungen jederzeit tun.
Zugeordnete Schlagworte und Sammlungen
Weitere Projekte des gleichen Büros (4)
-
Denkmalgerechte Sanierung Schulgebäude Rathenauplatz
Weimar
Rathenauplatz 4, 99423 Weimar
Arge Sophienschule: reich.architekten BDA / Architekturbüro Dr. Krause + Pfohl, Weimar
-
kitaZ - Neubau einer Kindertagesstätte im Ziegenhainer Tal, Jena
Jena
In der Doberau 4, 07749 Jena OT Ziegenhain
reich.architekten BDA, Weimar
Planungsbüro Rau - Landschaftsarchitektur, Weimar
-
Klima-Pavillon auf der LGS 2017 in Apolda
Apolda
Landesgartenschau Apolda 2017, Herressener Promenade, 99510 Apolda
reich.architekten BDA, Weimar
Planungsbüro Rau - Landschaftsarchitektur, Weimar
Letzte Aktualisierung dieser Seite am: 18.12.2024. Alle Angaben auf dieser Seite werden durch das Büro reich.architekten BDA, Weimar auf freiwilliger Basis verwaltet. Das Büro ist für den Inhalt dieser Seite selbst verantwortlich. Die Angaben werden von der Architektenkammer Thüringen nicht geprüft.