Logo der Architektenkammer Thüringen

Neubau Büro- und Produktionsgebäude (Bau 4) Goepel Electronic GmbH · Jena

Architekturbüro Hennig, Jena

Projektbeschreibung

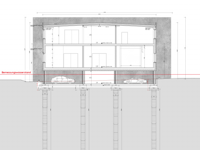
Das Gebäude befindet sich im Hochwassergebiet der Saale.
Aus der Notwendigkeit, die Gebäudesubstanz über dem Bemessungshochwasserstand zu setzen, ergibt sich das schwebende Erscheinungsbild der Gebäudeflügel. Daher gibt es auch kein herkömmliches Erdgeschoss.
Das Gebäude besteht aus einem mittig positionierten Erschließungstrakt und zwei Produktionsflügel. Der Erschließungstrakt beinhaltet Eingänge von der Nord- und Südseite sowie vom Parkdeck. Er dient der vertikalen Erschließung des Gebäudes. Mit der zusätzlichen Funktion als Verbinder der beiden Gebäudeflügel übernimmt er die Hauptverkehrsfläche. Dadurch erhalten die Produktionsflächen in den Flügeln einen offenen Grundriss, der eine ständige Optimierung der Produktionsabläufe ermöglicht.

Projektdaten

Adresse

Göschwitzer Straße 66a
07745 Jena OT Göschwitz

Planungsbüro

Architekturbüro Hennig, Jena

Bauherr

Goepel Electronic GmbH

Fertigstellung

Juli 2017

Nutzfläche

2991 m2

An dieser Stelle wird eine Google-Maps-Karte angezeigt, wenn Sie das Speichern der entsprechenden Cookies erlaubt haben. Dies können Sie über die Privatsphäre-Einstellungen jederzeit tun.

Weitere Projekte des gleichen Büros (6)

Letzte Aktualisierung dieser Seite am: 10.04.2019. Alle Angaben auf dieser Seite werden durch das Büro Architekturbüro Hennig, Jena auf freiwilliger Basis verwaltet. Das Büro ist für den Inhalt dieser Seite selbst verantwortlich. Die Angaben werden von der Architektenkammer Thüringen nicht geprüft.

Seite teilen: