Neubau einer Hautarztpraxis | Merseburg
14 Projektbilder
-
Eingangsbereich_Windfang, Bild: Lotta Heise -
Außenansicht_Ost, Bild: Lotta Heise -
Außenansicht_Süd, Bild: Lotta Heise -
Innenraum, Bild: Lotta Heise -
Empfang, Bild: Lotta Heise -
Innenraum, Bild: Lotta Heise -
Wartebereich, Bild: Lotta Heise -
Gebäudeansicht, Bild: Lotta Heise -
Eingangsbereich, Bild: Lotta Heise -
Lageplan, Bild: Antje Heise -
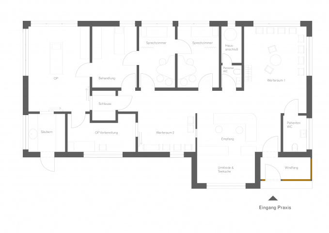
Grundriss Hautarztpraxis, Bild: Antje Heise -
Grundriss Wohnen, Bild: Antje Heise -
Ansicht Ost, Bild: Antje Heise -
Ansicht Nord, Bild: Antje Heise
Projektbeschreibung
Das Grundstück für den Neubau der Hautarztpraxis liegt an exponierter Stelle. Die Lage an Gerichtsrain/ Ecke Goethestraße erforderte eine besondere städtebauliche Ausrichtung des Baukörpers. Ein weiterer Anspruch an die Bauaufgabe war eine doppelte Planung. Das Gebäude, welches heute als Hautarztpraxis gut funktioniert, soll in weiterer Zukunft mit wenig Aufwand zu einem Einfamilienhaus umgebaut werden können.
Das Gebäude wird über die Nord/Ost Ecke erschlossen. Ein besonderer Windfang signalisiert den Eingang in die Praxis. Der Empfangsbereich und anschließende Wartebereiche sind Räume, welche den ankommenden Patienten freundlich und lichtdurchflutet empfangen. Die Grenze zu den Behandlungsbereichen ist durch großformatige Aufschriften an den Türen schnell zu erfassen. Eine abgestimmte Farb- und Lichtgestaltung macht die Zonierungen erlebbar und setzt in den Räumen Akzente.
Die Fassade schließt sich schützend zur Straße hin und hat ihre Orientierung durch große, offene Fensterflächen in den Garten hinein. Die Außenwand ist mit einem sägerauen Nut und Feder- Fassadenprofil verkleidet und lässt durch seine Farbgebung ein elegantes Wechselspiel zwischen Hauptbaukörper und Anbauten zu.
Die Bauherrschaft entschied sich für einen Holzrahmenbau. Der schlanke Wandaufbau bei streng vorgegebener Quadratmeterzahl Grundfläche lässt eine maximale Flächenauslastung im Grundriss zu. Zudem ist diese hochgedämmte Bauweise komplett aus nachwachsenden Baustoffen errichtet worden und bindet dauerhaft CO2, wie keine andere Bauweise. Das Heizkonzept setzt sich aus einer Gasbrennwerttherme, einer Solaranlage zur Heizungsunterstützung und einer dezentralen Lüftungsanlage mit Wärmerückgewinnung zusammen.
Projektdaten
Adresse
Goethestraße 38, 06217 Merseburg
06217 Merseburg
Planungsbüro
KOOP Architekten und Ingenieure, Weimar
Bauherr
privat
Fertigstellung
April 2016
Nutzfläche
125 m2
An dieser Stelle wird eine Google-Maps-Karte angezeigt, wenn Sie das Speichern der entsprechenden Cookies erlaubt haben. Dies können Sie über die Privatsphäre-Einstellungen jederzeit tun.
Zugeordnete Schlagworte und Sammlungen
Weitere Projekte des gleichen Büros (8)
-
Haus in Haus - alte Scheune, moderner Einbau | EFH Bucha
Bucha
Dorfstraße 43a, 07751 Bucha
KOOP Architekten und Ingenieure, Weimar
Architekturbüro Kopprasch, Weimar -
Neubau eines Mehrfamilienhauses | Weimar
Weimar
Wilhelm - Külz - Straße 1, 99423 Weimar
KOOP Architekten und Ingenieure, Weimar
-
Neues Kloster Ichtershausen | Informationszentrum für Romanik und Reformation am Lutherweg
Ichtershausen
Alexander-Puschkin-Straße 7, 99334 Ichtershausen
KOOP Architekten und Ingenieure, Weimar
-
Sanierung und Umbau "Alte Strickerei" | Apolda
Apolda
Ritterstraße 37a-c, Mönchsgasse 1-5, 99510 Apolda
KOOP Architekten und Ingenieure, Weimar
-
Innenraumgestaltung einer Praxis für Meditation und Körperarbeit | Weimar
Weimar
Am Horn 25, 99425 Weimar
KOOP Architekten und Ingenieure, Weimar
-
Sanierung einer historischen Remise | Weimar
Weimar
99423 Weimar OT Südstadt
KOOP Architekten und Ingenieure, Weimar
Letzte Aktualisierung dieser Seite am: 13.03.2018. Alle Angaben auf dieser Seite werden durch das Büro KOOP Architekten und Ingenieure, Weimar auf freiwilliger Basis verwaltet. Das Büro ist für den Inhalt dieser Seite selbst verantwortlich. Die Angaben werden von der Architektenkammer Thüringen nicht geprüft.